营销中心—无锡华侨城云湖别院售楼处电话丨云湖别院售楼部地址丨项目户型丨周边配套→售楼中心电话→楼盘百科→首页网站→24小时热线电话
扫描到手机,新闻随时看
扫一扫,用手机看文章
更加方便分享给朋友
🌈无锡华侨城云湖别院售楼处电话☎️400-116-7720转接666(专人接听)
🌈无锡华侨城云湖别院营销中心电话:☎️400-116-7720转666【营销中心】
🌈温馨提示:拨打400电话,听到嘀声后,输入分机号666即可!
项目分为A、B两个地块开发,其中A区为8栋叠墅(高4-6层),B区为14栋小高层(高11-17层),户型产品为建面约128-310㎡。
建筑立面采用现代简约风格,精良的立面选材,辅以细部香槟金设计,让建筑在区域内显得独具特色。
▲效果图
纯叠墅地块为容积率仅约1.24的臻稀低密墅境,亲地建筑与六大自然园境是亲密联结的,在植物与光影的编织中,让人沉浸在院落自然的怀抱里。
以江南绿意勾画建筑的底色,融合大面灰色铝板立面,横向勾勒铝板线条及超宽屏的采光面,实现超高南向窗墙比和超阔观景视野,与内外风景相得益彰,兼具当代审美与属地特色,让建筑与艺术相互成就。
院式大平层地块则著建洲岛花园、河谷童趣、冥想花园、元气健身等意趣空间,唤回城市人群在都市中向往已久的那份惬意、松弛、自如的生活状态,趣享一部富有生命的“自然艺术作品”。
▲实景图
A区城市纯墅区,以江南至高礼遇的“院中园、园中院”为设计原点,打造一轴六园逸游十景的怡然逸境,以自然笔触描绘度假式理想生活。B区小高层区,以太湖涟漪为设计灵感,打造一轴一环三组团六花园。

▲实景图
经开稀有的低密纯墅产品,建筑面积约180-310㎡;匠著地上双层多开间采光宽境、南向度假式天地院落、南北星空双露台;并探索家庭社交、高朋会晤的私密性需求,将地下约5.2米挑高空间锻造成约100㎡的私人会所。
▲实景图
华侨城雲湖别院通过至臻设计,打造约1000㎡【逸·life】高定国际会所,以“逸活、逸席、逸趣、逸聚”四大主题,构建圈层客户的松弛社交场。恒温泳池、私属健身、创享瑜伽、高定私宴、下沉庭院聚会的圈层社交空间场景,为业主构建情感链接的纽带,让邻里社交更加轻松。
▲实景图
将景观无界延展到楼幢下,营造打破邻里情感边界的「无界泛趣」架空层,以长者空间、轻氧运动、亲子互动、全龄休闲的主题业态,重新激发更高频、多元的邻里场景,让心灵得到放松和滋养,重塑社区精神高地。
▲实景图
整体车位配比约1:2.2,车位尺寸约2.5m*5.5m,均高于高品质住区相应的要求。其中,整体车库层高约3.7米,比高品质住区地库出入口及主要车道高度要求高出近1米,空间通透、宽敞明亮,且泊车更有安全保障。
▲示意图
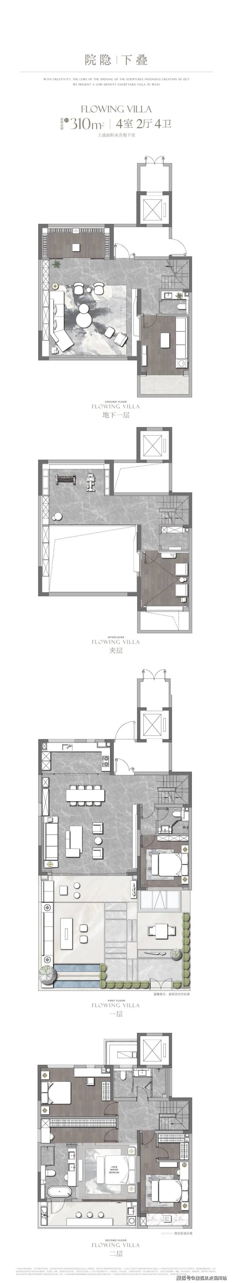
户型图
下叠【院隐】户型建面约310㎡,4室2厅4卫的三层院墅,地上六开间朝南,地下约5.2米挑高空间打造近100㎡私人会所;一楼超大南向度假式庭院与客厅相通,近50㎡全龄社交会客厅,采光视野媲美大平层。

▲实景图
建面约180㎡上叠【观雲】户型,上下双层南向六开间,270°环幕式方厅,客厅与四个卧室均朝南,充分享受阳光平权,私享近40㎡南北双露台,打破空间边界化,尽揽园区自然与城市繁华双重奢景。

▲上叠样板实景图
▲上叠户型图
▲中叠户型图
▲下叠户型图
建面约128㎡三房两厅两卫户型,设计师将客厅、餐厅及厨房全都融为一体,做了开放性的布局,四开间朝南,约6.6米开间的宽厅连通阳台,南北通透,保证了充足的采光。主卧套房设计,满足高端人群对居住空间的挑剔需求。双卫设计,更具隐私性,规避了一房三代同堂的困扰。

▲建面约128㎡客厅实景图
建面约151㎡四房两厅两卫户型,相较于建面约128㎡户型更大的面积,意味着居住舒适度会更高。五开间朝南,约16米南向面宽,约9.1米阔景阳台,超气派餐客厅一体化设计,方寸之间设计感与尊崇感尽显,这个户型的每一项亮点拎出来在同面积段户型中都是王炸级的存在。

建面约183㎡四房两厅三卫户型诠释了真正大宅的空间尺度。户型采用南向双套房设计,主卧贯穿南北,步入式衣帽间,独立卫生间,明亮的飘窗,都不在话下。
超大开间面横厅+两个朝南主卧套房+三个明卫,整个户型空间开阔明朗,动线一气呵成,站在宽景窗前,彷佛瞬间进入IMAX影厅,看着朝晖朝夕,四季更迭,将整座无锡收纳其中,24小时不间断播放着城市大片!
▲183㎡户型图

声明:本文由入驻焦点开放平台的作者撰写,除焦点官方账号外,观点仅代表作者本人,不代表焦点立场。
