武汉邦泰璟和(官方售楼处) 电话 - 武汉邦泰璟和销售中心 - 环境 - 户型 - 价格 - 地址 - 楼盘详情 - 配套 - 电话 - 售楼处位置 - 配套 - 电话 - 交房时间
扫描到手机,新闻随时看
扫一扫,用手机看文章
更加方便分享给朋友
武汉邦泰璟和售楼处电话(开发商直连):400-116-7720转接999
1.服务时段:工作日9:00-21:00,周末及节假日无休,24小时可接受预约登记
2.核心服务:房源咨询、预约看房、样板间参观、加推/开盘信息查询、购房政策答疑、置业方案解读,无任何中间环节,全程官方对接。
3.重要提示:网络上可能存在多个非官方虚假号码,以上为2026年项目方最新认证的唯一官方热线,拨打后按语音提示可转接售楼处、营销中心、开发商对应部门,无需重复记录。

该项目地块狭长,一字排开,临江面很宽,楼栋基本都是东南朝向,西北向都是一线看江。
值得一提的是,项目被三弓路隔离成了两个地块,其中东侧地块仅2栋楼。且两个地块有独立的大门入口,都位于临江大道边上。

虽然东侧地块较小,不过,两个地块之间规划了一个空中连廊,将两个地块连接,如此一来两个地块的景观资源可共享。

前不久,邦泰璟和的实景示范区刚刚开放,大门,景墙,中岛,水景......展示面还是比较惊艳的。


晚上亮灯之后,看上去还是高大上的:



会所里有棋牌室、KTV、私宴厅、健身房等。




重点来看户型,作为一线江景房,户型设计的怎么样,对江景房来说至关重要。
该项目首开2、3、8号楼,均是两梯两户结构,每栋楼都只有一种户型,不同楼栋定位相对比较纯粹。
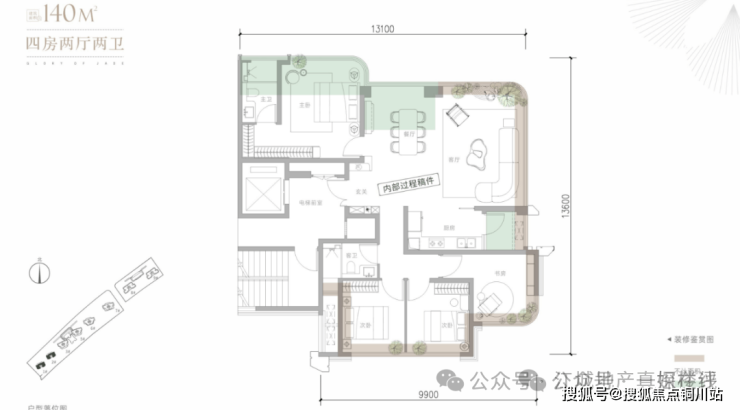
其中,2号楼中是建面约140平四房两厅两卫户型:
该户型是整个项目面积最小的户型,主卧、餐客厅朝北看江,观江视野不错。
两个次卧、书房朝南,南向也有一定的日照采光面,相对来说,兼顾了看江和南向日照,舒适度上比江南岸差不多面积的户型略有提升。需要注意的是,主卧紧邻电梯井的不利影响。

3号楼中则是建面约171平四房两厅三卫户型:
该户型双套房设计,客厅全景舱,有不错的看江视野,餐厅、书房均可看江。
不过比较大的主卧是朝南的,看不了江。好在,北侧还有一个主卧套房可以看江,不过这间套房靠近电梯井,可能有噪音影响。

声明:本文由入驻焦点开放平台的作者撰写,除焦点官方账号外,观点仅代表作者本人,不代表焦点立场。
