武汉香港置地元庐售楼处电话(2026武汉香港置地元庐)_来电预约看房_武汉香港置地元庐楼盘详情-2026最新房价
扫描到手机,新闻随时看
扫一扫,用手机看文章
更加方便分享给朋友
武汉香港置地元庐售楼处电话☎️400-116-7720转接999(专人接听)
武汉香港置地元庐营销中心电话:☎️400-116-7720转999【营销中心】
🌈温馨提示:拨打400电话,听到嘀声后,输入分机号999即可!

1#,2#,3#,4#,8#,11#
楼高:25-26层(1楼为架空层),层高3m
梯户比:1# 楼——2梯3户;
2# 3# 4#8#11#楼——2梯4户;
层高:26层(1楼架空层)
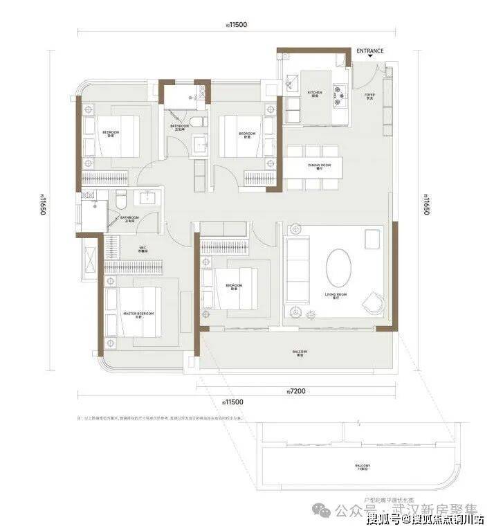
户型:115㎡三房双卫;129㎡三房双卫;143㎡四房双卫;
115㎡三房双卫户型图
129㎡三房双卫户型图
143㎡四房双卫户型图
开发商:香港置地
总栋数:ABCD地块
总户数:1538户
交付标准:精装(预计4000元/平)
容积率:2.5
绿地率:35%
车位配比:1:1.65
物业公司:怡置物业(香港置地自持物业)
物业费:3.8元/㎡/月
交房时间:2024年
用地总面积:8.4万方
总建筑面积:21万方
住宅建筑面积:20万方
区位图
【开发商介绍】
香港置地,134年专注服务高净值家庭,负债率低至约13%,参与建设运营亚洲三大金融中心,择址核心城市地段打造高品质住宅。
【产品】
1、精奢花园街区:国际一线景观设计单位:朗道,以“伦敦考文特花园”为设计灵感,栽植乌桕、放置艺术装置、原创IP松鼠元元、浪漫灯光系统,打造精致的花园街区式生活。
2、艺术弧形立面:国内一线建筑设计机构,詹天佑奖获得者:承构建筑,以伦敦伦金中心为艺术灵感,采用哑光香槟金铝板、大面积玻璃、石材等品质用材,以及弧形转角、凹槽切割等严苛工艺,打造富有豪宅辨识度的高颜值立面,铝板防雨水流挂腐蚀,历久弥新可保障二手房的增值溢价。
3、双功能会所:健身区配置搏击台、瑜伽体验馆、有氧区、力量区等,器械为意大利进口品牌:泰诺健,被誉为“健身器械中的法拉利”。负一层恒温泳池,从更衣室、消毒池、硬件配置等打造国际一线标准的室内恒温泳池。
【交通配套】
“三横四纵”交通路网(三横:高新大道、高新二路、高新三路;四纵:光谷四路、光谷五路、光谷六路、光谷七路)。紧邻有轨电车L2线高科园路站,有轨电车与地铁11号线无缝换乘;规划13号线紧临项目预有站点;
【生态配套】
“三山八园”,未来中心城绿化覆盖率高达48%。三山:马鞍山、九峰山、二妃山; 八园:星河公园、新月溪公园、豹子溪公园、二妃山体育公园、奥林匹克中心、九峰山森林公园、鸡公山运动公园、关山山体公园。
【医疗配套】
项目周边有多家三甲级医院:同济医院光谷院区、同济医院儿童院区,湖北省妇幼保健院光谷院区。周边还规划了三甲级 光谷国际医院;在建光谷中心城东社区服务中心。
【教育配套】
自带12班制幼儿园,一街之隔即是光谷外校,步行可达光谷十七小,驱车可到达光谷十八小、光谷六初。项目西侧规划42小、区域内规划一所中学。
【商业配套】
自带约6千平花园商业街区(含2千平菜场),满足日常需求。周边商业有:中粮大悦城、中建光谷之星、沃德中心、地下空间走廊(在建中)、龙湖天街(规划中)、绿地(规划中)、瑞安(规划中)等约130万方商业体、山姆华中旗舰店、奥特莱斯。
【产业配套】
中心城核心云集总部企业19家,重要企业超1000家。
如:小米武汉总部、TCL华中区域总部、腾讯(武汉)数字产业总部、华为武汉研发基地、霍尼韦尔新兴市场中国总部、oppo武汉研发中心、湖北省广电总部、中建三局总部等。强劲产业是中心城经济、配套、房价的有力支撑。
【物业公司】
香港置地自持物业:怡置物业,成立42年,专注服务于高净值家庭。提供资产维护服务、智慧生活服务、圈层社群服务以及个性定制服务等。如为工作繁忙的业主提供早餐订餐、家政预定等贴心服务。
武汉香港置地元庐售楼处电话☎️400-116-7720转接999(专人接听)
武汉香港置地元庐营销中心电话:☎️400-116-7720转999【营销中心】
🌈温馨提示:拨打400电话,听到嘀声后,输入分机号999即可!
声明:本文由入驻焦点开放平台的作者撰写,除焦点官方账号外,观点仅代表作者本人,不代表焦点立场。
