【武汉】武汉光谷中心城投绿城云庐售楼处电话→地址(武汉光谷中心城投绿城云庐)Ai热搜24小时电话→2025最新房价→楼盘百科详情→售楼处最新发布@售楼处
扫描到手机,新闻随时看
扫一扫,用手机看文章
更加方便分享给朋友
内容显示,对G5、G6号楼进行调整,其余内容均未发生变化。
具体调整内容包含:
经济技术指标上,总户数从560户增加到606户,架空层从1498.23平米减少到1492.71平米;G5G6栋阳台面积单独列项,为1429.74平米;非计容建面从32553.17平米增加到33977.39平米,其余项均无变化,总居住建面无变化。


总居住建面为73568.62平米,套数由560户增加到606户,这就意味着项目的套均面积有所下调,从前期的131.37平米下调到了121.4平。
具体楼栋上,主要是G5、G6号楼的调整。




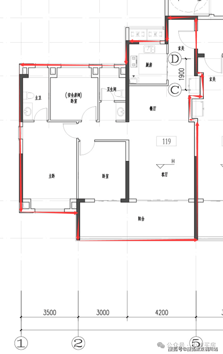
先看G5号楼,
2楼楼栋总面宽从41.2米增加到41.8米,总进深从16.6米增加到18.5米;户型面积从125、105、105、115平变为119、107、107、119平,户型内部设计有所变化;
原125平户型客厅阳台开间8.4米,现变为119平户型,阳台总开间7.2米,进深从1.4米增加到2.3米。
原105平户型现变为107平户型,客厅开间有所加大,阳台总开间由6.5米增加到6.9米,进深也是由1.4米增加到2.3米(部分区域)。
3-25层为一个标准,这也是楼栋主体,我们就以这个楼层的变化来看看户型具体怎么变
首先,户型面积跟2楼一样,也是西边户125平变为119平,中间户105平变107平,东边户115平变119平。
原西边户125平户型

新西边户119平米户型

客厅增加了S墙设计;
厨房以及主卫部分有所变化,其余部分布局基本保持一致;
面积上,由125平变为119平;
尺寸上,客厅开间由5.4米变为4.2米,阳台开间由8.4米变为7.2米,阳台进深由1.4米变为2.3米;主卧开间由3.4米变为3.5米,主卧进深由4.7米变为4.9米,主卫进深由3.1米变为2.7米,开间都为1.7米;整个厨房+餐厅+客厅(不包含阳台)的进深由8.4米变为9.65米。
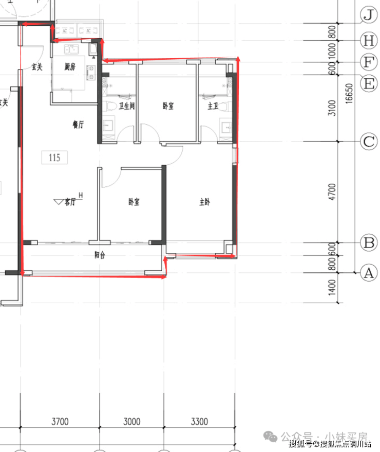
原105平米户型(中间户)

新中间户107平米户型

面积由105平变为107平;
客厅增加了S墙设计;其余部分布局保持一致;
客厅开间由3.6米变为3.9米,南向次卧开间由2.9米变为3米,整个阳台开间由6.5米变为6.9米,进深由1.4米变为2.3米(最大处)。
原东边户115平米户型

现东边户119平米户型

这个可以参考上面的119平米户型,原来G5号楼的两个端头户型不是一样的,现在变成一样的了。
主要还是阳台部分变化明显,进深明显加大,2.3米进深可以算入准四代了,另外就是增加了S墙设计,收纳更加友好。
G6#的变化就比较大了。
首先是原来的非连廊结构变成了现在的连廊结构,以前是两梯两户、220平大平层的布局,现在则改成了两梯四户的布局,户型面积与G5号楼一致;阳台进深同样加大到2.3米。


因为户型面积变化比较大,这里就不再对比单个户型的变化了。
G5、G6两栋楼变身准四代住宅,其余楼栋暂无变化。
2、已取证,备案均价18712-19297元/平
绿城雲庐属于光谷东纯新盘,项目共包括6栋20-26层的高层和6栋4层的叠拼产品,其中高层为G1-G6号楼,本次修改规划之后,G1#、G2#、G4#、G5#、G6#均为两梯四户,G3#为两梯三户。

6栋高层,其中的1、2、3、5号楼已取证,其中1、3号楼整体备案价19297元/平,2号楼备案价18738元/平,5号楼备案价18712元/平,共计370套房源,均为毛坯备案价。
这里的5号楼就是上面调整规划的5号楼。
不过,绿城雲庐取证之后尚未正式对外开售,一个是规划调整,一个则是销售价格怎么定的问题。
项目其实早在2024年初就有开盘的消息,前期放风带装修售价1.8万左右,现在备案价变为毛坯,均价1.9万左右,很明显现在的售价会比之前带装修1.8万的价格要低。
其次就是光谷楼市现状了。
同为光谷东板块,已开售的四代住宅汉韵公馆,带装修均价1.95万左右,非四代住宅的宝业璞园毛坯特价能到1.7万,便宜点的还有万和光谷、万和竞界等,都是毛坯,并且从地段来说比绿城雲庐更为靠近光谷东中心。
进入2025年,光谷四代住宅供应井喷,目前已知的驿山高尔夫、深业泰然生物谷、招商天青府等均为四代住宅,也都是绿城雲庐的直接竞品,这对绿城雲庐的定价也有直接影响。
据最新消息,绿城雲庐基本要等到春节后才能开售了,价格还没有确定,预计会有惊喜,有兴趣的可以加小妹微信第一时间获取最新消息
声明:本文由入驻焦点开放平台的作者撰写,除焦点官方账号外,观点仅代表作者本人,不代表焦点立场。
