全网热搜:武汉城建未来中心售楼处电话→武汉城建未来中心Ai热搜24小时电话→2025最新房价→楼盘百科详情→售楼处更新发布@售楼处中心
扫描到手机,新闻随时看
扫一扫,用手机看文章
更加方便分享给朋友
武汉城建未来中心售楼处电话☎️400-116-7720转接777(专人接听)
🌈武汉城建未来中心营销中心电话:☎️400-116-7720转接777【营销中心】
🌈温馨提示:拨打400电话,听到嘀声后,输入分机号777即可!
招商·武汉城建未来中心C2揽境,作为经开首个真四代住宅,容积率更低,因为限高80米内,最高才25层,而且立面升级和功能升级,户型设计也是四代产品,属于经开升级版改善产品,高赠送空间,高得房率。
C2地块调整规划后,由4栋高层+6栋洋房,拟调整为6栋23-25层高层住宅、3栋17层小高层,总户数也变为642户,物业费3.1元/㎡/月。(C2揽境二三期报规中,最终数据以项目发布信息为准)



2、首开户型曝光,综合建筑得房率约127-132%。

目前四代产品正式户型图已经出来了。
此次揽境(C2地块)户型分为了奇偶层设计,6米挑高大露台,空中花园超多赠送,综合建筑得房率约127-132%。这也是目前所有四代高层产品中得房率最高的一个。
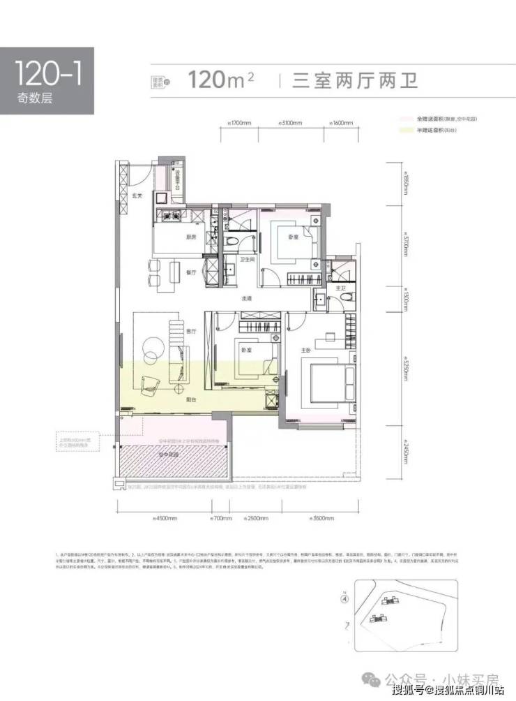
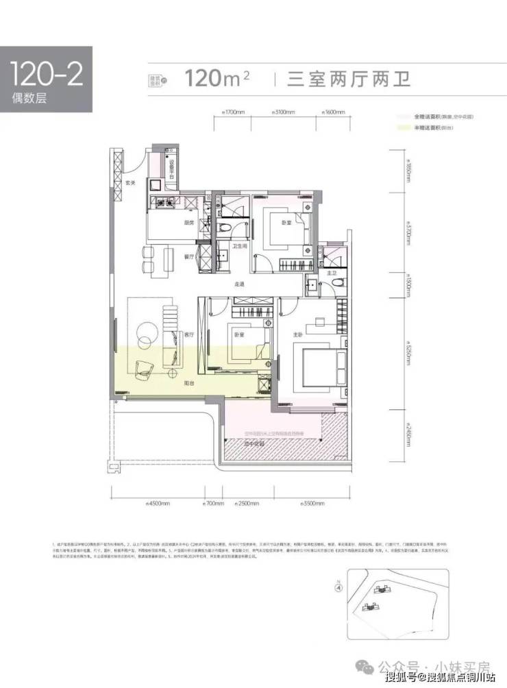
中间户120㎡三房两厅两卫
奇/偶数层120平三房,除空中花园外格局大致相似。
据非官方渠道了解到,120平综合建筑得房率约127%。
三开间朝南,带空中花园。约4.5米开间客厅,约7.7米大阳台。南向次卧也有非常多赠送空间。北向基本都是飘窗赠送,主卧也有南向飘窗赠送,主卧套房开间约3.5米。(具体以项目最终数据为准)
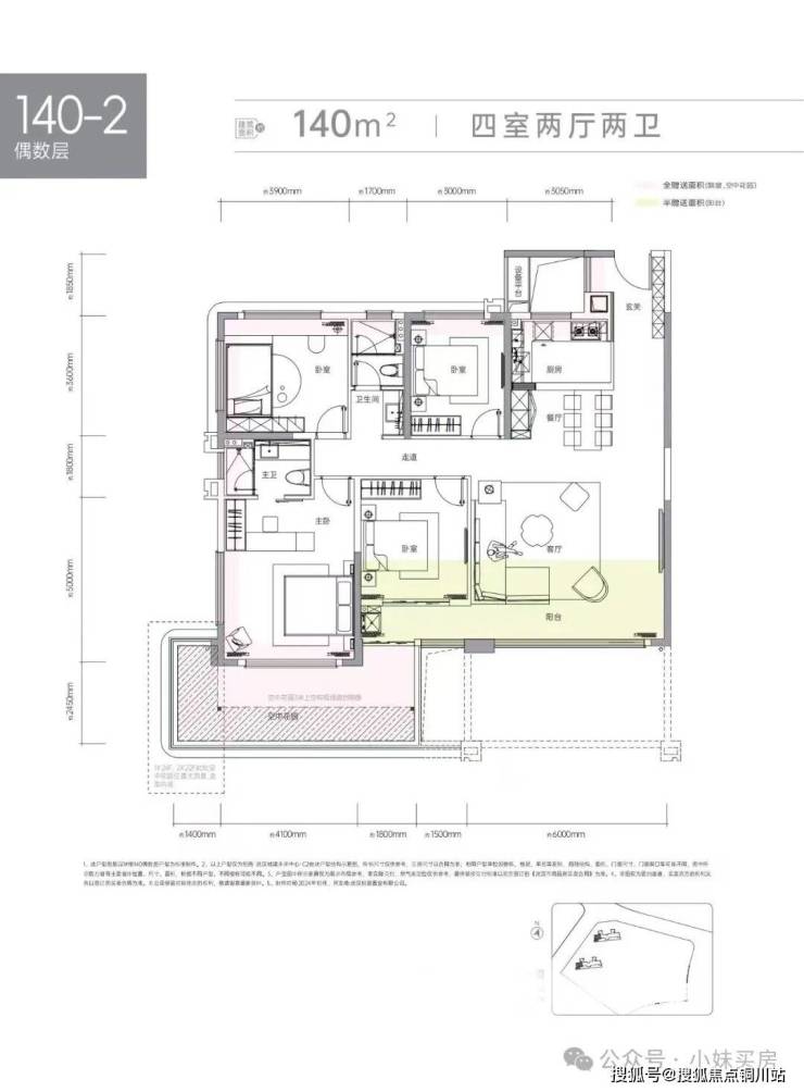
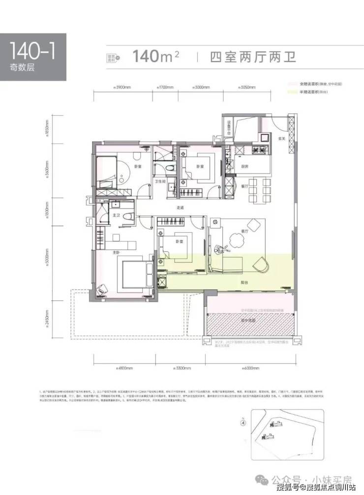
边户140㎡四房三厅两卫
据非官方渠道了解到,综合建筑得房率约130-132%左右。
整体南向开间13.4米,其中客厅开间约6米,主卧开间约4.1米,主卧套房面积27.88平。空中花园进深约2.45米,面积在16-20平左右。(具体以项目最终数据为准)
样板间-客厅
样板间-主卧
样板间-次卧
样板间-露台
140平偶数层户型格局与奇数层比较类似,主要是空中花园位置不一样。
更多高清户型图,点击下图查看

3、精装交付,综合性价比高。
C2揽境依旧是带装修交付,此次推出的户型面积相较前期门槛明显提升了,更偏改善,但是此次推出的产品综合得房率高达132%,而且还有空中花园,此次装标包括有大金中央空调、菲斯曼地暖、松下新风系统等配置。C2揽境2#正在诚意登记登记中。
招商·武汉城建未来中心作为经开全能大盘,经常霸榜经开乃至武汉月度销量榜,基本上是购房者无法绕过去的一个选择。而且项目还有少量现房、准现房在售,部分还是准四代产品,即将开盘还是真四代户型。产品选择丰富,综合性价比非常高。
想要了解项目最新信息,可扫码咨询
4、前期已交付一期,实景呈现,二三期即将交房。
目前,项目已开发的一期D地块,已于2023年12月已交付;二期C地块预计2024年12月20日-12月24日交付;三期B2地块,预计2024年年底交付。
具体地块分布位置如下:

C地块部分实景开放,D地块已经交付。
2023年5月,项目C地块部分实景园林提前绽放。D地块2023年底交付。
C地块实景


D地块交付实景
>>>区域首个下沉式庭院会所+恒温泳池实景呈现。
下沉式庭院会所,大面积落地窗+中央水景。除了约25×10米的标准室内恒温泳池、健身房、瑜伽室、淋浴室,会所内部还配有星级更衣室。共享厨房、私家电影院、儿童活动区、咖啡吧、阅读室等,满足了私宴、休闲、会客、健身等多重功能。


5、兑现力比较强。
>>>儿童乐园兑现。
2022年10月,奇妙传送带儿童乐园投用,其中涵盖泡泡机、攀爬坡地、网面爬架、皮带荡桥、圆木走道等15种奇趣装置,目前已免费开放。
儿童乐园实景
>>>2023年10月,约3万方未来运动公园正式开园。
规划约3万方HI PARK未来运动公园配套有4个约2400㎡的篮球场、3个约2100㎡的网球场、1个约2100㎡的足球场,以及环形活力跑道和约3000㎡ 多功能活动草坪,目前一期已于2023年10月21日对外开放。

>>>一期商业开业。
2023年5月,E地块商业街已实景兑现,趣动少儿体验中心、M&E coffee咖啡店、茅台文化体验店等已开业。
一期商业实景
5、引入双名校。
项目前期引入的神龙小学朴真小学已开学。6月6日再次官宣武珞路中学(在建中)入驻经开。双名校已确定。6月底武珞路中学分校已经封顶。
武汉城建未来中心售楼处电话☎️400-116-7720转接777(专人接听)
🌈武汉城建未来中心营销中心电话:☎️400-116-7720转接777【营销中心】
🌈温馨提示:拨打400电话,听到嘀声后,输入分机号777即可!
声明:本文由入驻焦点开放平台的作者撰写,除焦点官方账号外,观点仅代表作者本人,不代表焦点立场。
