2025最新发布——郑州保利缦城和颂售楼处电话_预约看房_保利缦城和颂售楼处电话-楼盘详情-2025保利缦城和颂最新房价-项目户型图
扫描到手机,新闻随时看
扫一扫,用手机看文章
更加方便分享给朋友
郑州保利缦城和颂售楼处电话:400-116-7720转接999【已认证】【售楼地址】
温馨提示:网上售楼中心〢欢迎来电咨询〢安全通话隐藏真实号码〢
✦来电咨询最新售楼地址,专属置业顾问详解,请提前联系售楼销售进行预约登记
【项目名称】保利缦城和颂
【占地面积】约230亩
【建筑面积】约59万㎡
【产品规划】38栋住宅
【楼体层数】18-24F小高层/7-8层洋房
【产品面积】小高层98-125-148㎡,洋房168㎡
【层高】小高层2.95米,洋房3米
【总户数】3250户
【梯户比】2T2,2T4
【得房率】74%-84%
【容积率】约2.89
【绿地率】约35%
【物业费】3.2元/月/每平
【物业类型】住宅
【产权年限】70年
【装修状况】精装修
【交房时间】2025年12月-2026年3月-2026年6月
【价 格】小高层19500-洋房平层24000,一楼带院30000
二,项目配套


滨河公园--约1公里贾鲁河景观廊道
儿童公园——约1500㎡"儿童公园"

山体公园——约110亩"缦林绿岛"

体育公园——约8000㎡"缦跃运动"

约3500㎡酒店式全龄泛会所。




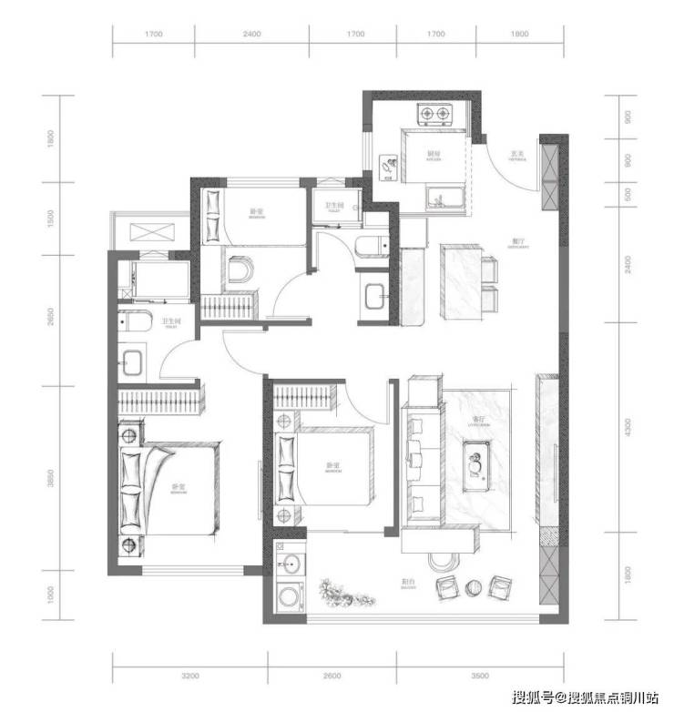
三,项目户型
洋房,建筑面积约168㎡,四室两厅三卫
高层,建筑面积约148㎡,四室两厅两卫
高层,建筑面积约125㎡,三室两厅两卫
高层,建筑面积约98㎡,三室两厅两卫
郑州保利缦城和颂售楼处电话:400-116-7720转接999【已认证】【售楼地址】
声明:本文由入驻焦点开放平台的作者撰写,除焦点官方账号外,观点仅代表作者本人,不代表焦点立场。
