徐州徐高新绿城·桂语新著官方售楼处电话(徐州徐高新绿城·桂语新著)官方网站-徐州徐高新绿城·桂语新著营销中心欢迎您-楼盘详情•最新价格-户型图-容积
扫描到手机,新闻随时看
扫一扫,用手机看文章
更加方便分享给朋友
徐州徐高新绿城·桂语新著
徐州徐高新绿城·桂语新著售楼处电话:400-116-7720转888(中介勿扰)
徐州徐高新绿城·桂语新著售楼处电话:400-116-7720接通后输入888楼盘详情介绍,位置、小区环境、房价、周边商业配套、户型等楼盘详情;
预约咨询—提前联系咨询售楼中心置业顾问—进行预约登记来访!
双盘齐绽,启幕城南理想人居
5月1日,印樾里与桂语新著售楼处联袂开幕,吸引了无数市民与媒体的目光。作为徐高新布局城南的重点项目,二者地块相邻,同处京沪铁路东侧、靠近北京路,可便捷享有铜山万达广场、天赋广场、地铁3号线等醇熟配套,为焕新徐州城南人居品质而来。
URBAN CORE AREA
印樾里由徐高新与东原集团合作,营造精奢酒店度假风景观。其约40米奢阔门仪搭配星空顶游廊,令现场宾客赞叹不已。而桂语新著由徐高新与绿城联手,以绿城经典“桂语系”融合年轻力场景,主入口精细化分流设计及无雨归家电梯等,尽显现代人居的便捷与精致。

OSMANTHUS GRACE
荣耀开盘,共筑热销盛景
印樾里于8月9日正式开盘,推出小高层9#及中高层10-12#楼,涵盖109-148㎡多样户型,共计218套房源,凭借精研户型与区位优势赢得了众多购房者青睐。开盘现场有业主反馈,印樾里户型规划合理,与周边楼盘相比,性价比很有竞争力,而且东原的社区运营口碑让自己期待入住后的生活。在徐州房地产协会、徐州报业传媒集团主办的“2025徐州首届好房节”评选活动中,项目更是以品牌力和产品力荣膺“2025年市民期待楼盘”奖。
桂语新著开盘时间为7月13日,项目共分为南北两个地块,总占地面积约6.9万方,绿地率均高达约35%,建筑密度仅约20%,北地块规划5栋16-18层高层,南地块规划15栋17-18层高层,共计规划住宅1190户,还有约1000㎡商业。项目占地面积适中,人口密度较低,既有充足的空间打造规模化的舒适生活场景,又不会让居者感到拥挤局促。
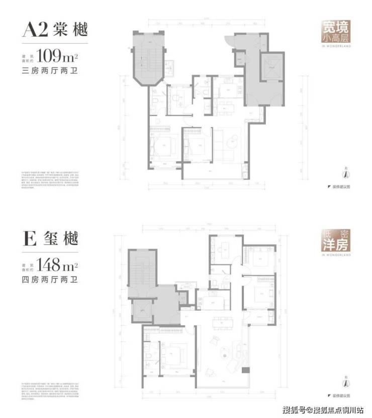
家是生活的主阵地,桂语新著在对户型设计上的年轻力表达更是重中之重。匠心打造建筑面积约100-143㎡的年轻力三至四房户型。项目采用全明通透布局,搭配大开间、大面宽设计,让年轻活力的生活充分沐浴在阳光、清风与自然美景之中。
稳步推进,品质渐入“家”境
目前,两个项目的建设均按计划顺利推进,工地现场井然有序。印樾里部分楼栋已建至 10 层左右,住宅主体结构施工高效开展,景观与配套设施规划同步筹备。未来社区内浮岛会客厅、儿童乐园、架空层会所等多元场景,不久将实景呈现。
桂语新著的20栋小高层同样处于主体施工阶段。其规划打造的约1539㎡风雨连廊、首层 “林间度假岛” 架空层等特色配套,也将随工程进度逐步落成,预计能如期为业主兑现舒适且具活力的理想家园。
精研户型,诠释生活美学
印樾里的109㎡小高层户型,双开间超6.3米阳台及三房两厅两卫布局,采光充足、功能完备,适配刚需及小改善家庭。其146㎡洋房更享双开门电梯与 270°观景端厅,赋予居者私密尊崇的生活尺度。
魅力
美好生活

空间美学
品质生活
桂语新著户型以全明通透、大开间设计为亮点。如 100㎡户型精巧规划,空间利用率高,适合年轻购房者;143㎡四房户型部分植入 “洄游动线”,优化动静分区,舒适与艺术感并存,为进阶生活提供更多可能。有业主评价143㎡的洄游动线设计,让家庭动静区域互不干扰,家里有孩子玩耍、长辈休息时,能保障各自的活动空间不受打扰,布局非常贴心。
OSMANTHUS GRACE
印樾里与桂语新著虽风格各异,却共同锚定徐州城南高品质居住标杆。印樾里以奢华酒店式氛围与东原社区运营优势,呵护居者日常;桂语新著凭借绿城极简美学及多元活力场景,构筑年轻态品质生活圈。
未来,期待与您一同见证印樾里与桂语新著从蓝图至实景的蜕变,共赴理想人居新旅程!
徐州徐高新绿城·桂语新著
徐州徐高新绿城·桂语新著售楼处电话:400-116-7720转888(中介勿扰)
徐州徐高新绿城·桂语新著售楼处电话:400-116-7720接通后输入888楼盘详情介绍,位置、小区环境、房价、周边商业配套、户型等楼盘详情;
预约咨询—提前联系咨询售楼中心置业顾问—进行预约登记来访
以上内容为官方发布!!!
声明:本文由入驻焦点开放平台的作者撰写,除焦点官方账号外,观点仅代表作者本人,不代表焦点立场。
