(咨询中心)2025武汉城投绿城雲庐 |楼盘首页|楼盘详情|楼盘动态|楼盘报告
扫描到手机,新闻随时看
扫一扫,用手机看文章
更加方便分享给朋友
🏡武汉城投绿城雲庐售楼处电话☎:400-116-7720转777【营销中心已认证】🥇🥇
✅武汉城投绿城雲庐营销中心电话☎:400-116-7720转777【营销中心已认证】🥇🥇
🏆本项目暂不接受临时到访,看房请提前预约,可尊享内部特惠!
🏆为您安排楼盘内场专业销售人员一对一接待服务,给您更贴心的看房体验!
光谷中心城投绿城雲庐位于豹溪路与流苏街交汇处,属于光谷中心城南区。是光谷中心城首座绿城,容积率仅2.03,加上绿城的品质、小区的一些细节设计,“庐”系也是绿城产品体系里面比较高端的系列,整体打造的是一个高品质改善盘。
1、项目品牌不错,有绿城加持,品质上值得期待;
2、光谷中心城配套规划等级较高,兑现较快,发展潜力大;
3、低容积率有叠拼,户型设计都比较方正,审美在线;
4、项目与市面上四代、准四代住宅相比,整体产品优势一般;
5、目前周边比较荒,各项配套还在持续兑现中,但是与小米武汉科技园和金山武汉总部等大厂都不远。
更多项目详情可添加老欢个人微信:laohuan208,进群获取相关优惠信息!
01
交通出行
● 从目前开通的轨交来看,目前距离项目较近的是全国首例光子号空轨列车相距400米,与最近的11号线地铁光谷六路站直线距离在近4公里,与19号线一期新月溪公园站直线距离约2.7公里都不太方便。
但规划路线来看,未来项目附近可能有19号线二期、13号线、24号线、29号线等线路。

● 项目在主干道高新四路、高新五路中间,自驾通过高新五路,途经光谷二路、光谷四路上光谷大道高架,可以直达光谷关山商圈,自驾还比较方便!
02
周边配套
● 商业方面,项目自带3万方商业,5公里范围还内有不少商业配套满足生活所需。例如已开业的武汉大悦城与项目直线距离约4.5公里,另外周边还有首创奥特莱斯、在建中的龙湖天街和光谷五路地下商业空间,整体来看未来商业还是比较丰富的。

● 教育方面,项目周边3.5公里范围内有光谷十八小、光谷国际外国语学校、光谷42小等。另外,项目东侧还拥有一块教育用地,据悉绿城会引入优质学校。

● 医疗方面,项目5公里范围内有同济医院光谷分院、同济医院儿童医院、湖北省妇幼保健院、武汉大学人民医院东院两所三甲医院已建成投入使用。未来还将有武汉光谷国际医院、武汉儿童医院光谷院区(武汉新城儿童医院)等,医疗配套相当优越。

● 自然资源上,更是没话说,光谷中央生态大走廊、新月溪公园等距离项目都不远,整体居住舒适度还是比较高的。

03
项目情况
项目居住用地面积约为3.86万方,总建筑面积约11万方,容积率为 2.03,绿化率约30%,建筑密度为 25.65%。项目共有12栋建筑,南面为4栋4F的叠拼产品,2栋4F的平墅产品,北面为6栋20-26F的高层产品,还配建有一所6班幼儿园。
项目整体上定位偏改善,项目引进绿城联合开发,有一定品牌高度,而且项目地块原本土拍时的规定容积率是2.9,意思是只要不高于2.9就行现在绿城雲庐住宅容积率仅2.03,相当于自降容积率,成本自然也会相应提升。
而且绿城“庐”系产品就目前在武汉来看,产品都是高端改善类型,价格都不低,因此老欢预测,项目或许也要做溢价,定价可能不会低。
目前距离较近的新房项目有万和光谷、光谷鼎正悦府、光谷大家中心,其中万和光谷在今年上半年就因为1万/平的单价上了一把热搜;光谷大家中心高层处于清盘状态,带装修18xxx起;光谷鼎正悦府19xxx起。
周边的二手房单价更低,项目东侧的新希望锦粼九里,毛坯成交价基本都在1.1-1.2万左右。旁边的光谷正荣府带装修成交价大概1.5万/平。

项目如何定价也成为了大家关心的话题。但是目前来看,项目自今年2月份营销中心以及样板间开放之后在市场上就没有什么声音了,开盘时间也一直没有确定。
不过有一点可以肯定的是,项目绿城“庐”系产品的品质还是值得期待的。
04
户型选择
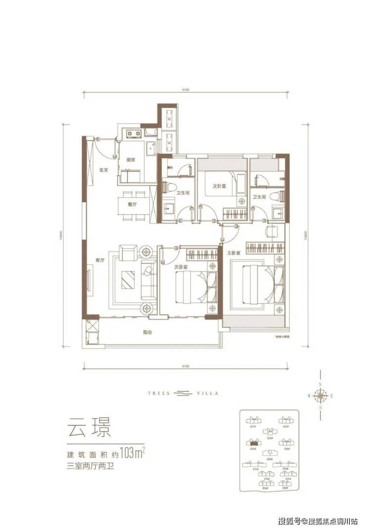
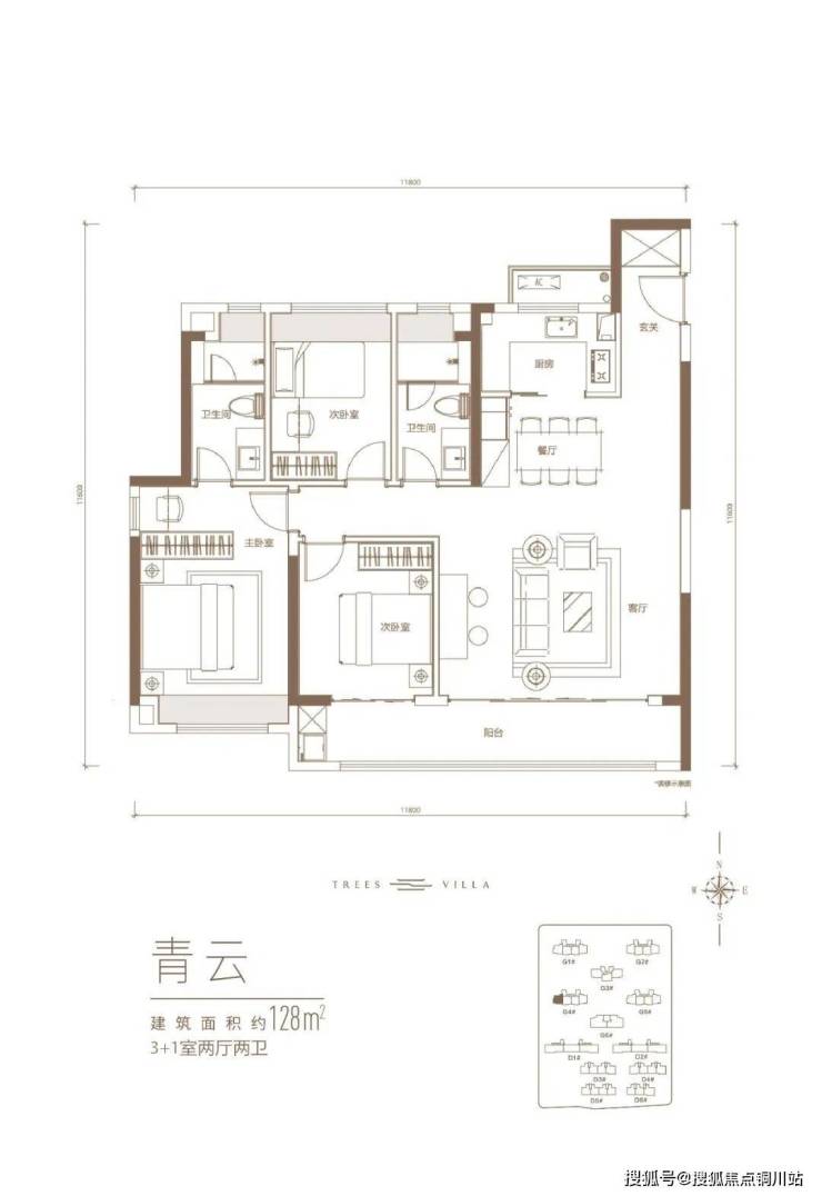
据悉项目首开将推出G4#建面约103-128㎡房源。
G4号楼为一个单元,25层的高层住宅,两梯四户的连廊结构,公摊约为22%,预计2026年年中交房。
户型图如下:
🏡武汉城投绿城雲庐售楼处电话☎:400-116-7720转777【营销中心已认证】🥇🥇
✅武汉城投绿城雲庐营销中心电话☎:400-116-7720转777【营销中心已认证】🥇🥇
🏆本项目暂不接受临时到访,看房请提前预约,可尊享内部特惠!
🏆为您安排楼盘内场专业销售人员一对一接待服务,给您更贴心的看房体验!
声明:本文由入驻焦点开放平台的作者撰写,除焦点官方账号外,观点仅代表作者本人,不代表焦点立场。
