【2025南京天琴华樟】项目售楼处电话→地址→户型→价格→南京天琴华樟售楼中心楼盘详情→南京天琴华樟最新销售动态!

铜川楼市发布 2025-10-09 15:26:14
用手机看
扫描到手机,新闻随时看

扫一扫,用手机看文章
更加方便分享给朋友

南京天琴华樟售楼处电话:400-116-7720转666【营销中心】 ✅✅ 楼盘详情介绍,位置、小区环境、房价、周边商业配套、户型等楼盘详情!

南京天琴华樟售楼处电话:400-116-7720转666【营销中心】

✅✅ 楼盘详情介绍,位置、小区环境、房价、周边商业配套、户型等楼盘详情!

天琴华樟由国贸地产及奥体建设强强联手,项目既是国贸地产人居峰作TOP级水准“天琴系”的代表,又是奥体建设全新“植物园+”中“樟”系的开篇之作,结合了金陵古都文化与海洋文化,将“海洋、长江、森林、岛屿”四大场景融合一体。

灰蓝色玻璃如云层般绵延,蕴含深邃的天空意境;“海金沙”铝板精心镌刻,捕捉日出的璀璨色调。

隐匿于10米宽的自然市政绿带之中,酒店式隐奢主入口门头彰显着对高品质、卓越品味的追求,其低调内敛,远离喧嚣与张扬。

环状入口如同精雕细琢的画框,巧妙地将中央水景塑造成空间的视觉核心。

在景观设计上,项目致力于打造一座都市中的海上森林,让您感受万物生机与活力。

天琴华樟倾心打造约2300㎡的下沉式江海美学私享会所,专享124户尊贵业主的独享空间。这里汇聚双泳池、高端健身房、私密宴客厅及五大主题豪华包间等多功能区域,尽享品质生活的每一刻。

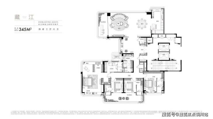
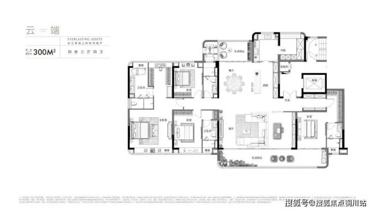
天琴华樟打造建面约300㎡、345㎡、385㎡大平层产品,更有建面约572㎡、646㎡的顶层大平层,这是目前河西唯一一个起步户型面积300+㎡的纯粹高端社区。

| 建面约385㎡户型示意图,具体以合同约定及实际交付为准

南京天琴华樟售楼处电话:400-116-7720转666【营销中心】

✅✅ 楼盘详情介绍,位置、小区环境、房价、周边商业配套、户型等楼盘详情!

声明:本文由入驻焦点开放平台的作者撰写,除焦点官方账号外,观点仅代表作者本人,不代表焦点立场。