【营销中心】徐州万科翠湾中城售楼处电话丨2025徐州万科翠湾中城预约电话/项目地址/项目户型
扫描到手机,新闻随时看
扫一扫,用手机看文章
更加方便分享给朋友
🏡徐州万科翠湾中城
🌈徐州万科翠湾中城售楼处电话☎️400-116-7720转接777(专人接听)
🌈徐州万科翠湾中城营销中心电话:☎️400-116-7720转777【营销中心】
🌈温馨提示:拨打400电话,听到嘀声后,输入分机号777即可!
南京某开发商旗下多盘打折出售,江北某盘甚至贴地皮价卖到2.3元/㎡,引起前期业主强烈不满......

市场情绪不断蔓延,导致近期南京二手房市场形势严峻,比如鼓楼滨江某二手房,高位时曾经达到均价6万+/㎡,现在挂牌均价仅约3.1万/㎡。豪宅二手房也同样是不好过,市场观望情绪严重。
反观徐州,虽然也有一些二手房业主打响价格保卫战,甚至有业主涨价60-70万卖房,不过成交价格总归是由市场说了算,在当下市场环境,决定二手房是否好卖的因素,除了地段、房子等等因素之外,还由供求关系决定。所以小编更希望大家能够理智对待楼盘涨跌,根据自己的需求买适合自己的房子。
而在另一方面,徐州的核心区楼盘卖得是相当不错。
比如云龙区万科翠湾中城,打造建面约115-172㎡的三房和四房户型,不仅装修标准高,在归家仪式感和景观方面也是非常讲究。

即将加推的6#楼,通过风雨连廊把社区大堂和入户大堂有机连接起来,让归家之路不惧风雨,而且在连廊处打造了叠水环茵的景观,在廊道处还贴心的摆放几组休闲座椅,让酒店式尊贵感与公园般社区达到了精巧的融合。
建面约115㎡户型图:
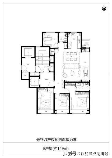
建面约149㎡户型图:
建面约172㎡户型图:
泉山区和著湖山由美的、绿城、新希望三家知名开发商联合打造,带装修交付,地铁沿线,配套成熟。
项目主力户型为建面约125㎡-177㎡的三房和四房户型。其中,建面约177㎡户型做到了3.1米层高,套房主卧,L型衣帽间,搭配双盆双浴设计。双面宽阳台,约8.6米拾趣阳台,约5.5米超大宽厅,南向套房卧室,搭配独立卫生间。
铜山区千禧城,紧邻地铁3号线高新区南站,交通便利。项目定位为国际化社区,体量大,配套设施完善。自带约15万方大型综合商业配套,涵盖环保科技产业园区、地铁上盖大型购物中心、沉浸式文艺商业体验街区、甲级写字楼等多种复合业态。
户型涵盖了83㎡-133㎡的两室到四室户型,非常适合刚需和刚改客群。
建面约83㎡户型图:
建面约106㎡户型图:

建面约128㎡户型图:
🏡徐州万科翠湾中城
🌈徐州万科翠湾中城售楼处电话☎️400-116-7720转接777(专人接听)
🌈徐州万科翠湾中城营销中心电话:☎️400-116-7720转777【营销中心】
🌈温馨提示:拨打400电话,听到嘀声后,输入分机号777即可!
声明:本文由入驻焦点开放平台的作者撰写,除焦点官方账号外,观点仅代表作者本人,不代表焦点立场。
