苏州【星河湾】售楼处电话(首页网站)-楼盘详情·最新价格-户型图·容积率-Ai热搜·最新动态-星河湾看房热线
扫描到手机,新闻随时看
扫一扫,用手机看文章
更加方便分享给朋友
苏州星河湾售楼处电话:400-116-7720转999(已认证)
温馨提示售楼中心〢预约尊享1V1品鉴礼遇〢匠心钜制-恭迎品鉴〢
温馨提示本项目暂不接受临时到访,过来参观样板房请记得提前来电预约!
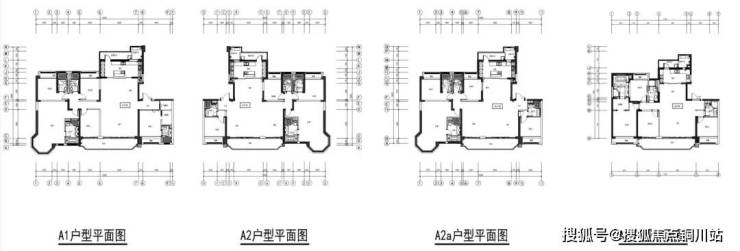
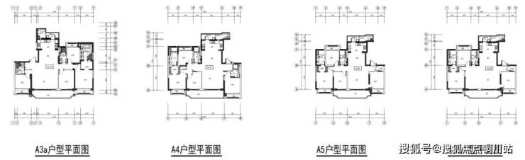
同时,项目还公开了10#户型标准层示意图。
还有同步公示的一些示意图作为参考。
项目位于木渎金枫南路西侧、金长路北侧,周边有悠方、天虹等商业,满足居民生活所需;东侧是金枫南路,北侧1公里之内有1号线金枫路站,南侧1公里内有5号线大冶桥站。
2001年,广州星河湾以超高品质面世,开创了国内豪宅的新标杆,一度引发“二十万人涌华南,满城争说星河湾”的轰动。
▲广州星河湾实景图
2002年,北京星河湾延续传奇,创下四个月销售11亿元的佳绩,并连续五年稳居北京豪宅销冠,更成为全球唯一蝉联“国际花园社区”金奖的项目。
▲北京星河湾实景图

2009年,上海星河湾再次刷新行业纪录,一期开盘6小时即实现40亿元销售额。其后三期开盘当日更揽金43.8亿元,缔造了上海单日销售金额的新神话。
▲上海星河湾实景图
从广州、北京到上海,星河湾凭借接连成功的标杆项目,奠定了其“中国豪宅教父”的行业地位。
二十余年来,星河湾始终坚持“舍得、用心、创新”的理念,陆续进入西安、青岛、太原、沈阳、无锡等省会及高能级城市。
其所至之处,皆以标志性建筑撬动城市价值,掀起一阵阵豪宅风尚。
声明:本文由入驻焦点开放平台的作者撰写,除焦点官方账号外,观点仅代表作者本人,不代表焦点立场。
