2026【苏州芳菲澜院】售楼处电话(首页官网)-苏州芳菲澜院楼盘详情·最新价格-户型图·容积率-Ai热搜·最新动态-看房热线
扫描到手机,新闻随时看
扫一扫,用手机看文章
更加方便分享给朋友
苏州芳菲澜院售楼处电话✅:400-116-7720转999
✅营销中心电话☎:400-116-7720转999【营销中心已认证】🥇🥇
苏州芳菲澜院售楼处电话✅:400-116-7720转999

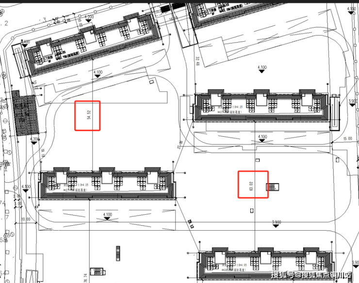
项目早期规划方案中,洋房组团的楼间距就比较奢阔,达到了54.52米和63.02米,这个尺度超越了多数洋房项目的楼间距。或许也是因为这奢阔的尺度,让招商建管&苏高新觉得项目的总规和产品方向还可以再打磨,所以在报规约2个半月后,从而再次调整方案。

整体而言,项目调规之后,别墅的体量更大,别墅社区的形象体验感更足。
当然,从项目的布局结构来看,新调整出的别墅,产品户型还是和南组团原有的别墅产品特点一致。(最终以开发商公布的准确信息为准)

芳菲澜院落址太湖科学城芯,打造约1.0低密容积率、约270㎡、300㎡臻稀城市联排别墅产品,荟萃城市繁华、太湖山水、南大文脉于一体。

配套上来讲,项目所在地段亦是科技城未来核心位置。西侧紧邻苏州雪世界和创业园预计2025年下半年运营使用,旁边南大苏州校区已经启用,周围还有南京大学苏州附属小学、幼儿园等已经全部就位,配套成熟,自然景观资源丰裕,生活氛围极佳。
其实,目前芳菲澜院展厅已公开,就在苏州市高新区锦峰国际商务广场A栋星巴克旁。
芳菲澜院,作为招商建管携手苏高新集团在科技城(太湖科学城)打造的首个“澜院系”,在产品力营造层面,也拿出了极大的魄力与创新,产品力拉满:
首先,对于主入口的营造,大面积铝板搭配透光奢石,也是一整个奢华霸气,色系的搭配,材料的运用,很有豪宅的既视感。


社区内,复刻苏州经纬纵横的古城形制,以千年坊巷文化为依据布局院落。更是以【姑苏繁华图】为园林设计灵感,遵循“名门启序、寻幽探胜、墨卷云舒、云墨蘭亭、倚画栖林、闲居雅境”六重游园场景,沉浸式体验归家礼序。

产品外立面,大面积玻璃+铝板+奢石点缀,加上东方屋檐的建筑形制,不经意间流露古朴隐奢的东方气韵!
从细节来看,正面以仿翡翠的奢石、冷峻的石材、灵动的铝板线条以及大面积通透的玻璃相融合,营造出一种奢华而典雅的质感;侧面则采用石材与铝板线条的搭配,简洁而大气。纵向挑檐更是独具匠心,将现代技法的精简流畅展现得淋漓尽致,同时又巧妙地融入了传统建筑的文化精髓。
顶部采用现代材料优化传统屋檐,层次清晰,建筑形态上如飞鸟展翼,轻灵灵动。


最后来看看户型。调规之后的联排别墅总共156套,户型为270㎡(地上+地下)和300㎡(地上+地下)两种。
相比于市场上的同面积段产品,芳菲澜院的开间更窄,进深偏大些。270㎡开间8.8米,300㎡开间10米。270㎡的客厅因为开间不够大,所以不会给人很大气的感觉,300㎡这个户型客餐厅视觉感则会好一些。
当然,由于这是苏州科技城区域限墅令之后率先报规的新别墅项目,而在此之前,城西或者科技城区域,多数的别墅项目还是呈现出比较明显的经济型别墅的特征,在户型开间尺度上偏向传统的两面宽为主,多数集中在7.5-8.1米开间左右,所以芳菲澜院这个开间尺度,虽相比其他一些新出的别墅项目户型,没有优势,但区域内目前还是独享一定优势的。
约270㎡中间户+边户
中间户带南北双花园,大概加起来50-60平米
南北双露台,客厅挑空赠送面积
预留电梯井,地下室带采光井
约300㎡边户
南向面宽约10米,超大客厅直通花园
同样是南北双花园,花园大概有70-80㎡
二层南阳台+北露台,客厅同样更有挑空灵动空间
地下一层挑高,有天井采光,车库半入室,还可以直接从地下车库入户
苏州芳菲澜院售楼处电话✅:400-116-7720转999
✅营销中心电话☎:400-116-7720转999【营销中心已认证】🥇🥇
苏州芳菲澜院售楼处电话✅:400-116-7720转999
声明:本文由入驻焦点开放平台的作者撰写,除焦点官方账号外,观点仅代表作者本人,不代表焦点立场。
