武汉越秀天悦文华售楼处电话→武汉越秀天悦文华售楼中心电话→2025武汉越秀天悦文华楼盘百科→楼盘网站→楼盘测评→售楼中心电话→24小时热线
扫描到手机,新闻随时看
扫一扫,用手机看文章
更加方便分享给朋友
武汉越秀天悦文华售楼处电话✅:400-116-7720转999
✅武汉越秀天悦文华营销中心电话☎:400-116-7720转999【营销中心已认证】🥇🥇
✨武汉越秀天悦文华售楼处电话✅:400-116-7720转999

▲区位分析
设计团队因地制宜,通过规划最大化利用场地资源,在有限的空间内见无限的世界。对外是城市崭新界面,现代都市社区形象,时髦且具有高辨识度,对内是多重院落,多重场景体验,浪漫而富有文化气息。
▲对外是崭新界面
建筑设计上,采用四栋楼围合中心院落的方式,致力于最大限度利用了基底的长宽,让四面楼间距最大化。外围设置消防登高场地,使其内部形成55*77米超4千平米的中心景观庭院,更加纯粹私密。风雨连廊的设置消解人视点上的建筑体量,弱化了高层的压迫感,强调了空间院落氛围,打造可观可游可停可享的绿色生活人居环境。
多重院落 诗意归家
宁静舒适的生活方式
全区风雨连廊与建筑挑檐无缝连接,实现归家风雨无阻的酒店式体验;通过连廊、架空层、建筑挑檐等灰空间联动,串联主入口、各单元的入口、全龄活动空间、宅间花园,营造全龄社交剧场,形成多重院落空间,打造园区的活力动线;建筑与庭院空间疏密结合,旷奥兼备,漫步于社区中,享受“园中有院,院中有园“的诗意归家体验。
▲归家流线分析
起丨百米宽庭,门户之阔
社区入口结合景墙整合城市界面,化零为整,弱化地库出入口,打造近100米宽的形象昭示面,交互式景观迎宾界面和开放的入口空间,形成一条面向城市空间的超级界面。整体完整的形象进一步提升了项目的尺度感和气势,搭配黑金的色彩搭配,彰显沉稳气质。
主入口处将空间放大,打造酒店式落客区,郁郁葱葱的植被环绕起到了视觉缓冲的作用,很好的保护了私密性,也让住户归家有富足的仪式感和领域归属感。
承丨全景环绕,边界消融
进入门庭,首先映入眼帘的是社区议事厅,右侧是社区图书馆,也是前期的洽谈区和水吧区。为保证室内外的完美呼应,议事厅和图书馆一侧采用3M宽,4.6M高的超白钢化夹胶玻璃,通过无框不打胶的方式,形成360°无遮挡景观视野,此刻,建筑、景观、室内在空间中交叠映衬,和谐共处。
进入休息区,宽敞明亮的空间设计搭配现代感强烈的线条和曲线,营造出酒店式高端大气的氛围。多功能吧台和舒适的沙发,让外出回来的住户得以片刻休息,即刻感受到宾至如归的体验。

转丨步移景异,五感盛宴
首层单元大堂与风雨连廊的设计手法融合统一,采用仿石砖嵌金属条的形式,在入口电动门两侧设置发光云石灯柱,顶部吊顶设置星光顶,形成场域化的同时增加昭示性。议事厅两侧结合单元入口分别设置了两个小庭院,加之景观水帘、金属网帘的设计为入口和架空层增添更多自由与愉悦。
造园贯彻于整个中心庭院的规划中,大大小小十多个庭院矩阵围合,天然的形成了曲折通幽的路径,为住户带来移步异景的闲适体验。
合丨中心庭院的空间疗愈
中心庭院通过社区会客厅,将假日客厅和自然客厅两个分别代表惬意放松和代际陪伴的生活氛围,融入到庭院主题中。不仅提供了一个亲近自然、享受宁静的空间,也能满足住户多样化的社交和文化需求。
社区会客厅下沉式卡座、可开启的折叠门、开放吧台和室外景观悄然融合,创造出流动性强、层次丰富的空间感受。折叠门可根据需要调整空间的开放性和私密性,使空间的边界灵活多变,收放自如。
结丨架空层设计有无限可能
架空空间主要分为健身模块、长者模块、私宴模块、儿童模块四大主题,分别设置了茶话馆、健身馆、影音室、社区图书馆、私宴等多元化的功能。从分龄人群配套到社区图书馆,从景观节点到社区派对厅,每个家庭都可以在共享空间找到自己的专属生活。让架空不止是架空层,而是丰富多彩的生活方式,让住宅不止是居住,而是心灵归属的温馨港湾。

精心细作 匠心雕琢
工艺的传承铸就永恒价值
门庭用仿石砖、金属、星光顶、金属帘、云石片等材料打造,金属的精致、仿石砖的厚重、星光顶的梦幻和入口精致水景相得益彰。匠心雕琢代表对品质的不懈追求,对细节的坚持和尊重,工艺的传承与发扬将成为跨时代的艺术。


星光顶运用参数化设计,模仿宇宙星云的形式,结合入口金属帘形成渐变的星光图案。经过多轮尺寸推敲,穿孔板的最大尺寸控制在1324mm*2200mm,穿孔孔洞最大孔尺寸为50mm,孔最大间距为60mm,可避免穿孔板板块分隔及加强肋对穿孔图案的破坏。

▲星光顶平面图
▲星光顶节点图
入口两侧弧形片墙通过将仿石砖分割成小快,之间用金属嵌条进行盖缝处理,解决仿石砖无法做弧面的材料特点。下部使用普拉达绿石材和上部材质形成对比,层次丰富且富有质感。两侧片墙通过弧形金属边,竖向和横向的金属装饰条,侧边金属吊灯,增加整体的精致度。
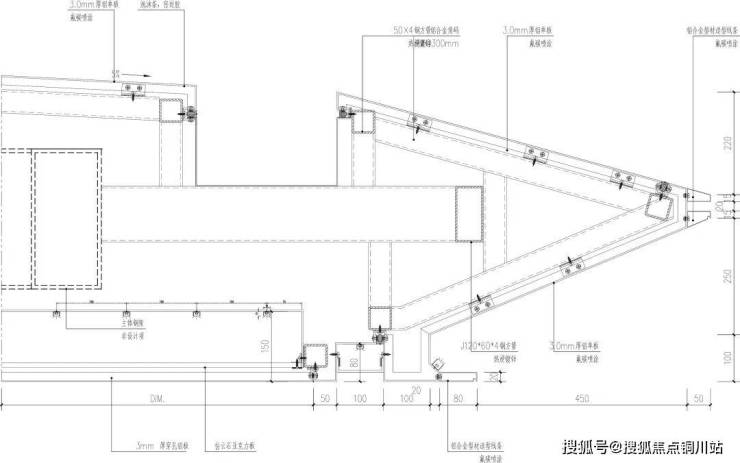
▲弧形片墙节点大样1
声明:本文由入驻焦点开放平台的作者撰写,除焦点官方账号外,观点仅代表作者本人,不代表焦点立场。
