苏州中海姑苏第售楼处电话→售楼中心电话→苏州中海姑苏第楼盘百科→楼盘网站→楼盘测评→售楼中心电话→楼盘百科→24小时热线电话→楼盘详情
扫描到手机,新闻随时看
扫一扫,用手机看文章
更加方便分享给朋友
苏州中海姑苏第售楼处电话:400-116-7720转666(已认证)
苏州中海姑苏第开发商电话:400-116-7720转666【售楼中心】
温馨提示售楼中心〢预约尊享1V1品鉴礼遇〢匠心钜制-恭迎品鉴〢

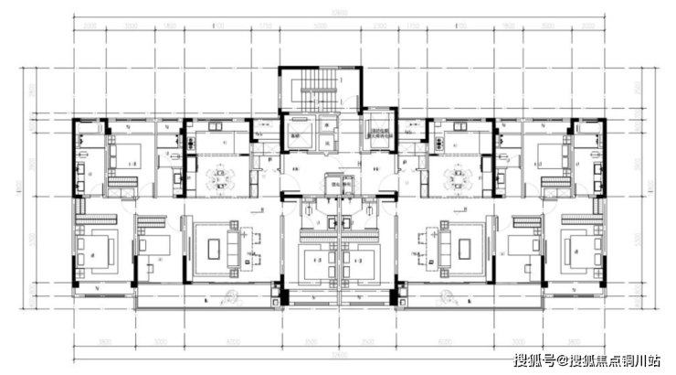
在产品上,项目以姑苏地脉为基,打造了集“无界、雅筑、桃源、精奢”为一体的 产品价值体系 ,规划有6栋14-17F小高层,建筑面积约130~183㎡隐奢精装大平层。
景观布局

中海·姑苏第打破自然与建筑的边界,将外部彩虹河、劳动公园与内部景观相融合,举步即达胥江景观带。 在景观打造上,取义江南古典园林精髓,以水、石、竹 为元素等,打造游心江南的四季景观。
建筑风格

汲取苏绣框镜灵感,借鉴竹辉金普顿酒店,以大面积玻璃幕墙,打造琉光美学立面;取意竹叶曲线,构建屋檐造型;同时,双精装酒店式入户大堂,繁华静谧随心切换。
户型鉴赏
约130m²(三房两厅两卫)

约155m²(四房两厅两卫)

约180m²(四房两厅三卫)

声明:本文由入驻焦点开放平台的作者撰写,除焦点官方账号外,观点仅代表作者本人,不代表焦点立场。
