2025南京玖印府售楼处电话_来电预约看房_(玖印府营销中心)楼盘详情-2025最新房价
扫描到手机,新闻随时看
扫一扫,用手机看文章
更加方便分享给朋友
南京玖印府售楼处电话✅:400-116-7720转999
✅南京玖印府营销中心电话☎:400-116-7720转999【营销中心已认证】🥇🥇
南京玖印府营销中心电话☎:400-116-7720转999【营销中心已认证】🥇🥇

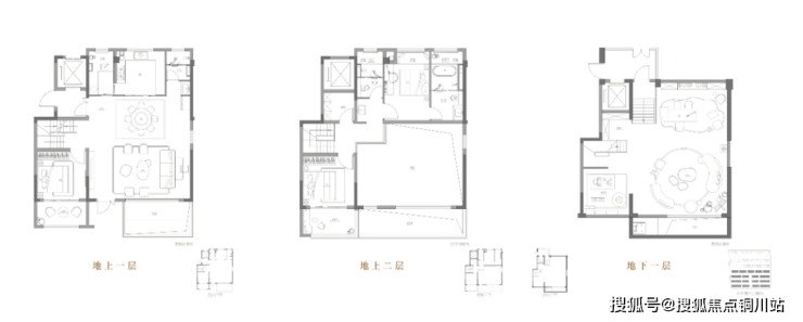
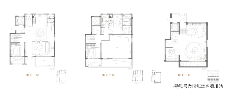
再看具体细节,玖印府容积率仅1.6,规划17栋4-6层叠拼、6栋9层洋房、5栋20-24层高层,前低后高的布局形式,共计700多套房源。
高层(1+24层与1+22层):109㎡户型&119㎡户型
洋房(1+9层):120㎡户型
叠墅(4-6层):四叠,182㎡下叠/190㎡上叠,六叠楼栋:143㎡

作为项目热度最高的叠墅户型,四叠的户型看到谁还能走得动道!
上叠(约190㎡):地上3层-4层及空中露台(露台全送)
双露台设计,户型赠送面积超乎想象;约6.6米墅厅+约80㎡超大露台, 人生的气度和格局就此展开, 客餐厅一体化+大横厅设计,给到生活更多可能;4层主卧套房加上约3.3米层高,是对别墅奢华生活的极致诠释,顶层约80㎡的空中花园,面积堪比百平公寓的套内空间 ,兑现生活的100种可能。

下叠(约182㎡):地下负1+地上1-2层
南北及地库三种归家动线,尊崇感、私密感拉满;一楼有南向自然庭院,放得下男主人的志趣、女主人的兴趣和孩子们的乐趣;约3.3米层高+约6.6米挑空客餐厅,与室外花园景观无界相融;约3.6米挑空地下室空间,可以打造休闲区、起居室、书房等功能区,妥妥的户型大师!

建面约109㎡高层户型:餐客厅及卧室四开间全部朝南!约3.15米室内层高+约5.9米宽挑空花园露台,空间感、尺度感远超同类产品,竞争力拉满。北向设备平台可用作家政间、收纳间,惊喜满满。

建面约120㎡洋房,3+1房2厅2卫设计,约12.5米南向四开间、约6.1米横厅设计,是109㎡户型的扩大版,挑空露台宽度约6.3米,横厅布局可以根据家庭不同阶段需求实现三房到四房的功能转变。

最后看项目配套,对标酒店式的独立恒温泳池,定制约3000㎡下沉会所+泛会所,涵盖酒店式接待台、会客厅、儿童天地、健身房、室内高尔夫、桌球室等,包含了所有年龄段的社交场域,充分满足业主物质和精神双层需求。
此外,项目还将从“全龄社区”角度出发,将架空层打造成容纳多元生活的社区中心,成为一个集合休闲、亲子、社交等复合功能为一体的生活空间,促进邻里间的交流互动,给业主提供更丰富的居住方式。

产投&卓越共同打造!引领南京高端人居新标准!
当下的楼市,缺的是稳健、又深度参与当地开发的企业,产投集团是由原南京高新开发总公司于2017年12月更名重新组建而来,是产业投资运营商、产城融合服务商,深度参与江北新区产业投资与发展,共建江北。纵观过往,凡是产投集团操盘的项目,纷纷迎来了城市界面的焕新以及价值上的大爆发。

南京玖印府售楼处电话✅:400-116-7720转999
✅南京玖印府营销中心电话☎:400-116-7720转999【营销中心已认证】🥇🥇
南京玖印府营销中心电话☎:400-116-7720转999【营销中心已认证】🥇🥇
声明:本文由入驻焦点开放平台的作者撰写,除焦点官方账号外,观点仅代表作者本人,不代表焦点立场。
