2026无锡玖礼檀樾售楼处电话_来电预约看房_(无锡玖礼檀樾营销中心)楼盘详情-2026最新房价
扫描到手机,新闻随时看
扫一扫,用手机看文章
更加方便分享给朋友
无锡玖礼檀樾售楼处电话☎️400-116-7720转接777(专人接听)
无锡玖礼檀樾营销中心电话:☎️400-116-7720转777【营销中心】
🌈温馨提示:拨打400电话,听到嘀声后,输入分机号777即可!
无锡玖礼檀樾
东方雅院·臻藏山水

开发企业:绿地香港、无锡梁城美景
产品类型:高层住宅
建筑风格:现代
01
核心推荐理由
梁城美景&绿地香港双国企匠心联袂,继无锡檀宫之后,再次合著檀系新作玖礼檀樾,承袭无锡精神与江南风骨为设计脉络,敬呈无锡的时代精神。
01 多维度交通路网,擎引世界宏图
城市双轨交:直线距离约800m地铁4号线广石路站、直线距离约1.3km地铁1号线民丰路站双轨在旁,多维轨交,高效出行。
城市主干线:0距离江海快速路、直线距离约500米凤翔快速路,纵横主脉贯通各区核心,衔接长三角都会圈。
02 书香“邻”距离,助力梦想成长
3所小学:直线距离约600m五爱小学雪枫分校(在建中)、直线距离约800m吴桥实验小学、直线距离约1.3km庄前小学
2所中学:直线距离约100m无锡凤翔实验学校、直线距离约1.5km市北高级中学
03 优质医疗资源,护航家人健康
双三甲医院:直线距离约1.4km中国人民解放军联勤保障部队第九〇四医院、直线距离约2km无锡市第二人民医院(北院),满足多元健康需求。
04 都会级商业配套,集萃繁华万象
近享繁华主场:直线距离约750m盛唐乐享城(大润发)、直线距离约1.7km无锡圆融广场、金太湖国际广场、直线距离约2.6km无锡南广场等高端商业。

02
项目概况
无锡玖礼檀樾项目位于无锡市梁溪区梁溪科技城核心地带,南侧紧邻滨水城市公园,西侧紧靠城市绿化,周边景观资源丰富,家门口的公园。
小区规划两排16到18层的建筑,围合出中心大花园。
沿南侧道路设置沿街商业及配套,为社区居民提供便利的生活配套设施及社交体验场所。

小区主入口采用酒店大堂式设计,创造酒店式的归家体验。穿过人行大堂,进到小区内部,超大的中心花园展现在眼前。从大堂到中心花园,到组团花园,再到单元入户,同时地上地下双大堂入户。五级归家流线,为人们提供尊贵、富有仪式感的归家场景。

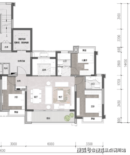
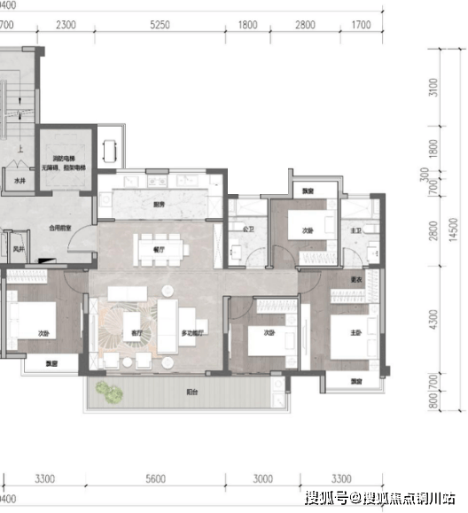
小区共有110㎡,120㎡,138㎡三种产品。其中138产品采用大方厅设计,四开间朝南,5.6米南向宽厅,四房两厅两卫,极富创新及体验感,充分利用南向面宽,超越市场同等产品;120产品同样采用4.8米开间客厅,四开间朝南,户型方正经济,体验感强。110的产品同样采用了横厅设计,3.5开间朝南,户型舒适。
小区商业配套及入口大堂采用铝板和干挂石材设计,住宅单元入口也采用铝板及石材。住宅主体采用仿石涂料一体板,整个立面简洁现代,色彩温暖,时尚典雅。



03
外立面
建筑立面以竖向横向线条交错,以简洁现代的建筑语言通过线条的穿插构成建筑立面的线条关系。以灰色材料作为主要色调,香槟色为辅,营造低调奢华的现代建筑气质。
建筑特点:保持三段式划分,对称统一。主体横向线条,部分有竖向分隔。采用低调奢华的现代主义语言,多层次的景观空间与建筑有机结合,风格协调统一,相互呼应。多层界面,多功能空间的穿插融合,营造出现代、舒适、休闲、度假的居住空间。


04
主力户型
阳光美宅阔绰精质空间,涵养主人生活格局,从容诠释舒居生活。
本项目共三个户型,依据项目用地横向长条形,面宽条件极好,充分利用地块优势,户型面宽尽量做大,做到极致南向面宽。户型从级配到每个空间,尺寸都精心设计考虑,做到每个尺寸都合适,每个空间都合理。

110㎡(3.5面宽,两面宽景观阳台+全景飘窗)
玄关对景设计,超大收纳空间设计,储物加倍。
厨房U型厨房,使用率高,适应不同的生活模式。
客餐厅横厅设计,空间更加开敞。
阳台两面宽南向景观阳台设计,与自然互通共融。
卧室舒适的主卧套房设计,纵享私密空间。

120㎡(4面宽,全南卧室+全景飘窗)
玄关半开放玄关空间,延伸餐客厅视觉空间。
厨房超宽U型厨房布置,使用率高,餐厨互动性强。
客餐厅4.8米客厅,南北纵厅设计,空间奢华开敞。
阳台大面宽南向景观阳台设计,与自然互通共融。
卧室舒适的主卧套房设计,纵享私密空间。

138㎡(超大方厅+全景飘窗)
玄关半开放玄关空间,延伸餐客厅视觉空间。
厨房超宽U型厨房布置,使用率高,餐厨互动性强。
客餐厅超大共享方厅,格局方正,餐厨互动性强。
阳台2.5面宽南向景观阳台设计,视野开阔,与自然互通共融。
卧室舒适的主卧套房设计,纵享私密空间。
05
精装设计
本项目三个户型以“现代时尚”、“现代雅致”、“现代轻奢”作为设计风格,经过精心规划与多次优化,旨在创造一个舒适、便捷的生活环境。




06
社区规划
『双轴三心十景阳光公园住区』
南北向景观轴,将小区分成东西两大组团;东西向景观轴,形成一条中心景观带;两条轴交汇形成景观中心,东西组团形成两个景观次中心。
充分利用地块周边的城市景观资源,打造街区公园,实现“城在景中”的居住体验。








07
景观规划
丰富及人性化的住宅社区景观,运用现代的手法将景观进行演绎,打造与自然和谐共生、层次细腻的人文景观现状。充分利用场地周边积极因素,设计溯源无锡寄畅园,巧于因借,步移景异,置石理水、曲径通幽,融入“门庭、飞瀑、水涧、雅亭、繁花、静林、醒石、清泉”古典造园元素,结合现代人审美营造东方隐奢的气质,大雅至简的空间,洄游于现代山水之间,半山半水之间,每走一步是不同风景,每看一眼都有不同的心境。

【公园氛围】以中心型布局,大手笔规划广阔绿地空间,给予社区鲜氧互动场域,打造双轴双厅十景,尽享公园礼的诗意栖居。

【花园会客厅】社区内多个综合会客厅交相辉映,为业主会友创造互动契机。

【能量健身区】社区内多种运动活动场地,打造全龄运动空间。
【檀樾十景】悦动花园|清泉石流|花谷叠瀑|口袋公园|全龄儿童乐园|能量乐园|中央会客厅|公共绿廊|康健步道|沿街商业街。

【社区商业】社区沿街开放式商业街区,与商业街零距离,满足丰富日常所需。

※ 免责声明:
本公众号所提及项目信息(含交付标准、销售信息、精装配置、户型图、示意图及效果图等),均来自公开资料,仅供参考借鉴,不作为要约、承诺及投资依据,最终以开发企业实际公示为准。
无锡玖礼檀樾售楼处电话☎️400-116-7720转接777(专人接听)
无锡玖礼檀樾营销中心电话:☎️400-116-7720转777【营销中心】
🌈温馨提示:拨打400电话,听到嘀声后,输入分机号777即可!
声明:本文由入驻焦点开放平台的作者撰写,除焦点官方账号外,观点仅代表作者本人,不代表焦点立场。
