南京颐和铂樾府售楼处电话→2025南京颐和铂樾府售楼中心电话→楼盘百科→楼盘详情→首页@最新网站→24小时热线电话
扫描到手机,新闻随时看
扫一扫,用手机看文章
更加方便分享给朋友
��☎【南京颐和铂樾府售楼热线】:400 116 7720 转888☎⫷
��➤南京颐和铂樾府售楼处〢欢迎咨询〢提前预约可享内部底价〢➤
��南京颐和铂樾府售楼处直销热线400-116-7720转888中介勿扰|欢迎致电咨询
��温馨提示:为了节约您的等待时间,看房请提前致电售楼处预约!!!
▰▰▰▰▰▰▰▰▰▰▰▰▰▰▰▰▰▰▰▰▰▰▰▰▰▰▰▰▰▰▰▰▰▰▰▰▰
这波史诗级利好,空前绝后。财富大洗牌下,未来10年最大赢家,一定是对城市发展做出精准预判的人。在南京,河西依然是城市骄傲、置业首选。但这片千万级豪宅圈的门槛,可不是普通人能随便跨进去的。
不过今天,我要吹爆一家楼盘,它带来了超级惊喜!河西黑马 颐和铂樾府 ,总价600万起、首付150万起,带你杀进南京富人区!
 
▲颐和铂樾府建筑效果图
说实话,我第一次听到很意外。河西改善从来以大为贵,颐居建设迭代之作颐和铂樾府,作为南京新一代高奢改善,竟然用“小亦大作”的思路做产品,绝赞!
建面约115㎡三房两卫更实现 6大“不可能”:
★不可能1:这是河西稀缺小户型,且配备科技系统,是河西几乎不可能出现的产品。
★不可能2:小户型也做到2梯2户!
★不可能3:这是河西少见的17层小高层,北侧无连廊、公摊少,拥有超高得房率。
★不可能4:市面上难以实现的近5.9米面宽客厅。
★不可能5:首付约150万起,就能上车河西。
★不可能6:装修标准和功能同频千万级改善盘!
我相信,这一定是很多人买房清单里的第一名。因为论地段、产品、品牌实力,颐和铂樾府是你首付约150万,在南京能买到的优质改善!
 
▲颐和铂樾府建筑效果图
 
 
河西,至少有6年,都没出现过150万的首付门槛了。
如今,6年难得一现的机遇终于出现。颐和铂樾府,首付150万起、建面约115㎡,带你跨入南京富人区!
要知道,这种机会上一次出现还是在2017年,河西十盘齐开,首付8成+验资双重门槛(也就是,首付最少240万、验资最少180万),也没能挡住南京人买河西的热情。
当时我现场见证,数以万计的买房人彻夜排队,只为上车河西。如果以每户验资180万计算,当天南京有上亿资金涌入河西,成为全国大新闻。
 
▲河西十家楼盘齐开报名现场照片,图源网络
之后,河西高端改善基调逐渐明确,单价一再捅破、户型越做越大、尺度越来越豪、护城河越来越高。河西,成为众多改善家庭心中遥不可及的梦。
现在,当颐和铂樾府115㎡户型,碰撞上史诗级利好,这一历史性的机遇,终于将河西首付再次打下来了!南京千万级的板块,终于向更多家庭,抛出橄榄枝!
 
▲颐和铂樾府建筑效果图
颐和铂樾府原为河西南G71地块,在去年10月21日正式拿地,与建邺城建合作开发,产品经历了300多天的反复雕琢与打磨,最终呈现。整个社区规划5栋17层小高层,共计306户,全部两梯两户,建面约115、122、130、175㎡,其中115㎡户型占比最多,总价约600万起,首付2.5成约150万。
定位上,这是颐居建设体系内迭代之作,也是南京新一代高奢改善,我已看过实体样板间,提前剧透下,质感很炸裂,产品力用功又用心!
 
▲颐和铂樾府楼栋分布示意图
 
 
现在河西,已经没有开发商,愿意做小户型了。既然要在产品上投入更多,那不如一次性把户型做大,这样才能实现更高溢价。
颐和铂樾府却在核心土地上,打造不输给同批次改善的品质,且配置小户型产品,这就是国企的责任感!
它让更多买房人能跨入河西改善,也成为河西业主,实现分户居住的优质选择。不仅每个户型都做成高奢级别爆款,哪怕最小建面约115㎡户型,都花了很大心思。
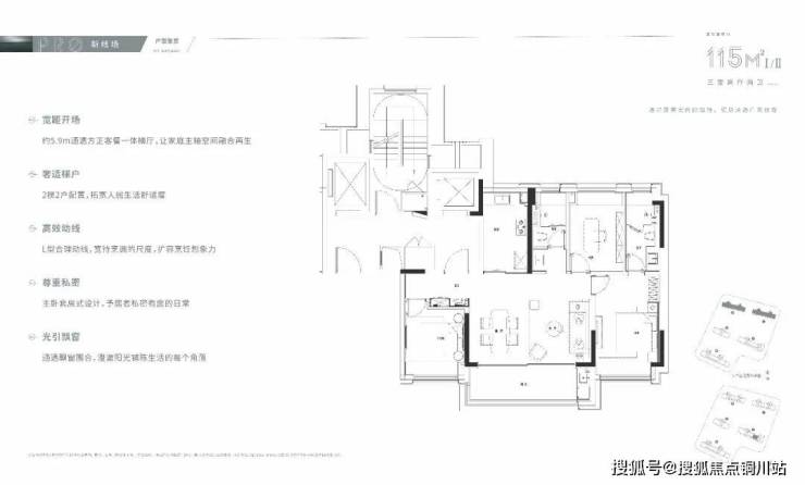
建面约115㎡:南京爆款神户型
颐居建设向来擅长做宽境户型,但这套建面约115㎡三房两卫户型,还是让我惊艳到了,它没有连廊,而且是科技房,层高约3.1米,多重稀缺性叠加。
先说基本面:三开间朝南,大开间、全明设计,采光面最大化,且没有连廊,通风性极佳。
 
再拎一些独特优势:
★超稀缺1:层高约3.1米,这种层高屈指可数,一般都出现在高端改善楼盘。因为只有高端改善,才舍得牺牲一部分利润,做出比普通住宅更高的层高。
但约3.1米层高,可以明显改善你家里的纵向空间感,带来更敞亮、更高阔的体验,突破生活品质的天花板。我提前拿到了项目设计过程稿,还没最终定版,先给大家剧透下:
 
▲建面约115㎡样板间设计示意图(过程稿,以开发商公示为准)
★超稀缺2:整个餐客厅面宽约5.9米。南向连通面宽约5.9米,进深约1.6米的阳台,实现LDK一体化,尺度感堪比125㎡以上户型。
★超稀缺3:开间约2.1米的厨房。我想一定会有很多人,被这个敞亮的大厨房打动,我看到后疯狂心动!
厨房L型布局,开间约2.15米,进深约3.8米,是我近期见过最开阔厨房之一,对于掌勺者和帮厨人来说,太需要这种大厨房了。
★超稀缺4:3个卧室,均好性极强。主卧面积约20㎡,很体面的套房设计,没有一味地做大。而是将一些尺度,让渡给南北次卧,且南北次卧都有飘窗,改善每一位家人的空间,不做区别对待。
 
▲建面约115㎡样板间设计示意图(过程稿,以开发商公示为准)
建面约130㎡:河西稀缺灵动三房
在河西楼盘里,建面约130㎡户型,大多四房,颐和铂樾府当然也能这么做。
但优先考虑到舒适性,设计团队最终呈现三房布局。如果家庭有四房需求,业主可自行调改为四房,很灵活。
这种主动服务于需求、服务于业主的意识,我觉得超级赞。这也是河西在售盘中稀缺的建面约130㎡3+X房产品,全河西,仅此68套。
 
这是典型的飞机户型,没有过道浪费,加上高得房率,整体空间感远超同类产品。
整体约13.4米的面宽,客厅连通跑道级阳台,真正意义上实现南北采光面最大化、空气对流,这种尺度感跟通透性,不仅有质感有面子,对老人、小孩也极为友好。
此外,阳台为大面积全封闭交付,这一个小小举动,能为业主省下很多后期麻烦事儿。
关于装修标准,我想卖个关子,今天我已经实地参观了颐和铂樾府样板间,这么说吧,这次颐居建设将装修质感、细节都卷到了很高水准。
预计最近,颐和铂樾府就会直接公开实体样板房,建议大家实地去看一看,真的很不错。
 
 
预计很快,楼盘将公开小区大门、建筑立面、部分景观、入户大堂、室内装修部分实景,很有诚意。
要知道,南京绝大多数开发商公开售楼处,都只展示品牌区位、沙盘跟样板房,剩下基本得靠效果图卖房,最终交付货不对板,屡见不鲜。
但颐和铂樾府全都做好了,而且还在外立面、归家动线、科技系统等方面,做了全面升级。
 
▲颐和铂樾府建筑效果图
比如归家动线:
“一进归家”府院门仪
跨度约50米的府院大门,分车行和人行通道,选用石材铺设+景墙金属包边+壁灯细节,气势恢宏,又极为雅致。
“二进归家”仪式水景缠叠
灵动水景搭配中心绿植,静水潺潺,寓意:“开门见水,遇水生财”。
“三进归家”归家花园
三进归家打造四季花木,一步一景、四季如春,同时搭配会所下沉式庭院、绿植及景墙设计,让归家体验再升级。
“四进归心”沐浴阳光草坪
涵盖中央会客厅和童趣乐园,打造有“温度”有“互动”的园林空间。
 
▲景观效果图(过程稿,以开发商最终公示为准)
比如科技系统:
恒温-风冷热泵系统
通过热泵系统调节,可实现制热、制冷、可以分户控制调节温度,采用顶棚及部分墙面铺设毛细管辐射调温,实现四季如春。
采用毛细管顶棚辐射系统,做到全屋全年恒定温度,四季如春,同时可实现分户、分房间控制,更加灵活。
恒湿-全屋置换新风系统
通过新风热交换除湿技术,对室内进风加湿除湿,有效保持室内控制在40%-60%左右的恒定湿度状态。
恒氧-全屋置换新风系统
全屋置换新风系统:地出风上排风模式,且低速送风,无噪声、无气流感、无扬尘。
新风除霾系统:通过除霾过滤层、温湿度调节层装置对新风过滤除霾,PM2.5 去除率大于 95%。
颐和铂樾府项目配置的“三恒”科技系统,是在室内温度、湿度、氧气方面,进行了全方位优化升级,保证居住舒适性。
 
▲颐和铂樾府建筑效果图
 
 
无论市场如何,南京这座城市的想象力,还在河西生长。河西所在,就是城市发展所向。
这里摩天楼林立,是仅次于上海陆家嘴的第二大中央商务区;
这里聚集IFC(在建)、华采天地、德基广场(在建)等商业;
这里有奥体中心、江苏大剧院、金陵图书馆等文体配套;
这里聚集仁恒江湾城、华新城等一众豪宅;
目前,南京楼市地价前10名,全部都位于河西,足以说明开发商对河西土地价值的认可。
再看这波新政红利,指向非常明确,就是优先利好刚需及改善型买家。河西是南京成熟改善板块,占据城市优质资源,是长三角成熟富人区。
毫无疑问,如果你总价预算合适,想买房肯定首选河西,在土地稀缺性、配套兑现力、二手房稳定性上,秒杀南京其他板块。
颐和铂樾府的开发商颐居建设,是南京本土国企,蝉联南京2021、2022全年成交金额TOP1。论业绩,颐居建设就是南京楼市扛把子。(数据来源于克而瑞)
更重要的是,颐居建设深耕河西,已在河西开发7大顶流热盘,拥有近5000户河西业主。可以说,河西买房不看颐居,枉为河西买房人。(数据来源于案场统计)
 
��☎【南京颐和铂樾府售楼热线】:400 116 7720 转888☎⫷
��➤南京颐和铂樾府售楼处〢欢迎咨询〢提前预约可享内部底价〢➤
��南京颐和铂樾府售楼处直销热线400-116-7720转888中介勿扰|欢迎致电咨询
��温馨提示:为了节约您的等待时间,看房请提前致电售楼处预约!!!
▰▰▰▰▰▰▰▰▰▰▰▰▰▰▰▰▰▰▰▰▰▰▰▰▰▰▰▰▰▰▰▰▰▰▰▰▰
声明:本文由入驻焦点开放平台的作者撰写,除焦点官方账号外,观点仅代表作者本人,不代表焦点立场。
 
 
 