苏州五潨泾锦院售楼处电话-(2026苏州五潨泾锦院最新)楼盘详情-房价-户型-周边配套-交房时间-小区环境-苏州五潨泾锦院售楼处位置
扫描到手机,新闻随时看
扫一扫,用手机看文章
更加方便分享给朋友
苏州五潨泾锦院
【苏州五潨泾锦院】售楼处电话:400-116-7720接通后输入888【售楼中心电话】
温馨提示:拨打400电话,听到嘀声后,输入分机号888即可
匠心打造美学住区,品质标杆之作,恭迎实地品鉴!
👉一方面,联排在面宽、私密性、空间等方面,相较叠加、洋房都更具优势。
据统计,今年苏州市区联排成交仅占全部房源的2%!稀缺基因,已不言自明。

👉另一方面,双拼的稀缺性则更甚!这是目前园区双湖都没有的业态!
据统计,去年苏州的双拼供应仅不到50套;而从苏州近期出让的低密地来看,都对双拼类产品有着严格限制...错过再无,这才是真正的绝版产品!
更刺激的在于,绝版的10套双拼产品全部位于社区南面,一线临水!

稀缺是一方面,产品力方面,五潨泾锦院也亮点十足——
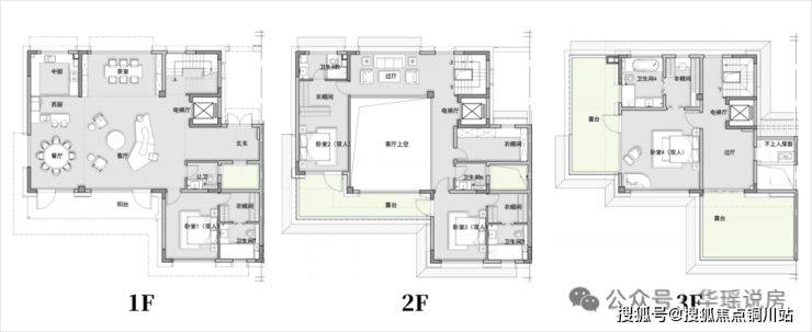
2、约278平大联排!约360平绝版双拼!超绝庭院+超大面宽,每层堪比大平层...实现人居真正进阶!
项目以建面约278-360㎡的超尺度户型,奠定稀缺基因,从源头上保障了纯粹圈层属性。
并在空间尺度、功能布局与使用率上也实现了系统性进阶——
▌真正有天有地的生活!最大300平庭院!
据悉院子最大尺度能有约300平,还有顶层露台可供全家人使用,无论是会客、休闲、娱乐...都能满足。

结合归家巷道,营造出「深巷归家,层层递进」的仪式感,把归家的私密情绪价值拉满~

▌大面宽+全套房!超强组合拳,让你体会什么是人居平权~
当然,低密产品的优势,不仅在于院子,还由空间感而来。
重点来看约360㎡的双拼户型,其尺度与功能十分奢侈——

超大庭院自然不在话下,约15米的超级面宽下,每层面积都堪比大平层——比如1F就足以放下超大横厅+中西双厨+茶室的组合;2F以上是休憩空间并且每个房间都带露台,整个户型能做到5个卧室全套房设计,承载家族不同阶段的需求。

▌优秀产品背后是实力国企背书!还有绿城物业加持
而为项目高品质赋能的,正是相城区属国企的苏州相城区高新控股集团!
作为相城本土国企,相高新控股可谓背景强大,业务包括建设开发、城市运营、产业发展、金融投资,是区域一流的“美好城市综合服务商”,真正做到与苏州共成长!
此外,值得一提的是,为了保证高端业主后期的生活质量,项目也同样聘用了绿城物业!安全牌+品质牌都有了!
3、还是无敌近园区!未来一脚油门就到苏州中心~
不止稀缺业态与超强产品,高端客户关注的居住环境与生活效率,项目所在的五潨泾板块也正在疯狂兑现——
首先,五潨泾板块所拥有的,是苏州很难再能有的超高能级交通!囊括地铁+隧道+高速路+高架的多维联动!

从项目旁新立的路牌即可见,阳澄湖大道+多条隧道群的配置,已不是远景规划,而是正在快速推进的现实:
未来依靠阳澄西湖隧道、阳澄西湖南隧道以及在建的阳澄湖星济隧道(预计2027年通车),未来到达湖西CBD直接就是“分分钟的事儿”!

其次,商业方面,一个能代表相城文脉的商圈——众泾老街,渐渐浮出水面。
据悉这个约23公顷的大型城市更新项目,并非简单复兴一条老街,而是围绕「老街文脉+地铁上盖+潮流商业+自然湖景」,进行一次当代水乡生活方式的深度实验。

而教育方面,在五潨泾,TOP级教育链就在家门口:苏州大学阳澄湖校区、陆慕高级中学、苏州大学第二实验学校等名校都在项目附近。
而小区东面真正一路之隔的9年一贯制学校——南师大苏州阳澄湾实验学校,南师大直属分校的含金量也不用多说,并且预计明年就将竣工,未来真正实现目送式教育~(信息来源:今日相城)

此外五潨泾板块,还在于优秀生态+低密规划带来的圈层纯粹性。
板块坐拥阳澄湖、阳澄西湖双湖资源,项目周边五水交汇的自然格局,更赋予其不可复制的湖居基底;
苏州五潨泾锦院
【苏州五潨泾锦院】售楼处电话:400-116-7720接通后输入888【售楼中心电话】
温馨提示:拨打400电话,听到嘀声后,输入分机号888即可
匠心打造美学住区,品质标杆之作,恭迎实地品鉴!
声明:本文由入驻焦点开放平台的作者撰写,除焦点官方账号外,观点仅代表作者本人,不代表焦点立场。
