【营销中心】武汉汉阳澍项目售楼处电话丨2025武汉汉阳澍项目预约电话/项目地址/项目户型
扫描到手机,新闻随时看
扫一扫,用手机看文章
更加方便分享给朋友
武汉汉阳澍售楼处电话☎:400-116-7720转777【营销中心已认证】🥇🥇
✅ 武汉汉阳澍营销中心电话☎:400-116-7720转777【营销中心已认证】🥇🥇
🏆本项目暂不接受临时到访,看房请提前预约,可尊享内部特惠!
🏆为您安排楼盘内场专业销售人员一对一接待服务,给您更贴心的看房体验!
楼盘聚焦
1、地处杨泗港快速通道与江城大道交汇处,新二环边,四新板块核心
汉阳澍项目位于汉阳区梅林东路与四新北路交汇处,属于二环与三环之间的四新板块,与二环线直线距离约2.8公里,与三环线直线距离约2公里,紧邻杨泗港快速通道,是非常标准的2.5环。
项目航拍已上线,点击下图查看

2、主打87-138平户型,得房率均超105%
汉阳澍共包含10栋住宅、1栋三连式的办公楼和部分商业街区以及一所幼儿园等。
项目都是高层,1、2号楼已拿预售证,均为32+1层,1个单元,3梯6户布局。
1号楼南面为低楼层商业,2号楼南面为办公楼,西侧临近江城大道,相对来说,1号楼采光视野更好一些,并且相对远离江城大道主干道,对比2号楼没什么噪音影响。
1、2号楼共包含5个户型,分别是87、94、98、109、122平,号称所有户型得房率均超105%,具体户型来看:
1、2号楼建面约87平米三房两卫户型

87平做到了三房两卫,功能性是值得肯定的,并且面积小也意味着总价更低,目前给到的价格是总价仅105-110万起,首付16万左右即可入手,对于刚需群体相当友好;
三开间朝南,并且南向面宽约10米,对于一个87平的户型来说,这个尺寸相当难得;
客厅开间约6.7米,做成大横厅是很OK的,也可以改造成房间,客厅3.6-3.7米开间,房间约3米开间,这个尺寸也是足够的;
主卧套房面积约18平,空间足够;
客厅增加了S墙,入户玄关柜、冰箱都有地方放了,收纳更加简单。

这个户型,基本可媲美市面上普通120平户型。
1、2号楼建面约94-95平户型

中间户,也是三开间朝南,南向面宽约11.5米,更大一些;
除开开间约3.4米的主卧,开间约3米的南向次卧,客厅开间还有约5.1米,三房+大横厅可以同时存在,比87平户型的尺寸更加开阔,如果有需要,也可以加一张开放式书桌,改造为3+1房;
主卧面积约18.9平
餐厅外面还带阳台,南北双阳台设计,晾晒跟景观功能可以分开,舒适度更高。
1号楼建面约98平米三房户型

跟上面95平户型布局大体类似,南向开间、客厅面宽尺寸都一样,其他空间布局也差不多,区别在于进门处增加了入户玄关,整体私密性有所增加。

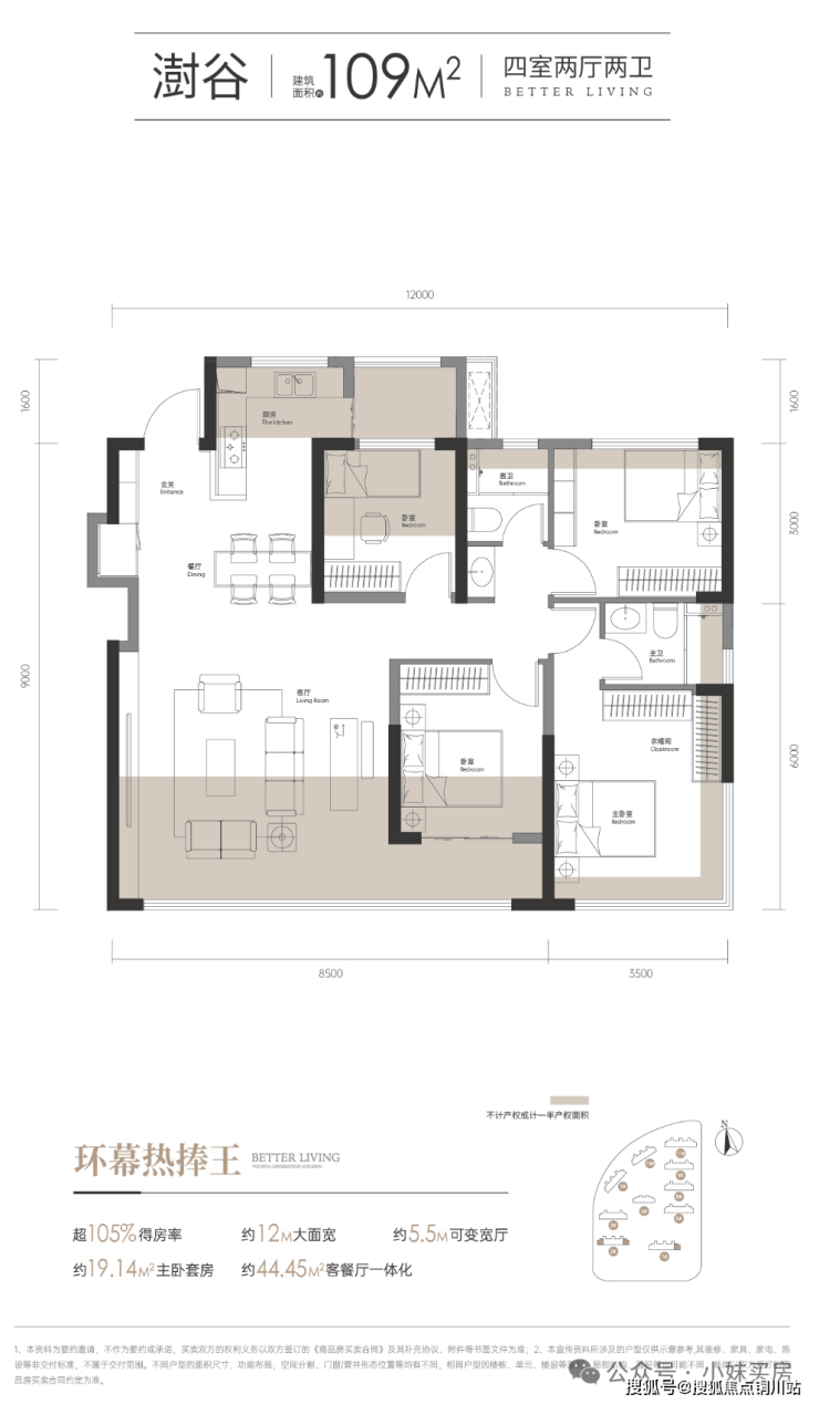
1、2号楼建面约109平米四房户型

109平就做成了四房两卫,不得不说,功能性真的非常强。
进门同样带S墙,南向面宽约12米,比前面几个户型更大一些;主卧开间3.5米,客厅+南向次卧开间约8.5米,其中次卧开间约3米,客厅开间约5.5米,尺寸还可以,后期甚至还可以改造为4+1房;
主卧面积约19.14平,又大了一些。

1号楼建面约122平三房户型

南向面宽约14.4米,这个尺寸相当开阔,一般市场上至少也要140平以上户型才能见到;
主卧开间3.6米,面积约21平,尺度更为开阔;南向次卧开间3米,符合传统主卧尺寸布局,并且南向次卧也是套房设计;
客厅开间7.8米,可以保留大横厅设计,也可以改造为客厅+房间,如果房间布局3米开间,客厅还有约4.7米开间,也有横厅既视感;
进门有玄关设计,私密性增强,玄关后还开辟了专门的储藏室,利于收纳;餐厅部分空间也很大。

如果说109平属于强功能性的四房,那么122平户型就属于相当舒适的双套房了,并且也可以改造为四房三卫,适用群体更广。
全系105%+的得房率,即便是最小的87平户型也是一样,仅这一点就相当厉害了,而且87平做的还是三房两卫,功能性超级强。
稍微有点可惜的是,项目1、2号楼为三梯六户布局,没有独立的电梯前室可以利用,算是一点遗憾。
3、放风价13000元/平
汉阳澍已取证的1、2号楼备案均价约15300元/平,目前1#认筹中,放风价格13000元/平。
按照这个价格计算,最小87平三房总价仅113万左右,目前释放的是约105万起;
98平三房总价127万左右;109平四房总价140万左右,122平双套房总价158万左右。
在我们此前汉阳四代的统计中,总价门槛最低的是境湖玥,约125万起,现在汉阳澍直接将汉阳四代住宅的门槛拉低到105万起。
武汉汉阳澍售楼处电话☎:400-116-7720转777【营销中心已认证】🥇🥇
✅ 武汉汉阳澍营销中心电话☎:400-116-7720转777【营销中心已认证】🥇🥇
🏆本项目暂不接受临时到访,看房请提前预约,可尊享内部特惠!
🏆为您安排楼盘内场专业销售人员一对一接待服务,给您更贴心的看房体验!
声明:本文由入驻焦点开放平台的作者撰写,除焦点官方账号外,观点仅代表作者本人,不代表焦点立场。
