武汉中建壹品汉韵公馆售楼处电话→地址→户型→价格→2025武汉中建壹品汉韵公馆售楼盘详情→武汉中建壹品汉韵公馆最新销售动态
扫描到手机,新闻随时看
扫一扫,用手机看文章
更加方便分享给朋友
🌈武汉中建壹品汉韵公馆售楼处电话☎️400-116-7720转接999(专人接听)
🌈武汉中建壹品汉韵公馆营销中心电话:☎️400-116-7720转999【营销中心】
🌈温馨提示:拨打400电话,听到嘀声后,输入分机号999即可!
△项目外立面 过程演绎图
中建壹品对成熟四代住宅学习和论证之后,才有我们今天看到实景大花园露台。汉韵公馆的空中花园,采用南向或东西向布局,奇偶交错,进深控制在3.6米以内。
△户型 过程演绎图
为业主入住体验更好,露台花园也列入精装。绿化部分采用降板处理,配置自动灌溉系统,预留排水孔,绿植尽量选低矮、易打理、四季常绿,保证空中花园完成面相对统一;同时配置太阳能灭蚊灯,避免后期维护和蚊虫。
△空中花园 过程演绎图
考虑到空中花园楼上楼下的隐私,项目做了一些细节处理。比如增高磨砂玻璃挡板、增加飘板宽度等。
02
真四代,远不止大阳台、大花园。
这就像智能手机与新能源汽车的革新,不是屏幕变大、车身变宽,而是芯片等技术更强、生态系统更好用。
中建壹品汉韵公馆的“真四代”产品逻辑,也是如此。它用一整套“四代宅”的产品生态与技术标准,全面颠覆武汉住宅现有的产品体系。汉韵公馆的实景示范区,全面构建一套四代宅的公区标准:
一是,国匠与大师联手造园。
这次专门邀请豪宅景观“教父”——山水比德执笔,将项目自建的口袋公园与社区大门融合,60米长的赤红廊桥、汉宫屋顶的奢阔门楼,让业主从公园归家。
同时,项目入口公园,参考苏州留园的格局,在公园亭里有“月洞门”,运用“藻井”天花,在风雨连廊里有“挂落”,把苏州留园印象搬回家。
△下沉庭院 实景图 △下沉庭院 实景图 △示范区实景图
二是,活用楚文化的精髓与元素。
住宅外立面采用凤鸟纹、重檐线条,采用弧线、铝板、蓝钻玻璃与塔冠造型,飘逸典雅。实景园林里,融合荆楚文化中的凤舞雕塑、编钟灯墙、武汉印象的木刻雕塑,让人记得起历史。
△示范区实景图
项目的下沉庭院,取意于古汉阳十景,如诗如画,庭院池底是凤凰图腾,楚文化展示长廊、揽月雕塑,延续云梦古泽、高山流水的意境,打造一番山水小天地;样板间的中央空调出风口与室内门面,均采用定制的蛟龙纹。
△空调出风口细节 实景图 △室内门纹路细节 实景图
三是,光谷首个地下中央车站、全风雨连廊项目。
该项目配置有地下中央车站,方便业主归家与出行。汉韵公馆是光谷首个全风雨连廊项目,让业主回家更从容。
△风雨连廊 过程演绎图

实景示范区的3号楼架空层,配有专门母婴室卫生间的婴儿区;6号楼架空层,则是咖啡酒吧livehouse。全部封闭带空调。另外还有两栋楼架空层,拟规划植物美学馆与宠物空间。
△6号楼架空层 过程演绎图
下沉水院会所,自然采光,配有恒温泳池、私宴厅等高端配套,让生活更精致。此外,单元楼栋的双入户大堂,自然采光井将阳光空气引入其中,地下大堂采用璀璨光厅设计。
△会所泳池 实景图 △私宴厅 实景图 △健身房 实景 图 △台球室 实景图 △影音室 实景图
实景示范区内,孔雀开屏、踏雪寻梅、丝绸之路等奢石,随处可见;连门把手都是琉璃玉石。
△示范区 实景图
以上公区配置,如果单个放在二七滨江单价4-5万豪宅里,也许并不稀奇。但如果放在武汉2万+改善住宅里,汉韵公馆肯定是第一次。
△会所 实景图
从桥、门、园、廊到架空层、会所,汉韵公馆梳理出一套新的解决方案,既有文化传承,又有细节创新。这一套解决方案,也是武汉“真四代”的核心优势。
03
回到户型本身,它是业内与买家比较关心的部分。
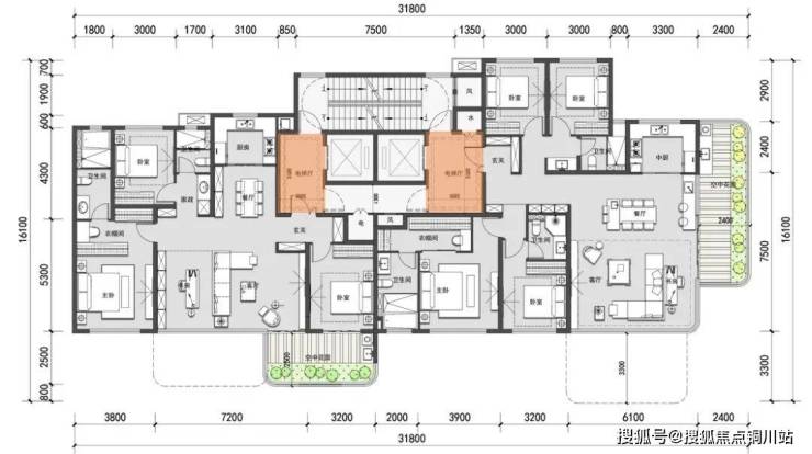
汉韵公馆的户型,分为三种:143平、171平与191平。全户型实现“负”公摊,实际使用率103%-109%;全系LDKBG、精装交付。只有真四代,才能做到使用面积>建筑面积。
原本2梯2户的设计,巧妙设置电梯与入户位置,变成私梯入户,电梯厅零噪音,拥有独立大尺度泛玄关。电梯厅空间与大花园露台,构成“四代宅”的前厅后院。
△户型设计 过程演绎图 △建面约191平户型电梯前室 过程演绎图

三个户型的面积优化,通过南北阳台面积优化 (下图中淡黄色区域) ,这种成片优化模式,能创造更多有效使用空间。另外,客餐厅的整体楼板,均采用无梁设计,视野采光更好。三种户型均配有独立家政间、厨房均配有餐边柜与中式岛台。
△建面约143平户型 效果图 △建面约171平户型 效果图
143平与171平南厅户型,主卧270度弧线落地窗。171平边厅户型,双边视野;191平户型,三边视野。
△样板间 实景图
191平户型,还拥有独立圆桌餐厅,适合大家庭聚会。171平与191平户型,均布局双主卧,其中一间总统套房式主卧,配置有女主人最爱的步入式衣帽间与主卫五件套。
△建面约191平户型 效果图
这三类户型将彻底改变家庭关系场,一家三口、二孩家庭、三代同堂,各得其所,各得其乐;Plus版的客餐厅,家人团聚、家庭会议或一起学习的主场;超大花园,成为家人的疗愈之地,享受别墅花园生活;主卧“小家化”,让男女主人独享私人空间。


△建面约191平户型 过程演绎图

中建壹品依托“壹品好房”科技住宅产品体系,全屋选用一线国际品牌,“东芝中央空调+霍尼韦尔新风+威能地暖”豪宅三件套。
在装修方面,中建壹品更关注业主的使用细节,入户门锁采用智能联动,户内门全部到顶,采用隔音装置、前置水过滤器、全屋智能系统 (包括全房智能开关、温控三合一面板、全屋WIFI增强) 等。
△样板间实景图
外开入户子母门,玄关处配置800库;厨房带空调;家政间预留扫拖机器人上下水;主卫带美妆冰箱,带半嵌入式浴缸。
这些看似不起眼的小细节,集合在一起,却引起居住品质的质变。汉韵公馆,不仅好看,而且好用。未来5-10年,产品不落伍。从花园布局、户型设计、精装标准、室内细节,汉韵公馆走在“四代宅”的前沿。
04
真四代,是整盘素质的全面四代。
真四代,不仅是建筑技术层面的迭代,也是一种人们心理需求与生活方式的迭代。
武汉如此多房企、新盘,为什么中建壹品能第一个做出“真四代”?
这源于创新,也赢于创新。善造“四代宅”,是中建壹品的产品革新基因所决定的。
作为中建三局旗下专业房地产投资开发运营平台,中建壹品长期深耕北京、上海、广州、天津、成都、武汉等一二线核心城市,其高端“公馆系”产品已成为多地改善型人居标杆。
中建壹品坚持技术革新,在科技住宅、装配式建筑、智慧社区、智能建造等方面均有项目实践,多次荣获鲁班奖。
在武汉“四代宅”政策出台前,中建壹品已提前谋划,前往福州、西安等“四代宅”成熟的城市调研,对比各地的四代宅规范,寻找项目亮点与痛点,根据武汉的城市特质,进行改良升级。
△项目各地城市“四代宅”调研 总结图

汉韵公馆的建筑布局图,历经九版方案推演,最终形成错位布局,最大化放大楼间距的同时,规避四代宅楼间距对视等隐私问题。
△汉韵公馆 过程演绎图
同时,中建壹品总结在北京、成都开发的两大公馆系产品经验。
北京中建壹品颐和公馆,把颐和园的皇家园林与唐风融入项目。占地约5000平米的颐和典藏馆,以门钉、藻井、天花等大门立面的细节,又与颐和风韵相结合,再现皇家造园之美。
△颐和典藏馆 实景图
成都中建壹品金沙公馆,把苏州江南园林、宋风融入项目,门头威仪厚重,亭台叠水,栈道归家,展现了东方生活美学。该项目示范区荣获2024年巴黎DNA设计奖荣誉提名奖。

🌈武汉中建壹品汉韵公馆售楼处电话☎️400-116-7720转接999(专人接听)
🌈武汉中建壹品汉韵公馆营销中心电话:☎️400-116-7720转999【营销中心】
🌈温馨提示:拨打400电话,听到嘀声后,输入分机号999即可!
声明:本文由入驻焦点开放平台的作者撰写,除焦点官方账号外,观点仅代表作者本人,不代表焦点立场。
