2026金华绿城凤鸣汀澜售楼处电话_来电预约看房_(金华绿城凤鸣汀澜营销中心)楼盘详情-2026最新房价
扫描到手机,新闻随时看
扫一扫,用手机看文章
更加方便分享给朋友
金华绿城凤鸣汀澜售楼处电话☎️400-116-7720转接999(专人接听)
金华绿城凤鸣汀澜营销中心电话:☎️400-116-7720转999【营销中心】
🌈温馨提示:拨打400电话,听到嘀声后,输入分机号999即可!

会 所
样板间灵感撷取自高定时装的流畅线条与微妙光泽,在玄关,香奈儿白皮革面板如同礼服的华美面料,金属收边则是其精工针脚,于入门刹那,定义空间的优雅基调。

玄关

餐厅
金华一线江景+一线品牌+四代大宅,这样的产品十年难遇。此次绿城·凤鸣汀澜带来的【凤仪245】传世大宅,以约270°环幕江景、绿城品牌加持与第四代住宅的创新设计,成为金华为数不多的“可收藏资产”。
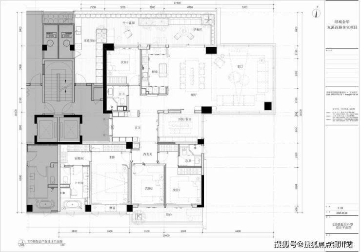
▲样板间 平面图和效果图
茶室空间以木构为框,以金属丝玻璃门为幕,勾勒出视觉的延伸感。

茶室

主卧
“当与自然融合,成为未来生活的尺度,成为我们对居住、对城市最崇高的向往,”李玮珉说道,“那么在此处生活,便意味着一种最淋漓尽致的栖居,一场身心全然沉浸于自然之中的、无间的体验。”
效果图
女王空间
声明:本文由入驻焦点开放平台的作者撰写,除焦点官方账号外,观点仅代表作者本人,不代表焦点立场。
