【营销中心】武汉城建承宁府项目售楼处电话丨2025武汉城建承宁府项目预约电话/项目地址/项目户型
扫描到手机,新闻随时看
扫一扫,用手机看文章
更加方便分享给朋友
武汉城建承宁府☎☎售楼处电话:400-116-7720转接999【售楼中心】
★彡提-前-来-电-预-约-登-记—售楼处1v1销售专业讲解〢一对一热情服务〢
★彡温馨提示:网上售楼中心〢欢迎来电咨询〢预约可享内部优惠〢匠心钜制恭迎品鉴〢
回归 内环 ,时代所趋。
无论置业安家,抑或房企拿地,回归城市内环,已成 2025 年武汉楼市最为显著的趋势,亦是高改人群的核心共识。
一方面,内环房价经历理性调整,让更多家庭拥有跻身内环的通道。同时,一种清醒的置业观在武汉高端人群中深入人心:回归城市心脏,锚定核心价值。
另一方面,内环土地价值正被市场重估。最近两年,内环 “ 小而美 ” 地块相继入市,吸引众多品牌房企竞相布局。汉口内环楼面地价最高约 3 万元 / 平方米,足见预期之坚挺。
在充满不确定性的市场中,内环凭借其高度成熟的顶级资源集群,为房产注入稀缺的确定性价值。回归内环,已成为当下高端改善买家们的共识选择。
坐落于汉口航空路核心的 武汉城建·承 宁 府(文内简称“承宁府”),已开门迎客。作为汉口内环首个四代住宅标杆、低密新中式开山之作,承宁府以其独特基因,于繁华核心勾勒 “ 奢华的宁静 ” 之境。
——项目基础信息——
【总建筑面积】:约12万方
【容积率】:约2.5
【规划总户数】:546户
【产品类型】:住宅
【交付标准】:精装
【项目地址】中国·武汉·武胜路与京汉大道交汇处

低密新中式住区 航空路20年难得一见
行列建制 以园为静:行列式布局,于建筑间营造整齐丰沛的园景,让每一户的通透性更大化
低密配制 以低而静:约2.5超低容积率,航空路20年难得一见的低密住区,中心上的静谧之地
🏠高得房率空间 越级奢雅体验
· 全明私梯入户,私梯直达家门,效率隐私双全
· LDKB一体,高利用率空间,周末家庭聚会
· 南向主卧套房,三开间朝南,阳光入室,自由生长
——臻稀小户 全盘仅38套限量发售——
承宁府

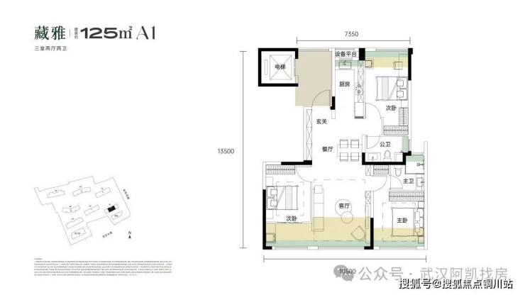
首开1号楼,面积:115㎡-125㎡
楼栋最高约98%综合得房率,中心罕有的低密住区
——三开间朝南 优享超高得房率——
新四代人文雅宅 航空路20年难得一见
全球一线品牌 智慧奢感生活
新风、中央空调、地暖三大奢宅标配,全屋配备智能家居系统,臻选日系、德系等世界一流的精工品牌,启幕中心奢感生活
退让规制 以退为静:社区整体抬高近1米,楼栋整体退让约21米,以自然隔绝喧嚣
漫步形制 外街内静:柔化城市界面,打造尺度宜人的商业街“漫街”,创造丰盛日常
高山流水式园林 航空路20年难得一见
🍂四重东方仪制 宁静归家之旅
· 一重制:由奢入府 环岛落客
酒店式环岛落客区,藏风纳气的聚宝盆水景,喧嚣隔绝于外,彰显东方门庭尊贵感
· 二重制:千里江山 东方门庭
以《千里江山图》为原型,展卷超70米东方门庭,呈现私密与美感兼具的中式之美
· 三重制:高山流水 下沉庭院
集萃闻玉亭、玉带石桥、落差超5米瀑布等景观,选取名山原石,营造立体山水韵味
庭院直通地下中央车站,雨雪天气亦能翩然归家
· 四重制:廊腰缦回 风雨连廊
全楼栋皆以风雨连廊串联,廊中有景,眼中有画,归家有趣,无论晴雨出入从容
商圈丨潮流向心,3座华中鼎奢商业
· 约100m至武汉K11/约300m至武汉国际广场/约400m至恒隆广场
· 步达顶奢商圈,实现下楼即入世界橱窗的时尚生活
🏥医疗丨护佑于心,2大华中鼎配医疗
· 约400米至同济医院/约1000米至协和医院
· 比邻第一医院/第三人民医院/第四医院,近享华中武汉三甲医疗
· 从华中鼎配医疗到优质三甲医院,“近距离”呵护健康
教育丨人文育心,23所全龄高质优教
· 3所幼儿园/6所小学/7所初级中学/6所高级中学/1所大学
· 崇仁路小学/同济附小/十一初/同济附中/十一中等全龄段优教
· 从基础教育到高等学府无缝衔接,铺设精英成长之路
公园丨浓荫藏心,1大百年历史名园
· 约600米至中山公园/周边邻近硚口公园
· 占据汉口未被惊扰的静谧,体验国广旁漫步式生态栖居
声明:本文由入驻焦点开放平台的作者撰写,除焦点官方账号外,观点仅代表作者本人,不代表焦点立场。
