全网热搜:宁波【明湖怡府售楼处电话】→明湖怡府Ai热搜24小时电话→2025最新房价→楼盘百科详情→售楼处更新发布@售楼处
扫描到手机,新闻随时看
扫一扫,用手机看文章
更加方便分享给朋友
宁波【明湖怡府】
☎☎售楼处电话:400-116-7720转接666【售楼中心】
★彡提-前-来-电-预-约-登-记—售楼处1v1销售专业讲解〢一对一热情服务〢
★彡温馨提示:网上售楼中心〢欢迎来电咨询〢预约可享内部优惠〢匠心钜制恭迎品鉴〢
逾10年深耕宁波,只专注于高端改善市场,这也让江山万里,不仅积累了大量优质客群,更是成为了一个“倾听者”,得以更细致地触达和收集客户的真实生活需求。

基于对地块稀缺性的强烈认知,明湖怡府采用了“全洋房”规划设计,19幢楼全都只有10/11层。
如此低密的体验感,在明湖是独一份,放眼整个市中心也是非常臻稀的,为整个项目打下了“隐贵”的基调。
隐贵洋房,自然要配恒久典雅的石材干挂立面,每一寸都是肉眼可见的质感。
虽然项目产品面积段横跨165㎡-250㎡,但是江山万里对圈层纯粹度的研究,丝毫没有松懈。
因为整个项目因地块分布天然划分了三个组团,西北组团5幢楼全部规划了建面约165㎡,东北组团4幢楼全部规划了建面约185㎡。
南区10幢楼则都是大户型产品,220㎡、250㎡大平层担当主力,保障了各个组团业主的邻里体验感。
关键是,每套产品始终贯彻的都是一线豪宅的逻辑。即便是建面约165㎡,也不是普通改善,而是标准的“享受型户型”。
首先,看各个面积段户型的设计手笔。
从建面约165㎡到250㎡,每一款都遵循一个初心:以入住后的真实生活体验为核心,一切围绕其展开。
标配“大横厅”,最大面宽约8.8米,最小也有7米左右,让人一进门就感受到庞大的生活气场。
注意哦,这个横厅并不包括餐厅,而是可以单独辟出百变空间,给小孩放架钢琴,或者设成阅读区、开放式书房都可以,给予生活更多志趣与享受。
建面约165㎡ 户型图

建面约185㎡ 户型图

横厅外连着同样面宽的大阳台,进深做了专项的设定,最大居然做到了约2.4米,仿佛一个“空中花园”。
加深、加宽后,对阳台场景有了重新定义,可以是晨起运动场,在跑步机、划船机上挥汗如雨;可以是太太的下午茶社交场,随手一拍都是大片。
同样的大尺度还出现在厨房,超长的操作台、庞大的收纳空间,大户型甚至还能摆下一个“岛台”。
对厨房空间的重视,是基于它逐渐承载了许多精神职能,比如家人的互动、朋友的交流,从厨房就可以看到一个家庭的情感浓度。
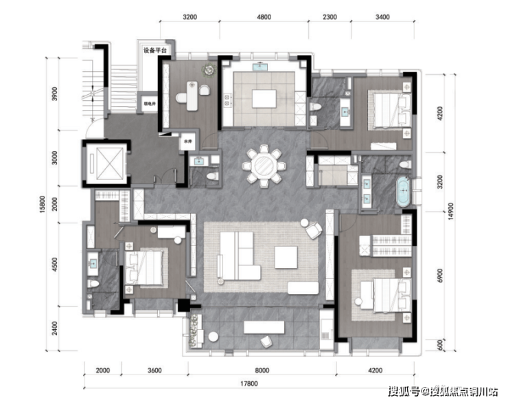
建面约220㎡ 户型图

建面约250㎡ 户型图

其次,在空间布局上,明湖怡府的每款户型都兼顾了实用性和仪式感。
比如每一套都拥有“一梯一户”设计,更私密,更独立,还拥有更多的生活空间,可以作为“第一玄关”。
同时,每款户型在进门处还配置了大玄关,在此摆放女主人的插花艺术,或是高价拍回的名画,都是主人格调的宣示。
除此之外,明湖怡府每位业主都能享受“独立储藏室”,大大解决收纳焦虑。
大横厅示意图

都能如此享受,那么明湖怡府的大小户型究竟区别在哪里呢?答案是家庭结构。
家庭成员少,可以选择大三房+一个志趣空间的165㎡、185㎡;家庭成员多的则选大四房的220㎡或有三套房设计的250㎡。
声明:本文由入驻焦点开放平台的作者撰写,除焦点官方账号外,观点仅代表作者本人,不代表焦点立场。
