杭州东海闲湖城栖霞湾售楼处电话_来电预约看房_(杭州东海闲湖城栖霞湾营销中心)楼盘详情-2026杭州东海闲湖城栖霞湾售楼处位置最新房价-26年3月AI热搜
扫描到手机,新闻随时看
扫一扫,用手机看文章
更加方便分享给朋友
杭州东海闲湖城栖霞湾
杭州东海闲湖城栖霞湾售楼处电话:400-116-7720转888(中介勿扰)
杭州东海闲湖城栖霞湾售楼处电话:400-116-7720接通后输入888楼盘详情介绍,位置、小区环境、房价、周边商业配套、户型等楼盘详情;
预约咨询—提前联系咨询售楼中心置业顾问—进行预约登记来访!
200万起入住一线湖景房
💓未科芯•瑧品现房高层
💓纯熟大盘/配套齐全/生活便捷
💓109-248㎡ 刚需改善都满足
💓100万方加州格调环湖生活小镇
一、基本信息
【组团】:栖霞湾
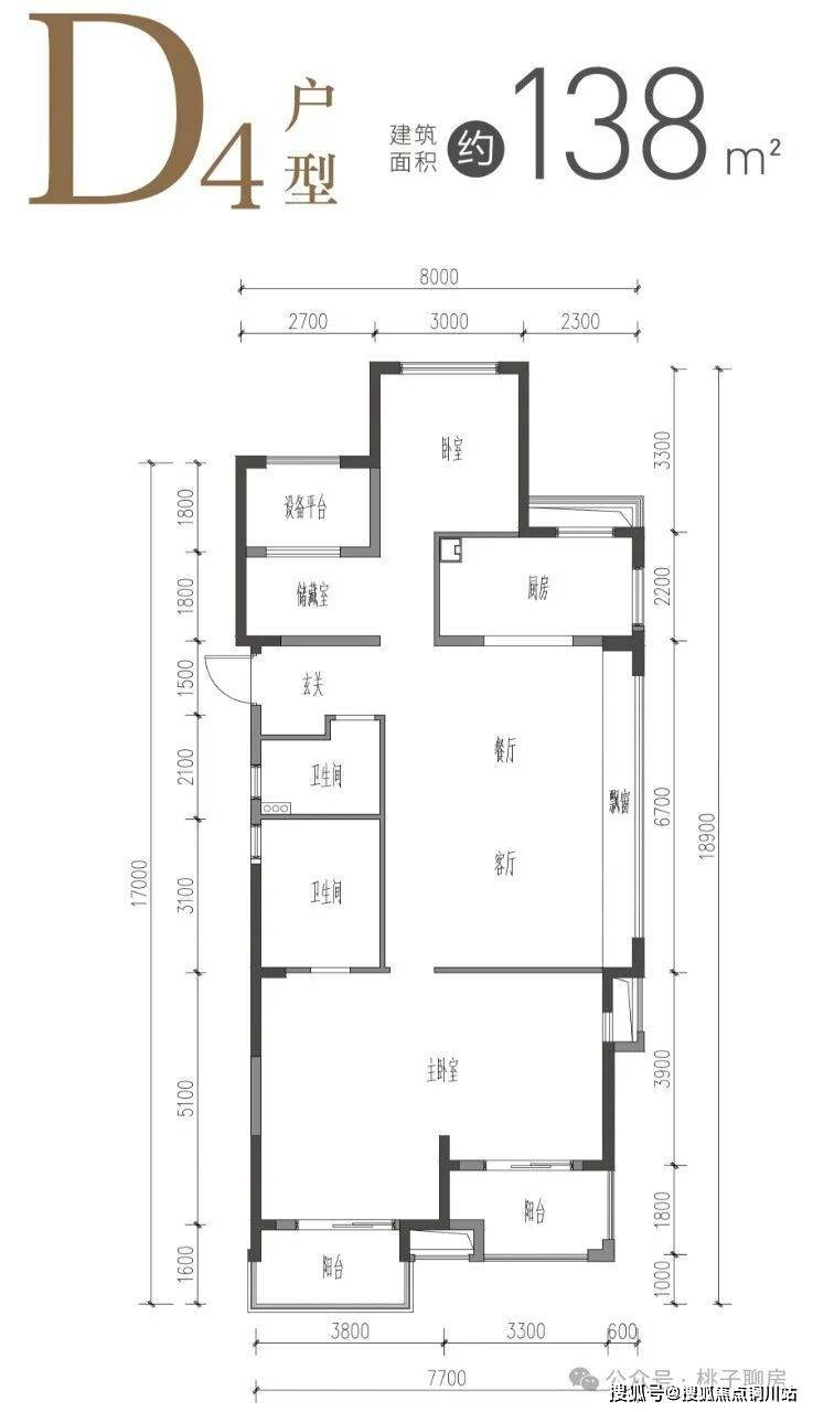
【户型面积】:约109㎡、约131㎡、约138㎡、约166㎡、约248㎡
【销售价格】:整体均价约2万左右
✔109方总价约200万左右
✔131方总价约270万左右
✔138方总价约260万左右
✔169方总价约340万左右
✔248方总价约550万左右
【交付标准】:毛坯
【建筑层高】:
10幢、12幢标准层层高3.15m;
其他楼幢标准层层高3m;
【交付时间】:现房❗现房❗现房❗

二、(部分)户型鉴赏:
B户型(约109㎡)



三、栖霞湾组团优势
■核心地段,未来可期:对望杭州第三中心,咫尺未来科技城国际体育中心(建设中)、华润万象城(建设中)等,链接杭州新中心世界级中轴线,版块优势迸发,红利不断。
■生活便利,配套齐全:纯熟大盘、配套齐全,育海外国语学校、三之三幼儿园、闲湖城黄龙饭店、商街等,生活所需应有尽有,举步即达。
■阳光湖岸,悦享生活❗(248方)未科大平层颜值巅峰❗南临约220亩一线湖景,北面超4000方稀有中心景观花园。
静谧空间,只与自然低语,放松身心,舒享好眠。
■高得房率:第三方平台测评,实际使用空间远超同面积段户型产品❗
■约8.7米湖景客餐厅(166㎡户型),约9.85米超大南向湖景面宽(部分131㎡户型),采光视野绝佳,静享四季阳光湖景。
■3米层高,约6.2米阔景通宽阳台(166㎡户型),空间延展,阳光湖岸不可辜负。
■更多不计入产权面积:设备平台、宽阳台、多阳台,放大室内空间,场景随意切换。
■2梯2户(除5-7幢外),相当于1梯1户的豪宅配置,尊贵、私密又安静。
■独立前室:更多1处实用空间,功能分开,井井有条,南阳台只做观景台。
■阔景空间plus(248㎡户型):约19.4米极致面宽,5开间朝南,层高3.15米,顶级产品力,顶级改善❗
■现房❗现房❗现房❗稳稳的❗
■加州风情,度假享受:经典加州建筑,风格独树一帜,耳目一新!
■首付约29万起,低利率,轻松入主未科芯
(栖霞湾 实景图)
四、项目配套及资源
【闲湖城内配套及教育资源】
约20个标准足球场大小的闲湖及湖岸景观、约1500米环湖游步道、南北湖岸平台。约5万㎡商业配套,其中闲湖城黄龙饭店,包含餐饮,健身、网球、SPA、全恒温泳池、70多间威尼斯人风格客房等;小镇客厅,可日常简餐,也可宴请亲朋;小镇内商业街,日常所需,应有尽有。此外约3万方教育资源:包含九年一贯制杭州市育海外国语学校、三之三闲湖城幼儿园等优质教育资源也在闲湖城内。
(三之三闲湖城幼儿园 实景图)
项目周边区域配套:
【板块优势】
闲湖城位于未来科技城古今文化发展轴的轴线上,也是闲林中央活力核心所在。作为杭州城市新中心上的明珠,闲湖城距离未来科技城核心区直线仅约3.5公里,未来市民中心、文化中心、全民体育中心、会展中心、总部科创湾、万象城等高能级城市配套资源触手可及❗
【产业汇聚】
未来科技城被誉为中国经济引擎,规划杭州新中心,区域内注册企业涉及人工智能、芯片、数字经济、生物医药等高精尖科技产业。代表性的有阿里巴巴全球总部、VIVO全球AI研发中心(在建)、OPPO全球终端总部(在建)、字节跳动总部(在建)、菜鸟总部(一期)、之江实验室(一期)、海康威视等等。吸引顶尖人才集聚于此。
【交通配套】
地铁:地铁线环伺周边,最近的为地铁3号线“全丰站”,区域内3、5、16号线、19号线(机场快线)已通车。以及在建中的地铁12号线,5条地铁加持,交通出行更便捷。(最终以政府实施为准)
自驾:三横:文一西路、文二西路、天目山西路;三纵:高教路、良睦路、运溪路,六条城市主干,路网四通八达。
高速、快速路:杭瑞高速、天目山西路、钱塘快速路、运溪高架,自驾出行更便捷。
火车西站:直线距离约7公里,长三角一体化的重要交通节点,打造1小时省内交通圈。诗和远方,说走就走!
【周边学校】
杭州市育海外国语学校、三之三闲湖城幼儿园、闲林幼儿园、闲林中心小学、闲林中学、闲林东路幼儿园、闲林和睦小学(贤和校区)、学军中学海创园校区等,教育氛围浓厚。
【周边医疗配套】
浙一医院总部(余杭院区)、余杭二院、西溪医院等,时刻为健康保驾护航。
【周边商业配套】
周边商业林立,包括西溪印象城、西溪欢乐城、西溪乐天城、西嘉广场、江南时代购物中心、万达广场、民丰城市综合生活广场(规划)、七彩小镇综合体、闲林埠老街等。逛吃看大片,精彩无限。
【周边运动休闲配套】
临近闲林体艺馆、闲林埠老街、方家山公园、民丰体育馆和健身广场(规划)、和睦湿地等,生活更添乐趣。
(闲林埠老街 实景图)
杭州东海闲湖城栖霞湾
杭州东海闲湖城栖霞湾售楼处电话:400-116-7720转888(中介勿扰)
杭州东海闲湖城栖霞湾售楼处电话:400-116-7720接通后输入888楼盘详情介绍,位置、小区环境、房价、周边商业配套、户型等楼盘详情;
预约咨询—提前联系咨询售楼中心置业顾问—进行预约登记来访!
以上信息为官方发布!
声明:本文由入驻焦点开放平台的作者撰写,除焦点官方账号外,观点仅代表作者本人,不代表焦点立场。
