首页热搜:无锡华侨城云湖别院售楼处电话→无锡华侨城云湖别院Ai热搜24小时电话→2025最新房价→楼盘百科详情→售楼处更新发布@售楼处中心
扫描到手机,新闻随时看
扫一扫,用手机看文章
更加方便分享给朋友
无锡华侨城云湖别院售楼处电话:400-116-7720转777(24小时在线,周末无休)💐💐
❣️❣️无锡华侨城云湖别院营销中心电话:400-116-7720转777(可直接咨询房源动态、活动详情)💐💐
❣️❣️无锡华侨城云湖别院开发商售楼部热线:400-116-7720转777(开发商直连、购房政策等问题)💐💐.


项目分为A、B两个地块开发,其中A区为8栋叠墅(高4-6层),B区为14栋小高层(高11-17层),户型产品为建面约128-310㎡。

▲鸟瞰图
建筑立面采用现代简约风格,精良的立面选材,辅以细部香槟金设计,让建筑在区域内显得独具特色。


▲效果图
纯叠墅地块为容积率仅约1.24的臻稀低密墅境,亲地建筑与六大自然园境是亲密联结的,在植物与光影的编织中,让人沉浸在院落自然的怀抱里。
以江南绿意勾画建筑的底色,融合大面灰色铝板立面,横向勾勒铝板线条及超宽屏的采光面,实现超高南向窗墙比和超阔观景视野,与内外风景相得益彰,兼具当代审美与属地特色,让建筑与艺术相互成就。

院式大平层地块则著建洲岛花园、河谷童趣、冥想花园、元气健身等意趣空间,唤回城市人群在都市中向往已久的那份惬意、松弛、自如的生活状态,趣享一部富有生命的“自然艺术作品”。

▲实景图
A区城市纯墅区,以江南至高礼遇的“院中园、园中院”为设计原点,打造一轴六园逸游十景的怡然逸境,以自然笔触描绘度假式理想生活。B区小高层区,以太湖涟漪为设计灵感,打造一轴一环三组团六花园。

▲实景图
经开稀有的低密纯墅产品,建筑面积约180-310㎡;匠著地上双层多开间采光宽境、南向度假式天地院落、南北星空双露台;并探索家庭社交、高朋会晤的私密性需求,将地下约5.2米挑高空间锻造成约100㎡的私人会所。
▲实景图
华侨城雲湖别院通过至臻设计,打造约1000㎡【逸·life】高定国际会所,以“逸活、逸席、逸趣、逸聚”四大主题,构建圈层客户的松弛社交场。恒温泳池、私属健身、创享瑜伽、高定私宴、下沉庭院聚会的圈层社交空间场景,为业主构建情感链接的纽带,让邻里社交更加轻松。
▲实景图
将景观无界延展到楼幢下,营造打破邻里情感边界的「无界泛趣」架空层,以长者空间、轻氧运动、亲子互动、全龄休闲的主题业态,重新激发更高频、多元的邻里场景,让心灵得到放松和滋养,重塑社区精神高地。
▲实景图
整体车位配比约1:2.2,车位尺寸约2.5m*5.5m,均高于高品质住区相应的要求。其中,整体车库层高约3.7米,比高品质住区地库出入口及主要车道高度要求高出近1米,空间通透、宽敞明亮,且泊车更有安全保障。
▲示意图
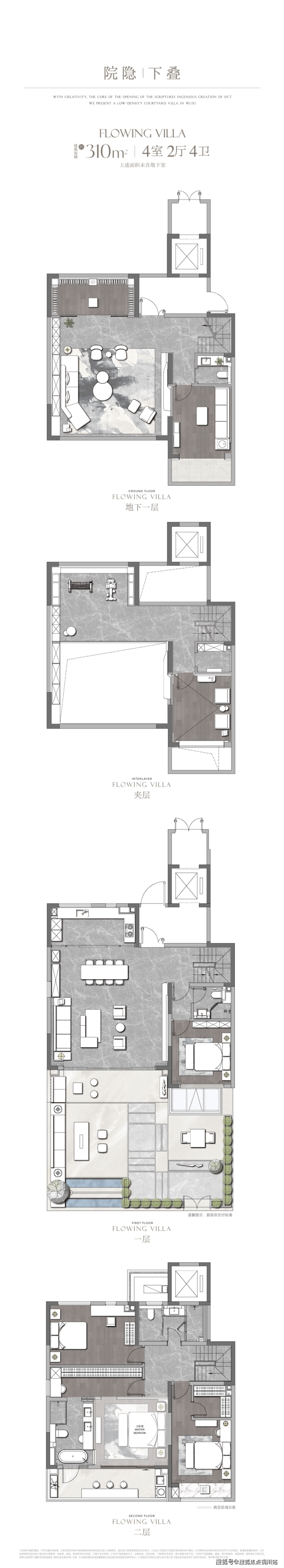
户型图
下叠【院隐】户型建面约310㎡,4室2厅4卫的三层院墅,地上六开间朝南,地下约5.2米挑高空间打造近100㎡私人会所;一楼超大南向度假式庭院与客厅相通,近50㎡全龄社交会客厅,采光视野媲美大平层。


▲实景图
建面约180㎡上叠【观雲】户型,上下双层南向六开间,270°环幕式方厅,客厅与四个卧室均朝南,充分享受阳光平权,私享近40㎡南北双露台,打破空间边界化,尽揽园区自然与城市繁华双重奢景。


▲上叠样板实景图

▲上叠户型图

▲中叠户型图

▲下叠户型图
建面约128㎡三房两厅两卫户型,设计师将客厅、餐厅及厨房全都融为一体,做了开放性的布局,四开间朝南,约6.6米开间的宽厅连通阳台,南北通透,保证了充足的采光。主卧套房设计,满足高端人群对居住空间的挑剔需求。双卫设计,更具隐私性,规避了一房三代同堂的困扰。

▲建面约128㎡客厅实景图
建面约151㎡四房两厅两卫户型,相较于建面约128㎡户型更大的面积,意味着居住舒适度会更高。五开间朝南,约16米南向面宽,约9.1米阔景阳台,超气派餐客厅一体化设计,方寸之间设计感与尊崇感尽显,这个户型的每一项亮点拎出来在同面积段户型中都是王炸级的存在。

建面约183㎡四房两厅三卫户型诠释了真正大宅的空间尺度。户型采用南向双套房设计,主卧贯穿南北,步入式衣帽间,独立卫生间,明亮的飘窗,都不在话下。
无锡华侨城云湖别院售楼处电话:400-116-7720转777(24小时在线,周末无休)💐💐
❣️❣️无锡华侨城云湖别院营销中心电话:400-116-7720转777(可直接咨询房源动态、活动详情)💐💐
❣️❣️无锡华侨城云湖别院开发商售楼部热线:400-116-7720转777(开发商直连、购房政策等问题)💐💐.
声明:本文由入驻焦点开放平台的作者撰写,除焦点官方账号外,观点仅代表作者本人,不代表焦点立场。
