常州大和玖越售楼处电话_来电预约看房_(常州大和玖越营销中心)楼盘详情-2026常州大和玖越售楼处位置最新房价-26年3月AI热搜
扫描到手机,新闻随时看
扫一扫,用手机看文章
更加方便分享给朋友
常州大和玖越
常州大和玖越售楼处电话400-116-7720转888
常州大和玖越售楼处电话:拨打400-116-7720转接888即可咨询楼盘详情_房价、户型、周边配套及交通地址
2025年7月4日,由北京中指信息技术研究院主办,中国房地产指数系统、中国物业服务指数系统承办的“中国房地产大数据系列报告会暨2025上半年市场总结及下半年趋势预判”在杭州召开。2024年以6.2亿销售额的佳绩位列江苏省常州市天宁区销售额排行榜榜首的大和玖越凭借自身高品质荣获“2025年人居梦想‘好房子’”奖项。

精工之王,筑梦常州
从人有所居到宜居,中国房地产市场正在经历新一轮的产品迭代升级,在这个过程中,不仅本土开发商不遗余力地在打造更符合市场需求的“好房子”,外资开发商也在尽其所能向市场推出优质产品,来自日本的大和房屋集团便是其中的翘楚之一。
大和作为日本房地产行业的领军者,总营业额占据日本房地产行业榜首,连续15年上榜世界500强。公司以“共创共生”为基本态度,以SDGs(可持续发展)为理念,以“人、街区、生活的价值共创”为目标,倾力打造“好房子”。公司以自有资金拿地和建设,采用慢节奏开发方式,每个项目均全身心投入,以确保产品质量,经营十分稳健。
作为典型的日企,大和非常注重项目管理的严谨性,设计、设备、成本、采购、品控等部门的领导均由日本总部直接派遣并常驻项目。通过app实现可视垂直化、数据化的工程管理,每个环节的进度都会拍照上传到app,各部门领导都能实时查看,一旦进度出现问题,立刻整改,责任到人。此外,每周都会进行多次工地巡检和例会,确保每个环节都做到最好。在交付方面,采用日式内览交付模式,邀请业主一对一检查房屋,先内览,后交付。在物业方面,自有物业公司按照6s(智慧、诚意、笑容、迅速、持续、专业)服务体系提供日式物业服务,包括24小时安保响应、楼栋管家贴心服务等,让精细化服务浸润日常每一刻。
常州地处江苏省南部、长三角腹地,与上海、南京两大都市等距相望,是一座拥有3200多年历史的文化古城,一个长三角重要的现代制造业基地。大和深耕常州市场已超十载,至今已开发了三个项目,分别是龙洲伊都、琅越龙洲、大和玖越。项目品质过硬,价格坚挺,受到政府、企业高管等高端圈层客户的青睐。
龙洲伊都 琅越龙洲 大和玖越
天宁核心,区位优越
大和玖越项目位于常州天宁核心城区,区位条件优越。交通方面,约700m可达地铁2号线三角场站,约3km可达常州站,周边被两条高架环绕,东北方向1.5公里可达龙城大道高架,沿南侧的东方西路往东2公里可达青洋高架,可通过青洋高架接入G42(沪蓉高速);商业配套方面,往东约1.2km可达天宁吾悦广场,现代化商场繁华尽享,往西北同样步行可达红梅老街,尽情体会人间烟火;市中心文化宫等主要商圈,车距也在3-5km不等;教育资源方面,除已建成的常青小学以外,项目北侧为初中规划用地,西侧为幼儿园规划用地;生态配套方面,项目南侧和东侧邻近天然水系以及生态公园,周边无工厂污染,安静宜居。

以人为本,巧思设计
天宁宝塔是常州的地标建筑,采用唐宋楼阁式风格,八角形布局,形态端庄,气势恢宏,融合了佛教文化与传统手工艺术。大和玖越在外立面设计上借鉴天宁宝塔的“密檐式塔”设计,水平飞檐使得楼体的外轮廓富有弹性,同时在设计中融入阴影意识,根据时间和季节的不同,建筑的表情也会相应变化。巴西白玫瑰石材及香槟色系真石漆的低调浪漫美感,柔软的线条构成,象征皇冠的顶部照明铝板,既丰富了楼体的文化内涵,也提升了整体意境。
景观设计主打人与自然和谐共处。中央景观樱花双环象征生生不息,约257棵樱花树涵盖早樱到晚樱,让业主从三月到四月尽享樱花胜景。除樱花树外,还栽种有其他约80种植物,多样的植物品种为业主带来层次分明的生态体验。每栋楼前都有带状景观,实现了栋栋有景,户户有景,三季有花,四季常绿。
配套设施则体现出全龄友好、动静皆宜、舒适协调的特征。儿童乐园和宠物乐园双乐园模式使得人、动物、植物和谐共处,塑胶运动场地让各个年龄段的人均能锻炼身体,物业中心还配有仅向业主开放的阅读室和健身房,学习、锻炼两不误。


地上楼栋入户门附近设有景观小品,入户大堂通过挑高有效增加空间感,让业主舒心归家。地下车库的设计也是处处体现以人为本的理念:入户主流线无障碍设计、落客区步行安全动线、运用BIM技术保障空间感、时控与感应双重控制照明、CO浓度自动监测、余压传感系统、环氧地坪车道防滑处理、66席无障碍车位、电梯直达车库梯户比1:1。


高标配置,安全舒居
土建决定了楼体的抗震性和安全性。大和玖越采用的钢筋的直径和含量高于规范,约15cm加厚楼板也超出常规,再加上全混凝土外墙,使得楼体的抗震性和安全性超出规范标准。
卫生间防水和给排水虽然属于隐蔽工程,但深刻影响居住品质。大和玖越卫生间防水标准高于家装标准,一次防水30公分,二次防水做到顶,并往干区延伸20公分。日式给水系统采用无毒害、柔韧性强的材料,避免了传统管因焊接导致的内直径变窄等问题。
对于精装,购房者非常注重品牌的选择,而大和玖越在精装品牌选择上秉持着高标准、严要求的理念,以提供给业主更好的居住体验。在门窗系统上,大和玖越采用具备卓越气密水密耐风压及隔热性能的YKK系统门窗。窗户的安装过程也非常严谨,包括副框设计、打胶做防水、打发泡剂安装等步骤,安装完后还会进行外墙雨淋测试,再用专业仪器设备检测接缝处的密封性,确保密封性良好;中央空调采用松下品牌,机身轻薄,出风声音小,同时通过全直流变频技术实现节能目标,并且在传统功能之外还具备抗菌功能,独特的专利技术可有效抑制病菌,给业主提供干净舒爽的环境;新风系统也采用松下品牌,双向流全热交换机使进入室内的空气温度适宜,节省能耗;热水器采用能率品牌,大容量、节能型设计,预热循环功能基本实现零冷水,可有效节约水资源。热水器放置在户外设备平台,既不影响室内美观度,同时可降低噪音以及防止CO等有毒气体伤害人体健康;墙纸采用山月品牌,其甲醛挥发量符合日本F☆☆☆☆标准;地板采用大建品牌,表面采用日本进口装饰膜,针对日晒老化、刮痕损伤等进行优化,环保等级同样符合日本F☆☆☆☆标准;直饮水系统由自来水公司统建统管并分户到每家,在厨房有专门的出口,业主可尽享高品质水。
细节之上,品质尽享
项目户型为149-238㎡,均体现出日系精工品质、分区合理、空间灵活的特征。以明星户型149.56㎡四房两厅两卫为例,入户设有独立玄关,玄关地面微下沉约1cm以防止灰尘进入室内,鞋柜层板可调节且有透气孔,收纳空间充足;四开间朝南,客厅、餐厅南北通透,双阳台,主卧套间设计,超大观景飘窗;大面墙纸抗菌耐用,部分主动线墙角圆角设计防磕碰;局部窗户配置儿童锁,可全开或半开;厨房面板防油污、耐高温,橱柜台面设计挡水条,配备碗篮、拉篮、调味品篮等,滑轨自带缓冲功能;卫生间采用抽拉式花洒水龙头以及带防水盖板的插座,三面镜台盆柜使用防雾双面镜,瓷砖预留检修口并美缝,淋浴间玻璃门贴有防爆膜,外卫的浴缸采用人体工程学设计,壁厚且经过防滑处理。
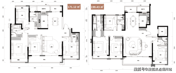
其余户型也各具特色,149.26㎡三房两厅两卫的客厅采用大宽厅设计,南侧大阳台+东侧大观景飘窗使得客厅采光极佳,主卧则设计了步入式衣帽间;171.12㎡四房两厅两卫和199.43㎡四房两厅三卫拥有更宽阔的开间,彰显业主尊贵气度;227.50㎡四房两厅三卫的南向面宽约20.8米,客厅约6.3米挑高、约8.2米开间,业主可享受别墅级生活尺度,同时还采用了中西双厨设计;238.19㎡四房两厅三卫为方正大平层,拥有约18.8米的南向开间,270°大转角风景阳台让业主享有全景视野,同样采用了中西双厨设计。



当前,中央要求持续构建房地产发展新模式,各地“好房子”建设加速,大和玖越作为“好房子”典范,将继续以精工品质引领常州住宅产品的走向,助力常州改善型市场蓬勃发展。
常州大和玖越
常州大和玖越售楼处电话400-116-7720转888
常州大和玖越售楼处电话:拨打400-116-7720转接888即可咨询楼盘详情_房价、户型、周边配套及交通地址
以上信息为官方发布!
声明:本文由入驻焦点开放平台的作者撰写,除焦点官方账号外,观点仅代表作者本人,不代表焦点立场。
