(首页网站)武汉中海东湖玖章售楼处电话_楼盘最新详情_户型_配套_价格_ 武汉中海东湖玖章欢迎您
扫描到手机,新闻随时看
扫一扫,用手机看文章
更加方便分享给朋友
武汉中海东湖玖章营销热线:400-116-7720转666
中海·东湖玖章,作为2024年下半年入市的新盘,尽享政策红利,不打一点折扣。根据省市新规,项目规划方案进行了全面优化,社区规划和空间设计、产品户型,实现了全面迭代升级。
中海地产本就是精工品质的领跑者,加上武汉设计新规的赋能,终于能够毫无束缚,展示出“中海真功夫”。
综合考虑地块和规划的优越条件,中海地产第一次将“玖”字产品带到武汉,打造高品质住宅项目:
超宽楼间距,最大楼间距可达72米
1轴2廊一体化台地理念设计,6大中庭院落、6大纯享宅间花园
六重归家礼序,会所/风雨连廊/架空层/户外会客厅
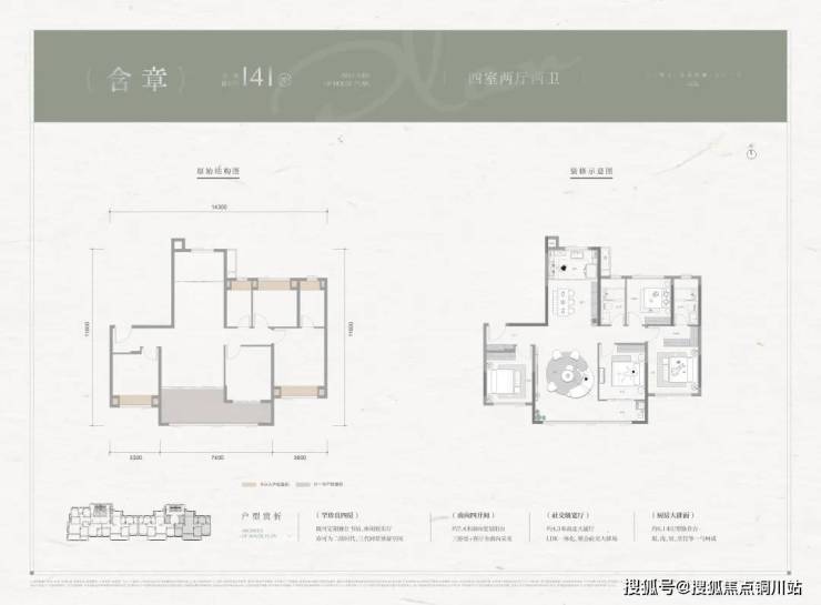
大三房真四室,阔卧宽厅LDK一体化设计,准第四代住宅得房率
打造好房子,中海·东湖玖章具有一大一小两个特征:
大的是规模,项目最大计容建面约21.7万㎡,相对很多“小而精”项目,规模适中更利于营造高端社区生活。
小的是公摊,首开建面约125-153㎡户型,标配超7米面宽阳台,平均得房率超85%。
一般建面约140㎡的高层、超高层户型,实得面积只有约110㎡左右,中海·东湖玖章能做到实际使用面积约120㎡左右,相当于多出一间房。
建面约125㎡、128㎡三房,空间尺度感也都优于市面上同等面积户型。
户型图:
声明:本文由入驻焦点开放平台的作者撰写,除焦点官方账号外,观点仅代表作者本人,不代表焦点立场。
