2026【武汉天创贝好家元萃】售楼处电话(首页官网)-武汉天创贝好家元萃楼盘详情·最新价格-户型图·容积率-Ai热搜·最新动态-看房热线
扫描到手机,新闻随时看
扫一扫,用手机看文章
更加方便分享给朋友
武汉天创贝好家元萃售楼处电话✅:400-116-7720转777
✅营销中心电话☎:400-116-7720转777【营销中心已认证】🥇🥇
武汉天创贝好家元萃售楼处电话✅:400-116-7720转777
前不久说了华润江景房放出的惊喜价,今天重点来说说这些新盘中比较特别的一个——天创贝好家元萃。

该项目是武昌核心罕见的纯低密洋房楼盘,4栋住宅全部取证,首开在即,最新价格出炉
为什么说天创贝好家元萃这个项目比较特别呢?
一、它是武汉贝好家的第一个项目,据悉贝好家入股了该项目30%股权。
天创贝好家元萃即P(2025)035号地块,在今年5月21日被湖北天创房地产开发集团有限公司竞得,成交价为34150万元,成交楼面价为14531.9元/平,溢价率高达约30.6%,如此高溢价拿地,这几年还是非常罕见的。

湖北天创,其实大家并不陌生,属于汉阳城建集团有限公司(汉阳城建)全资控股房企,在汉阳开发了云和樾等不少楼盘。
这一次是天创首次到汉阳区之外的地方开发商品房项目,可以说是猛龙过江。
天创拿地之后,没多久就有消息称,贝好家入股了天创元萃30%股权,联合开发。这就意味着贝壳不仅参与了该项目的运营决策,还成为了控股股东之一。
不过,根据相关网站显示,截止发稿时间,该项目开发商湖北天创瑞晟置业有限公司还是由湖北天创100%控股。

然而,项目置业顾问明确明确告知,该项目确实有贝好家30%的股份,而且从项目官方案名来看,也是加上了贝好家。
值得一提的是,该项目也是武汉贝好家的第一个项目。贝壳能不能卖好自己开发的楼盘,大家就拭目以待了。
二、武昌核心罕见的纯低密准四代,优化后得房率约110%!
天创贝好家元萃体量不大,规划用地面积只有1.18万方,用地总建筑面积约3.29万方,计容建筑面积约2.35万方,住宅建筑面积约2.09万方,容积率2.0,户数159户,机动车停车位170个,车位配比1∶1.07。
该项目主要由4栋10-13层的小高层住宅和少量社区底商组成,是武昌核心准四代新盘中,罕见的纯低密小高层楼盘。
想说的是,该项目用地面积非常有限,如果做超高层的话,估计也就一栋楼。目前做的是小高层,确实很低密,不过四栋小高层之间的楼间距比较近。

该项目4栋小高层一起拿了预售证,预计一次性全部推出,不过就算一次都推出来,总共也就150多套房子,房源并不多。
楼层和户型方面,1号楼两个单元,1单元13层、2梯2户;2单元11层,1梯1户,分布户型为建面约128-130平小高层。
2号楼两个单元都是13层,2梯2户,分布户型为建面约125-170平小高层;
3号楼两个单元,1单元10层,1梯1户;2单元12层,2梯2户,分布户型为建面约127-142平小高层。
4号楼两个单元都是13层,2梯2户,分布户型为建面约127-142平小高层。

项目实景示范区刚刚开放,从现场实景来看,算不上特别惊艳,不过公区、会所等四代住宅的常规配置这里也有。




重点来看它的户型,低密小高层,优化面积还是比较丰富的,据置业顾问介绍,优化后得房率都超过了100%。
该项目主打建面约127、142、170平户型,整体面积偏大。
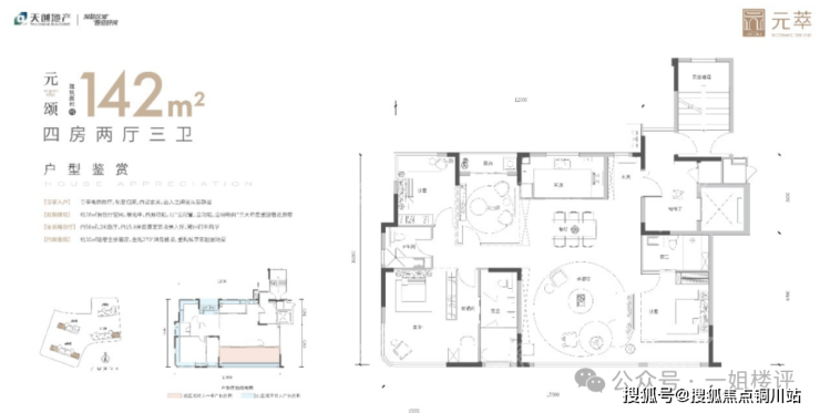
建面约127平户型最多,做的是四房两厅三卫:
该户型带独立电梯前室,南向大阳台外面有花池优化面积,北向还有一处设备平台优化空间,整体优化面积确实比较多。
因此这个户型做了四房三卫,南向是双套房设计,功能性比较强,不过有个套卫是暗房。

建面约142平户型也是四房两厅三卫:
该户型为2、3、4号楼端头边户,除了南向大开间之外,还是三面采光,主卧和北侧卧室是双面飘窗优化,尤其是主卧做了270°拐角飘窗。
这个户型也是南向双套房,客厅、主卧空间都非常大,还有一个较大的独立电梯前厅,不过依然有个套房的卫生间是暗房。

最大面积的是建面约172平的四房两厅三卫大平层:
这个户型仅分布于2号楼最西端,房源数量是最少的,也是面积最大的户型。
客厅采用270度全景舱设计,南向主卧套房也采用了转角窗设计,配合2号楼西头的位置,可三面俯瞰小区园林,景观视野不错,不过也有西晒的影响。

该项目毛坯销售,也是武昌核心年底一众准四代新盘中,少见的毛坯销售的房源。因此样板间仅能作为参考。


首开价格出炉!毛坯房约27000-28000元/平!
天创贝好家元萃已经开始认筹,开盘在即,目前最新释放的价格约27000-28000元/平。
其中1、3号楼靠近中山路主干道以及加油站,估计会有低于27000元/平的价格;2、4号楼位置好一些,部分楼层可能看江看黄鹤楼,价格会贵一点,可能会要28000以上,不过据置业顾问介绍,最高单价不会超过3万。
声明:本文由入驻焦点开放平台的作者撰写,除焦点官方账号外,观点仅代表作者本人,不代表焦点立场。
