【推荐】武汉|城投金沙樾→欢迎您|开发商推荐网站→城投金沙樾楼盘详情→城投金沙樾!图文简介!
扫描到手机,新闻随时看
扫一扫,用手机看文章
更加方便分享给朋友
武汉城投金沙樾售楼处电话:400-116-7720转999
逢开必能创下热销传奇的城投金沙樾,成就了一个值得被载入武汉地产史的传奇楼盘。
十大必买理由 1。武汉城投千亿国企 硬实力稳交付 2。内环旁徐东芯 近享醇熟商业配套 3。比邻沙湖大道 主轴三轨立体出行 4。近揽东湖沙湖 湖园生态绿意环绕 5。超3万方内外双园 全龄度假生活场 6。8字形双围合式布局 户户皆揽景 7。超200米花园商街 烟火气零距离 8。酒店式社区大堂 礼遇归家每一步 9。下沉式山水庭院 立体景观沉浸漫游 10。超配轻改善 超90%得房率准四代宅
持续高涨的人气和三次热销,也向市场传递出三重重要启示。
1、市场并不是没有机会,关键在于能否前瞻性把握市场需求,推出革新性产品。
城投金沙樾的热销,不仅在于城投精准把握了市场需求,还在于打造产品的能力,在武昌1.1环打造高度适配居住需求的准四代产品,得到了市场认可。
2、楼市不缺买房需求,物超所值更容易打动购房者。
从近几个月武汉网签表现来看,现在购房者并不是不愿意买房,而是看哪个项目更值、更具潜力。
城投金沙樾按照豪宅标准配置,实际价值远超价格,购房者当然愿意买单。
3、在变幻莫测的楼市中,城投金沙樾杀出重围,一直热度不减,还在这么短时间高频次推盘依旧飘红,这主要得益于项目把握了精准的开发节奏和营销节奏。
通过短频快的打法延续了开盘的高热度,再加上1.1环的先天地段优势、爆款革新性产品,城投金沙樾再一次成就“金沙樾现象”,并为武汉楼市新一年开门红打样。在更高的层面上,它还重新激活了武汉整个市场活力。
据悉,城投金沙樾7号楼仅剩少量建面约99、126平毛坯三房。
【城投·金沙樾】3号楼即将加推
武昌内环旁·超配轻改善·准四代宅
【总层高】:32F
【户型】:89/108㎡
【梯户比】:3梯4户
【项目基本信息】
项目名称:城投·金沙樾
占地面积:约5.5万方
总建面积:约12.86万方
绿 地 率:>30%
物业费:2.6元/㎡/月
交房时间:2026年下半年
层高:2.9米
容 积 率:3.11
总 户 数:928户
总 栋 数:8栋住宅+1所6班次幼儿园
装修情况:毛坯交付
主力户型:87㎡-126㎡
项目地址:内环徐东·沙湖大道与杨园南路交汇处
其实,任何一次热销,都有其深层的市场逻辑。
市场调整后,当下出手的购房者都有一个明显共性:不再仅仅执着于后市预判,同时也开始重点关注产品本身。
城投金沙樾的产品正是其能打动无数购房者的重要原因之一。
新加推的7号楼靠近小区内部,更安静;而且这栋楼直面小区中心园林,北看市政公园,观景视野绝佳,日照采光好。
作为内环新一代准四代住宅,城投金沙樾的户型将革新性创造力贯彻到底,空间感与功能性拉满。
建面约99平户型,打破常规,空间布局设计优化到了极致,赋予其独立电梯厅、通透三房、双卫设计的高配置。
这也是武汉内环目前同面积唯一的四开间格局的产品。整体空间感堪比市面上建面约120平户型。
难得的是还是私梯入户,妥妥的豪华大平层的待遇。独立电梯厅,邻里间更私密的同时营造专属的仪式感。
约12.2米大面宽设计,以往只常见于建面约160平户型。这样做不仅放大了采光面,还升级了生活功能性,又给生活增加了一份松弛感。
三房全部直面小区中心园林,而且两间卧室全部是大面积落地窗,IMAX广角视野,揽尽一窗美景。主卧套房,预留衣帽间空间,尊崇感满满。
超大的主卫,还做到了双面采光,这可是豪宅户型才有的高配置。
书房与客厅共享双联大阳台,跑道式阳台,空间百变灵动,闲时休闲健身、养花弄草,一处酝酿诗意,一处盛放生活。
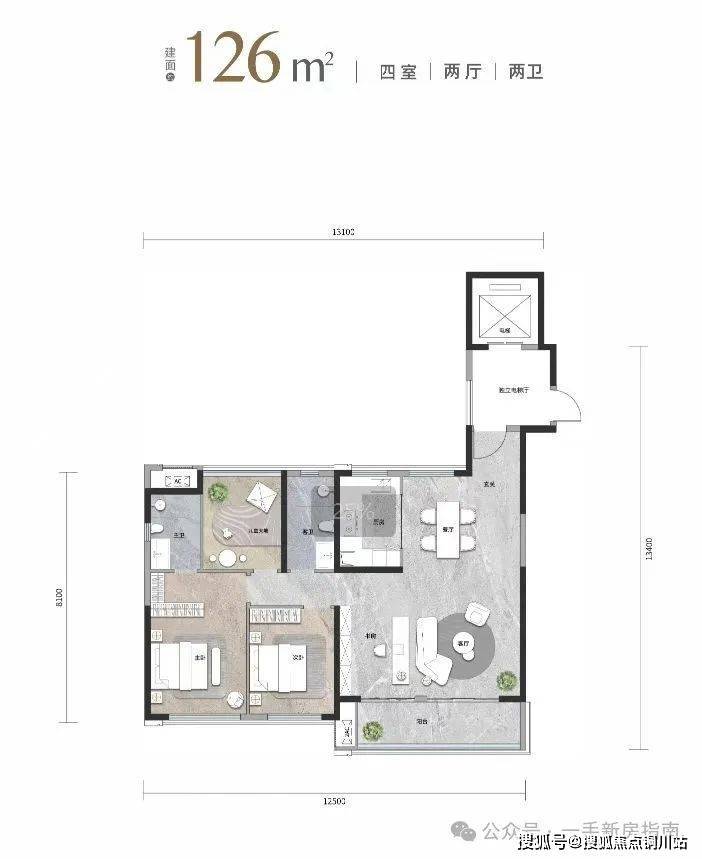
建面约126平边户,居住体验完爆传统建面约150平户型。
电梯入户,私享的电梯前厅更是圈出了居者的私属领地,将家的玄关尺度延伸至电梯前厅,赋予居者尊贵的归家体验。
IMAX级面宽达约12.5米,比滨江豪宅建面约143平面宽还要大,赋予更广阔的采光与视野。
厨房餐厅一体的空间布局,极大程度地丰富了生活场景。
LDKB一体化无界厅,即便是家庭聚会或与朋友一起开party也不拥挤。
这款户型还是少有的南北双X空间设计,客厅还可以改造出一个私密空间。
主卧对侧的百变空间,既可以做独立空间使用,也可并入到主卧,改造成主卧的小客厅或书房。
改造后的主卧套房,带来星级酒店的居住体验,将改善气质拉满。
除了优越户型产品外,城投金沙樾准四代住宅均价约1.6万/㎡左右,比同环线新房产品更好,房价更有优势,吊打同环线的新房和周边次新房,让你用二环外的价格进阶内环!
声明:本文由入驻焦点开放平台的作者撰写,除焦点官方账号外,观点仅代表作者本人,不代表焦点立场。
