武汉城建万科云泊江岸售楼处电话→武汉城建万科云泊江岸售楼中心电话→武汉理想之地楼盘百科→武汉城建万科云泊江岸首页网站→首页网站→24小时热线电话
扫描到手机,新闻随时看
扫一扫,用手机看文章
更加方便分享给朋友
武汉城建万科云泊江岸🏆🏆🏆
✅武汉城建万科云泊江岸售楼处电话☎:400-116-7720转777【营销中心已认证】🥇🥇
✅武汉城建万科云泊江岸营销中心电话☎:400-116-7720转777【营销中心已认证】🥇🥇
🏆本项目暂不接受临时到访,看房请提前预约,可尊享内部特惠!
🏆为您安排楼盘内场专业销售人员一对一接待服务,给您更贴心的看房体验!
项目介绍
💫【云泊江岸】💫
◎ 武汉城建&万科 双强匠携手精耕汉口
◎ 汉口滨江商务区 全盛人文生活新主场
◎ 解放大道双地铁 一桥二环三轨交汇处
◎ 步行至成熟教育 1号线3站直达壹方北馆
◎ 一城丰盛烟火心 34万方活力生活中心
◎ 七大公园心环绕 享繁华绿心鲜氧森活
【总 建 面】:约34万方
【装修情况】:3000元/㎡精装(中央空调 、地暖)
【车位配比】:1:1.91
【土地年限】:70年
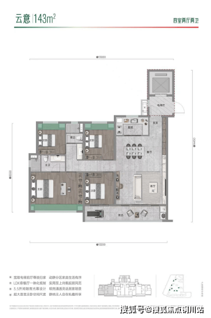
【主力户型】:108㎡/128㎡/143㎡/175㎡
【物业费】:3.6元/㎡
【得房率】:85%
【层高】:2.95米
【在售楼栋】:7、11、6、10号楼
108㎡ 均价:2w 总价:210万起
128㎡ 均价:2.2w 总价:265万起
143㎡ 均价:2.25w 总价:310万起
175㎡ 均价:2.45w 总价:430万起

区位介绍

【项目名称】:武汉城建•万科|云泊江岸
【项目地址】:武汉·二七滨江·解放大道·丹水池地铁口C口西行50米
武汉城建·万科云泊江岸

双教育品牌

毗邻约36000方教育用地,现已引进「长春系+七一系」双教育品牌
步行优教
规划2所幼儿园,毗邻教育用地步行可达,目送式成长助力孩子独立

【区域观】+【资源观】

1. 立足汉口滨江商务区6-7期规划核心区
「国际高质生活新启点」
叠加城市级规划、世界级前瞻跨越之地二七滨江时代使命感向北而拓,随着6、7期的规划逐步落地,板块未来发展潜力巨大
2. 鼎立二七桥首
享解放大道约20min高质生活圈
位于二七滨江商务区6-7期发展带,享解放大道交通主轴及二环内的核心城市配套资源,共筑汉口超级醇熟生活圈

交通配套

交通配套
【环轨交汇 繁华川流不息】
二七桥首
立二七桥头,享城市资源、规划发展红利
解放大道
汉口核心交通中轴,高效通达汉口核心配套
纵贯二环
快速链接二环路网,贯通城市主轴中枢,畅达武汉三镇主城核心
三轨交汇
1号线和12号线(建设中)双地铁口,毗邻21号线,高效接驳3、6、7号线

资源集核

【汉口极核 纵享都市逸趣】
🧳 精粹商圈
地铁3站直达壹方北馆,解放大道链接武汉天地商圈、国广/恒隆/K11城市级商圈
三甲医疗
近享同济医院、协和医院、中国人民解放军中部战区总医院汉口院区等⼀线医疗配套体系
【社区观】+【营造观】

一城丰盛高阶烟火 约34万方都市公园住区
汉口滨江少有的多业态综合住区,融合步行生活、全龄运动、健康运动、城市度假等产品设计理念
超级底盘
集商业、文体、休闲、人居为一体,为宜居生活创想构筑多维可能

七大内外公园环绕 快行都市漫游森活

近邻汉口市政公园:
汉口江滩公园/百步亭花园长廊/堤公园/后湖运动公园等
绿地规划
约40000平绿化规划,繁心江岸的生活缓冲带
文体公园
约8000平文化体育中心,全龄全民运动公园
浪潮公园
打造浪潮IP公园,享人生四季归家观景

户型鉴赏





武汉城建万科云泊江岸🏆🏆🏆
✅武汉城建万科云泊江岸售楼处电话☎:400-116-7720转777【营销中心已认证】🥇🥇
✅武汉城建万科云泊江岸营销中心电话☎:400-116-7720转777【营销中心已认证】🥇🥇
🏆本项目暂不接受临时到访,看房请提前预约,可尊享内部特惠!
🏆为您安排楼盘内场专业销售人员一对一接待服务,给您更贴心的看房体验!
声明:本文由入驻焦点开放平台的作者撰写,除焦点官方账号外,观点仅代表作者本人,不代表焦点立场。
