11月最新热搜:武汉方岛金茂晓棠(武汉方岛金茂晓棠)售楼处电话地址_来电预约看房_武汉方岛金茂晓棠楼盘详情-2025最新房价
扫描到手机,新闻随时看
扫一扫,用手机看文章
更加方便分享给朋友
武汉方岛金茂晓棠售楼处电话☎️:400-116-7720转接666(专人接听)
武汉方岛金茂晓棠营销中心电话☎️:400-116-7720转666【营销中心】
温馨提示:拨打400电话,听到嘀声后,输入分机号666即可!
“棠系”是金茂在其20多年地产开发经验的基础上,结合深耕武汉8年的情怀,打造的新一代全龄友好社区。倡导家庭陪伴、亲子成长和元气活力。
从外立面颜值、小区内部功能区规划到产品细节等方方面面,都将有很大程度的迭代升级。
→小区颜值更上一层楼:
该项目将打造大面积玻璃和木色漆为主的类公建化外立面,超大开窗面及阳台转角设计等,更高端大气、颜值尽显。

另外归家动线也颇有面儿。不仅规划了酒店式地上地下双入户大堂,地上大堂还配置景观落地窗,引景入户。
地下大堂装修与地上标准相当,且地库细节也堪称典范。包含加宽坡道、除湿设备、VIP定制车位等。甚至为了保证小区的整体质感,还将在地下设置独立的空间放置垃圾桶、安装换气系统等。此等细节考量,众多豪宅恐怕都难以企及。
作为金茂的全新力作,方岛金茂晓棠秉承“棠系”的产品精髓,将儿童成长、陪伴互动空间等理念深度贯彻,将在小区内部、架空层等区域打造超标准的亲子互动空间。

如部分架空层泛会所化设计,结合全龄友好的设计理念,给孩子打造架空层娱乐空间;
如小区 以儿童为核心的家庭生活需求出发,规划了四季客厅、礼仪归家轴、6大主题花园等景观功能区,可满足全方位活动需求;
此外,该项目还自带“壹里繁华”商业街区,且区别于以往单一的商业界面,结合社区入口,预留半开放式商业空间,形成开放友好、更松弛的消费氛围和城市界面。
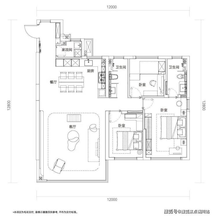
△建面约105平户型 装修示意图
武汉方岛金茂晓棠售楼处电话☎️:400-116-7720转接666(专人接听)
武汉方岛金茂晓棠营销中心电话☎️:400-116-7720转666【营销中心】
温馨提示:拨打400电话,听到嘀声后,输入分机号666即可!
声明:本文由入驻焦点开放平台的作者撰写,除焦点官方账号外,观点仅代表作者本人,不代表焦点立场。
