首页热搜:宜昌御江云庐售楼处电话→宜昌御江云庐Ai热搜24小时电话→2025最新房价→楼盘百科详情→售楼处更新发布@售楼处中心
扫描到手机,新闻随时看
扫一扫,用手机看文章
更加方便分享给朋友
宜昌御江云庐售楼处电话:400-116-7720转777(24小时在线,周末无休)💐💐
❣️❣️宜昌御江云庐营销中心电话:400-116-7720转777(可直接咨询房源动态、活动详情)💐💐
❣️❣️宜昌御江云庐开发商售楼部热线:400-116-7720转777(开发商直连、购房政策等问题)💐💐.
在宜昌人居版图上,当叠墅的低密基因,邂逅四代住宅的空中庭院诗意,一场关于居住革命的奇妙化学反应,正掀起前所未有的波澜——宜昌首现的四代叠墅——御江云庐,带着打破常规的空间想象力,将为这座城市的高阶生活,书写怎样的崭新篇章?
它处于伍家岗区星海路西侧,以稀缺1.1容积率,规划16栋6层叠拼(下叠B1/F1/F2、中叠F3/F4和上叠F5/F6)住宅和1栋两层配套及商业,注定成为追求品质生活人士的向往之地。
该项目所在地块由湖北御江集团以1.1882亿元的总价成功竞得,这一开端,便为御江云庐奠定了打造高品质人居的基础,如今随着户型图的呈现,其居住魅力正逐步展现。

当下,它带着精心雕琢的户型图惊艳亮相,每一款都蕴含着对生活的深刻理解与精妙构思,户型面积段主要为180㎡和220㎡两种,接下来就让我们一同深度解码。
hot
整体户型亮点
1、近6m阔绰层高地下室,给予生活能活更多想象;
2、近6.5m挑高客厅,空间可塑性强,带来更多的灵活性与功能性;
3、赠送面积多(下叠送地下室,上叠送顶层露台),超高得房率;
4、LDKBG一体化场域,打造“无界生活厅”,整个格局打开;
5、近10㎡U型厨房连接半分离岛台,满足多元化餐饮习惯需求;
6、户户有庭院,且上下无隐私干扰;
7、270°环幕庭院连接客餐厅,尺度感和舒适度一绝。
建筑面积
180㎡(主力户型)
B1+F1+F2
下叠

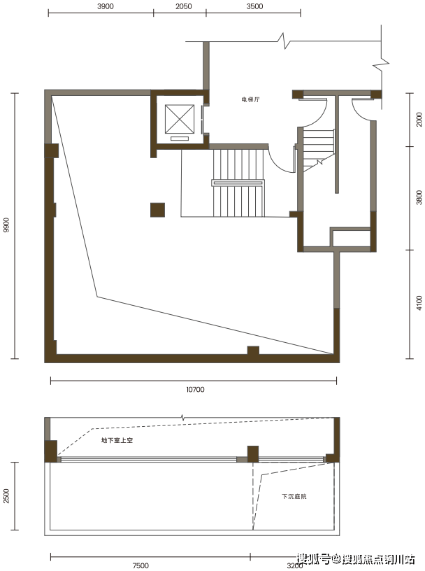
奢享约6米层高地下空间,可灵活定制双层空间,比如上层打造家庭影院,利用开阔空间营造沉浸式观影氛围;下层分隔为健身房 + 储藏区,满足运动与收纳需求,弹性布局适配多样生活场景。业主可根据不同家庭成员的兴趣爱好与社交需求,自由布局空间。
虽为地下空间,但拥有“下沉庭院”,打破封闭,顺其自然地引入自然光照与通风。搭配“地下室上空”挑高,光线可向纵深渗透,让地下空间更显通透,提升整体居住体验,让地下室从“辅助空间” 升级为“生活增效区”。

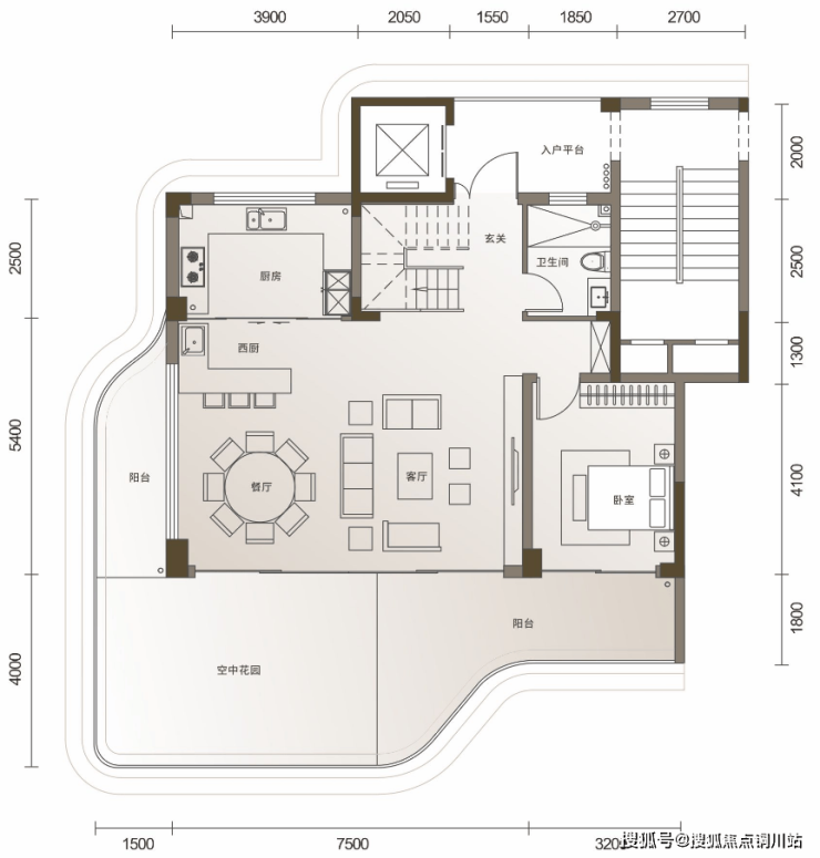
F1:
·明显的LDKBG一体化,拥有开放式一体化空镜,实现空间的多区域联动和场景的多元互动;
·约10㎡U型厨房搭配半分离自由岛台,可以说是厨房的延伸吧台,可自由设计;
·约40㎡南向客餐厅,可打造多样化生活场景;
·玄关处有约3㎡过渡空间,灵活收纳与置物。

F2:
·卧室朝南人性化设计(F1+F2),让阳光与生活同步;
·约6.5米挑高客厅,空间可塑性强,带来更多的灵活性与功能性。
F3+F4
中叠

F3:
·LDKBG一体化,营造N种居家与聚会场景;
·约10㎡U型厨房搭配半分离自由岛台;
·约40㎡南向客餐厅,多样化生活场景即可实现;
·约7.5m大宽厅与约43㎡L型空中庭院+阳台相连,餐客厅与空中庭院一体贯通,南向IMAX视野一绝,院落生活在自家实现,且上下户无隐私干扰;
·入户平台+玄关处共有约10㎡过渡空间,可延伸为家庭功能区的“外延补丁”,入户平台区可变身为“家务中转站”,收纳、储物、家电放置可自由实现。

F4:
·双阳台设计,收纳晾晒、浪漫赏景两不误;
·约6.5米挑高客厅,空间可塑性强,带来更多的灵活性与功能性;
·卧室朝南人性化设计(F3+F4),让阳光与生活同步。
F5+F6+顶层
上叠

F5:
·LDKBG一体化,营造N种居家与聚会场景;
·约10㎡U型厨房搭配半分离自由岛台;
·约40㎡南向客餐厅,多样化生活场景即可实现;
·约7.5m大宽厅与约43㎡L型空中庭院+阳台相连,餐客厅与空中庭院一体贯通,南向IMAX视野一绝,院落生活在自家实现,且上下户无隐私干扰;
·入户平台+玄关处共有约10㎡过渡空间,可延伸为家庭功能区的“外延补丁”,入户平台区可变身为“家务中转站”,收纳、储物、家电放置可自由实现。

F6:
·双阳台设计,收纳晾晒、浪漫赏景两不误;
·约6.5米挑高客厅,空间可塑性强,带来更多的灵活性与功能性;
·卧室朝南人性化设计(F5+F6),让阳光与生活同步。

顶层:
·赠送顶层露台,烧烤、举办PARTY、赏露天电影等,轻松实现;
建筑面积
220㎡
(该面积段主要分布在7#西边户和10#东边户)
B1+F1+F2
下叠

同样奢享约6米阔绰层高地下空间,业主可根据不同家庭成员的兴趣爱好与社交需求,自由布局空间。同时拥有下沉庭院,空间通透性强。

F1:
·LDKBG一体化,营造N种居家与聚会场景;
·相较于180㎡,它拥有更大的面积,客餐厅面宽达到约10米,尺度感更强;
·约55㎡南向客餐厅,可打造多样化生活场景。
·约13㎡U型厨房搭配半分离自由岛台,厨房空间大,动线非常自由;
·玄关处纵深达到约4m,收纳墙的打造可节省一部分储物空间。

F2:
·卧室朝南人性化设计(F1+F2),让阳光与生活同步;
·约6.5米挑高客厅,空间可塑性强,带来更多的灵活性与功能性;
·卧室与卫生间连通,空间一起达约35㎡,可打造主套房,酒店式套房日常奢享。
F3+F4
中叠

F3:
·LDKBG一体化,营造N种居家与聚会场景;
·专属电梯入户,内外双入户玄关,归家仪式感十足;
·约13㎡U型厨房搭配半分离自由岛台,满足多元化餐厅习惯需求;
·约55㎡南向客餐厅,黄金开间进深比,以蓬勃尺度彰显非凡气度;
·10m宽横厅与约57㎡L型空中庭院+阳台相连,餐客厅与空中庭院一体贯通,户户有庭院,上下户无隐私干扰;
·入户平台+玄关处共有约11㎡过渡空间,可延伸为家庭功能区的“外延补丁”,入户平台区可变身为“家务中转站”,收纳、储物、家电放置可自由实现。

F4:
·双阳台设计,收纳晾晒、浪漫赏景两不误;
·约6.5米挑高客厅,空间可塑性强,带来更多的灵活性与功能性;
·卧室朝南人性化设计(F3+F4),让阳光与生活同步;
·卧室与卫生间连通,空间一起达约34㎡,可打造主套房,酒店式套房日常奢享。
F5+F6+顶层
上叠

F5:
·LDKBG一体化,营造N种居家与聚会场景;
·专属电梯入户,内外双入户玄关,归家仪式感十足;
·约13㎡U型厨房搭配半分离自由岛台,满足多元化餐厅习惯需求;
·约55㎡南向客餐厅,黄金开间进深比,以蓬勃尺度彰显非凡气度;
·10m宽横厅与约57㎡L型空中庭院+阳台相连,餐客厅与空中庭院一体贯通,户户有庭院,上下户无隐私干扰;
·入户平台+玄关处共有约11㎡过渡空间,可延伸为家庭功能区的“外延补丁”,入户平台区可变身为“家务中转站”,收纳、储物、家电放置可自由实现。

F6:
·双阳台设计,收纳晾晒、浪漫赏景两不误;
·约6.5米挑高客厅,空间可塑性强,带来更多的灵活性与功能性;
·卧室朝南人性化设计(F5+F6),让阳光与生活同步;
·卧室与卫生间连通,空间一起达约34㎡,可打造主套房,酒店式套房日常奢享。

顶层:
·赠送顶层露台,烧烤、举办PARTY、赏露天电影等,轻松实现;
总结
御江云庐的产品户户有庭院,在这里,你可以根据自己的喜好打造花园、庭院景观,或是设置户外休闲区,与家人一起享受户外烧烤的乐趣。庭院不仅是空间的延伸,更是情感交流的重要场所。
宜昌御江云庐售楼处电话:400-116-7720转777(24小时在线,周末无休)💐💐
❣️❣️宜昌御江云庐营销中心电话:400-116-7720转777(可直接咨询房源动态、活动详情)💐💐
❣️❣️宜昌御江云庐开发商售楼部热线:400-116-7720转777(开发商直连、购房政策等问题)💐💐.
声明:本文由入驻焦点开放平台的作者撰写,除焦点官方账号外,观点仅代表作者本人,不代表焦点立场。
