2025武汉城建万科云泊江岸售楼处电话_来电预约看房_(武汉城建万科云泊江岸营销中心)楼盘详情@武汉城建万科云泊江岸营销热线
扫描到手机,新闻随时看
扫一扫,用手机看文章
更加方便分享给朋友
武汉城建万科云泊江岸售楼处电话✅:400-116-7720转777
✅武汉城建万科云泊江岸营销中心电话☎:400-116-7720转777【营销中心已认证】🥇🥇
✨武汉城建万科云泊江岸售楼处电话✅:400-116-7720转777
武汉城建万科云泊江岸营销中心电话☎:400-116-7720转777【营销中心已认证】🥇🥇
项目效果图:
项目地址:武汉·二七滨江·解放大道·丹水池地铁口C口西行50米
开发商:武汉城建&万科
物业:万科物业
产品类型:住宅
产权年限:70年
水费:民水
电费:民电
物业费:3.6元/㎡/月
交房时间:2025年年底
交房标准:精装修
在售情况:108、128、143㎡三房、四房
均价:22000元/㎡
项目内部效果图:
项目园林效果图:
项目售楼部效果图:
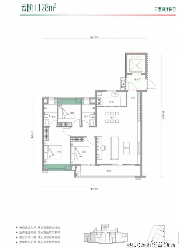
三个户型图,包含建面约108平、建面约128平及约143平。
根据户型分布平面图来看,该户型所在楼栋为3梯4户格局,双连廊设计,该户型位于楼栋边户,南北通透,三开间朝南,南向有连接次卧和客厅的大阳台;户型比较方正且动静分区较好,但是过道有点浪费面积,另外根据户型图显示,该户型可以做到一梯一户的居住体验。

该户型位于连廊中间户,北边对连廊,可以达到南北通透的效果,但是北边对着连廊的空间私密性会有一定影响;该户型很方正,动静分区较好,主卧带有独立卫浴且南北贯通,舒适性不错。

从该户型的分布平面图来看,户型所在楼栋是两梯两户的格局,是纯板楼设计,该户型也是完全南北通透,四开间朝南且三面采光,客厅做了横厅设计,采光面很足,且房间分开布局,没有做动静分区,但是房间私密性更好,还有独立的电梯厅,是较为不错的户型。

武汉城建万科云泊江岸售楼处电话✅:400-116-7720转777
✅武汉城建万科云泊江岸营销中心电话☎:400-116-7720转777【营销中心已认证】🥇🥇
✨武汉城建万科云泊江岸售楼处电话✅:400-116-7720转777
武汉城建万科云泊江岸营销中心电话☎:400-116-7720转777【营销中心已认证】🥇🥇
声明:本文由入驻焦点开放平台的作者撰写,除焦点官方账号外,观点仅代表作者本人,不代表焦点立场。
