【营销中心发布】青岛中欧金茂锦棠售楼处电话→青岛中欧金茂锦棠售楼中心首页网站→青岛中欧金茂锦棠楼盘百科详情→24小时电话
扫描到手机,新闻随时看
扫一扫,用手机看文章
更加方便分享给朋友
青岛中欧金茂锦棠售楼处电话☎️400-116-7720转接999(专人接听)
🌈青岛中欧金茂锦棠营销中心电话:☎️400-116-7720转999【营销中心】
🌈温馨提示:拨打400电话,听到嘀声后,输入分机号999即可!
这种纯粹的洋房、小高层组成的高端楼盘,青岛已经多年未见。
从立面效果来看,大面积的窗墙比和公建化立面,让整个中欧金茂锦棠高级感知足。高级灰、鱼肚白的色调与竖向铝板轴线的结合,再加上飘逸的屋顶设计,中欧金茂锦棠的建筑细节处理,非常极致。

虽然景观的细节做法尚未呈现,但是目前来看“参与、自然、立体”应该是中欧金茂锦棠的景观设计原点。
项目景观采用一轴三心六园的递进式布局,设置了南北礼序的双向归家轴,同时融入了项目IP“棠宝”的成长故事线,通过三个园区核心,串联多个生活场景体验空间。

而且项目拥有高新区唯一超2200㎡的全龄友好泛会所,南北两个面积均超大面积的中央草坪,以及多功能全景下沉空间。
会所功能涵盖篮球场、儿童星空剧场、四点半学堂、台球室等,再加上金茂的金质物业服务,通过多维的休闲、娱乐、健身空间,组织多元化人文社群活动等,营造出金茂锦棠全龄友好型美好生活的新场景。
因为地块方正、容积率较低,所以中欧金茂锦棠也拥有较高的户均室外绿地面积。
社区门厅是小区的颜值担当,整个中欧金茂锦棠的社区大门宽约32米,高约6.6米,融合了中轴对称和层层递进的东方哲学。
2
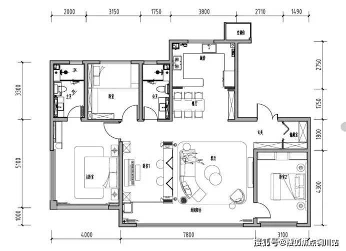
除了建筑精致、园林茂密、空间丰富,户型也是中欧金茂锦棠的优势之一,整个户型面积段达到了125-192㎡,层高全部为3米以上,从这个面积段就可以看出,这是个纯粹的改善楼盘。
以125平的户型为例,户型采用经典的元宝户型,南侧两个卧室独立分区、互不打扰,LDKB一体化的餐客厅设计,让整个户型的公共活动空间非常阔绰。
150平的三南卧户型(整体为四房两厅两卫设计),更是区域内的稀缺产品。入口处的独立储藏间可以让收纳家庭杂物,让室内更加规整有序。
主卧带独立卫生间,整体面积达到了约27平,这样的空间布局可以极大地提升居家舒适度。
约11米的跑道型阳台,实现了景观阳台、生活阳台的双兼容。
金茂锦棠瞅准的第一批种子客户,就是十年前买入中欧国际城的年轻朋友们。
2015年,中欧国际城首次开盘,以89平户型为主,当时定位为“青年时尚社区”,如今经过十年发展,扎根于此的年轻人结婚生子、事业有成、人生小满。
他们认可中欧国际城的城市巨变,喜欢在周末的祥茂河草地公园露营,也喜欢在览秀城喝一杯下午茶,更喜欢带外地的朋友去刚刚开业的东方伊甸园游玩,这是一座梦想之城。
旁边的青岛中学是青岛最优质的教育配套,最新开业的东方伊甸园是城市级的文旅项目。
唯一遗憾的十年前买入的户型有些局促了,居住品质下降了,所以中欧金茂锦棠就是金茂青岛献给十年前相信金茂的年轻朋友们的厚礼。
和业主共成长,和城市共成长,这种对于城市和市民的深度理解和践行,恰恰是金茂的护城河。
3
作为金茂“金玉满堂”产品系中的棠系,在金茂的产品序列构想中,会是一个适宜全家老少共同生活的筑梦乐园。
按照金茂内部的说法来看,“棠”系也是产品最抗打的基石项目,承担着整个集团销售流速、现金牛的作用。
除了成都晓棠和天津晓棠的热销外,武汉方岛金茂晓棠斩获汉阳片区上半年新房销量榜TOP1;南京东山金茂晓棠摘得上半年全市250万以内住宅成交套数第一。
常熟金茂晓棠,创常熟近两年首开去化率冠首,4-6月获得市区销售面积/套数/金额三冠王;上海金茂棠前,5-6月两次即开即罄。
棠系产品热销的背后是,金茂对客户需求的深研,对产品的用心雕琢。
所以业内预测,金茂锦棠已经提前预定了青岛下一个神盘。能够再现中欧国际城热销的神话。
4
从2010年,金茂进驻青岛开始,央企金茂就深知青岛的板块发展和人居需求。
所以,在青岛轮渡湾复兴的时机,他们建设了金茂湾超级综合体;
在青岛需要超级产品力引领城市高端人居的时候,金茂在崂山区建设了大云谷金茂府,并迅速的形成了一城四府。
当青岛北岸崛起,建面约400万平的中欧国际城与高新区的发展时刻同频,并给高新区带了第一座超级商场,第一座五星级酒店,以及百万方的产业办公空间。
中欧国际城的巨大作用,北岸的原住民深有体会,他们称之为“一座城,改变了一座城”。
而在中欧国际城建设11周年之际,金茂又再次推出了东方伊甸园和中欧金茂锦棠。

青岛中欧金茂锦棠售楼处电话☎️400-116-7720转接999(专人接听)
🌈青岛中欧金茂锦棠营销中心电话:☎️400-116-7720转999【营销中心】
🌈温馨提示:拨打400电话,听到嘀声后,输入分机号999即可!
声明:本文由入驻焦点开放平台的作者撰写,除焦点官方账号外,观点仅代表作者本人,不代表焦点立场。
