首页热搜:宜昌城发首座售楼处电话→宜昌城发首座Ai热搜24小时电话→2025最新房价→楼盘百科详情→售楼处更新发布@售楼处中心
扫描到手机,新闻随时看
扫一扫,用手机看文章
更加方便分享给朋友
宜昌城发首座售楼处电话:400-116-7720转777(24小时在线,周末无休)💐💐
❣️❣️宜昌城发首座营销中心电话:400-116-7720转777(可直接咨询房源动态、活动详情)💐💐
❣️❣️宜昌城发首座开发商售楼部热线:400-116-7720转777(开发商直连、购房政策等问题)💐💐.
城发·首座传承中国文化 「流觞曲水」、「曲径通幽」等对曲线之美的认知,从宜昌「山水城市」的自然特色中汲取灵感,用行云流水的线条,在楼体上复刻出「水波纹」,勾勒出一幅动态画面。

城发·首座效果图
既是柔美的平衡,更是无限时空中,延伸城市之美的建筑语义。
这样的设计下,每一层楼看上去都有微微的不同,辨识度便油然而生。
大面积玻璃幕墙+弧形铝板的立面转角,前后经历18道工序,难度异乎寻常的工艺,打破建筑边缘的传统尖锐感,淡化棱角,使整个建筑看起来柔和温润,更彰显出住宅的尊贵与精致。

城发·首座效果图

城发·首座效果图
而120米的高度,更是让城发·首座从「城际」到「天际」,奠定了灯塔的地位。
从富到美,是从物质层面到精神层面的追求变化,亦是人们避免资产贬值而寻觅的新途径。因为美不仅仅是让你觉得赏心悦目,更会带来地标价值,引发更多人的向往。
除了「超高颜值」之外,城发·首座同样拥有「超强内核」。
宜昌有业主专享会所的楼盘,会所一般都建在地面,或是一栋独立建筑,或是架空层内的功能丰富的泛会所,鲜少有人反其道而行之。
宜昌城发集团向来是宜昌城市建设的先行者,是房地产开发的领路人。在会所建造方面,城发·首座独辟蹊径,打造了身处云端天际、拥揽城市核心景观的「空中会所」,而这也几乎是世界顶豪的标配。
在城发·首座,规划有空中健身中心、星幕恒温泳池、空中梦幻花园、城市书房艺术馆等,将业主的业余生活安排的满满当当。
而西陵城芯、宜昌CBD的的核心位置加持,让人才、技术、资源在这里聚集。等社区入住,会所开始运营,这里的业主就会在城市C位形成专属的顶级「朋友圈」。
这样的硬核设计贯穿了城发·首座的垂直空间。
除了向上的空中会所,地面铺开了浪漫的花园街区,给业主一种放慢脚步的惬意。
向下,还有酒店式归家入户大堂、智能归家奢装地库,在一般人看得见和看不见的地方都默默发力,赋予业主尊崇感和仪式感。
城发·首座酒店式归家入户大堂效果图
当然,硬件到位了,软件也必不可少。
城发·首座与全国前十物业品牌、物业服务满意度连续14年位居全国物业百强企业首位的龙湖物业强强联合,搭载华为AI智慧物业管理系统,将为业主们提供前所未有的专属服务。
而这一切,又将在无形中提升资产价值。
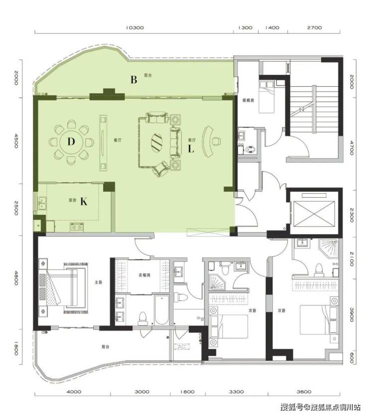
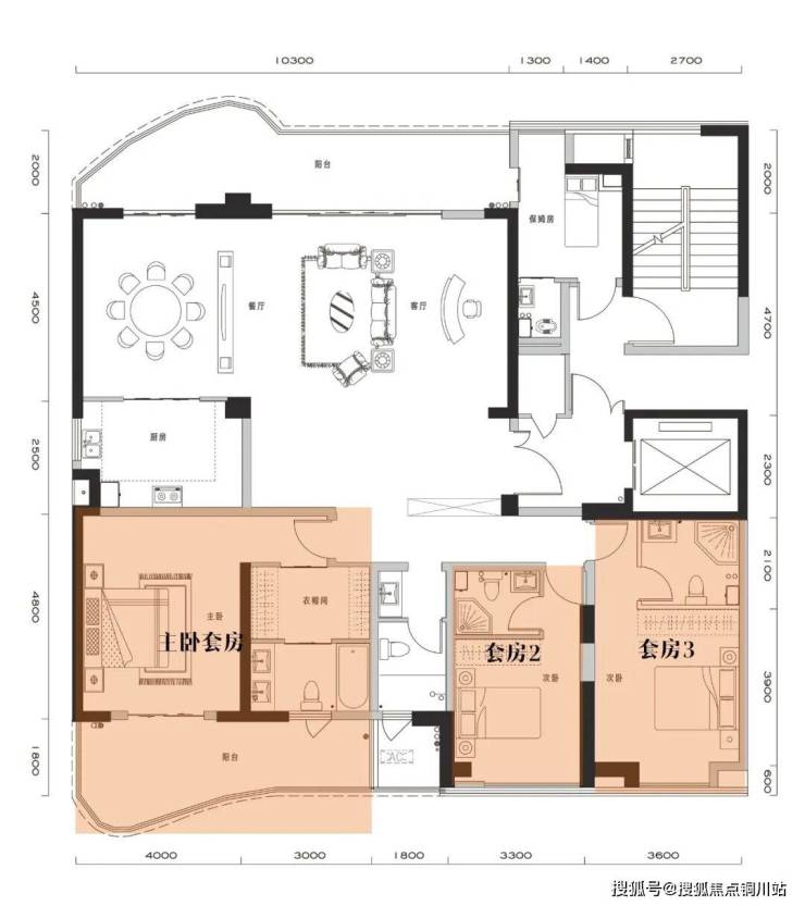
我们再来看全城仅94席的城芯大平层户型,每一个小细节的设计都令人惊叹不已。
这个约240平的大平层,拥有3个南向的套房。其中,主卧套房带独立衣帽间、可放置双台盆的独立卫生间、还有一个可观景的南向弧形阳台。家里的成员,都能享受到独立而私密的生活空间。
城发·首座约240.99/243.37㎡户型
LDKB一体化设计,将客厅(Living room)、餐厅(Dining room)、厨房(Kitchen)、阳台(Balcony)四个相对独立的空间整合到一起,成为超阔绰的公共活动空间。这一空间即便是不把阳台计算在内,也超70平米,相当于一个普通小两房的空间大小。约10.3米的大横厅设计直接连接北向弧形阳台,让整个空间格外通透。
城发·首座约240.99/243.37㎡户型
此外,这个大平层户型,专门设计了保姆房。足以称道的是,保姆房的房门在房间的另一侧,并且设立了独立卫生间,通过阳台一侧的门开启家政路线,细节满满。
城发·首座约240.99/243.37㎡户型
宜昌的大户型不少,但达到「天花板级」的大面积段产品并不多,城发·首座这个户型的曝光,势必会将宜昌的塔尖人群,再次热烈地搅动起来。
宜昌城发首座售楼处电话:400-116-7720转777(24小时在线,周末无休)💐💐
❣️❣️宜昌城发首座营销中心电话:400-116-7720转777(可直接咨询房源动态、活动详情)💐💐
❣️❣️宜昌城发首座开发商售楼部热线:400-116-7720转777(开发商直连、购房政策等问题)💐💐.
声明:本文由入驻焦点开放平台的作者撰写,除焦点官方账号外,观点仅代表作者本人,不代表焦点立场。
