首层南入户大堂内,星空顶熠熠璀璨,诠释着低调的奢华美学;约2000㎡下沉式会所,涵盖恒温泳池、健身会所、私宴厅等,以“隐奢社交场”重新定义圈层生活;即便是地下车库,也以缓坡入库、光幕车库公区等设计,将豪奢细节…
苏州蠡棠森屿售楼处电话:400-116-7720转999
案场采用预约制,看房请务必提前来电预约登记。为确保您能享受专属服务,不错过理想房源,请一定致电与销售确认到访时间,只有预约客户方可进入销售现场。
感谢您的理解与支持,期待您的来电!

项目档案
项目名称:蠡棠森屿
地块信息:苏地2023-31号/61号地
项目地址:相城经开区春申湖路南、澄星街东
开发品牌:经开国控&旭辉建管
地块指标:占地约5.2万方,容积率1.6,总建约12.4万方
住宅指标:拟建20栋12-17F小高层(奇偶错层设计)
户型配置:约150㎡、约185㎡、约220㎡
精装标准:全装修住宅,最低装标2500元/平
价格信息:23年6月和10月拿地,楼面价约16000元/平

▲项目效果图
1.旭辉建管“森屿系”产品定位
该项目由旭辉建管全流程建设打造。2024上半年,旭辉建管新增在管项目数量近50个,新增项目覆盖城市超30个,新增签约面积超700万方,位列2024年上半年中国房地产代建企业“新签规模排行榜”TOP2。(数据来源中指研究院)
在苏州,旭辉建管层接连打造了和悦塘前雅院、和悦里塘雅院等项目!作为旭辉建管在苏州落位的第11个项目,在产品定位方面首次落地高端标杆产品系“森屿系”,将自然森居的理念植入现代城市日常生活!尤其是结合了“垂直森林”的理念,在空中庭院、生活场景、生态立面等多个层面全部升级换代!
2.苏州首创错层阳台立面,户户大露台
从远处看,蠡棠森屿的立面像是被垂直森林自然包裹着。


通过露台外伸、奇偶层错位的设计,以及客厅与花园两层通高联通的方式,以L型咬合方式形成环幕边厅花园,拥有270°的无遮挡开阔视野,形成真正意义上的空中庭院。


3.近2300㎡豪华会所,自带泳池健身房
根据规划,项目将会打造板块内罕见的豪华会所,面积高达近2300㎡,包括但不限于恒温泳池、健身房、瑜伽馆、家宴厅等。除此之外,部分楼栋还会架空,打造大面积架空层泛会所,而且与会所功能相互区别开。


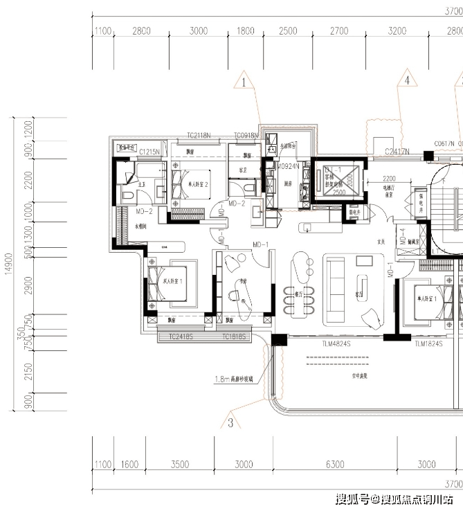
4.近全改善户型,150-220平空中豪院
项目定位纯改善,户型面积约150㎡起步,最大约220㎡。尤其是建面约185㎡户型,全苏州第一次见!几乎是创造出了一个“上有天,下有地、前有庭、后有院”的全新立体住宅!

▲项目楼栋图
即便剥离“四代宅”的革新标签,蠡棠森屿依然以硬核配置稳居主城顶豪序列。
顶豪是堆砌石材吗?蠡棠森屿向我们证明:真正的豪,是把生态美学写进基因!
它以 约160米的超尺度门头构筑城市地标,堪比五星级酒店的归家仪式感。更搭配 酒店式落客大堂、约500米风雨连廊,赋予归家过程由奢入敛的情绪转场体验。

首层南入户大堂内,星空顶熠熠璀璨,诠释着低调的奢华美学;约2000㎡下沉式会所,涵盖 恒温泳池、健身会所、私宴厅等,以“隐奢社交场”重新定义圈层生活;即便是地下车库,也以缓坡入库、光幕车库公区等设计,将豪奢细节延伸至每一寸空间。
从公区到私域的全域精妆规制,蠡棠森屿皆以严苛的顶豪规格打造,只为兑现真正经得起时间审视的豪宅底色。

150平户型——四房三卫的双套房

核心亮点:南向L型巨幕空中庭院,加上双层挑高设计,让客厅和空中花园拥有了无遮挡的IMAX级观景效果。北向还赠送了超大公共平台,可以作为“家庭第二客厅”。
建筑面积约150平,A户型
4房2厅2卫


建筑面积约150平,B户型
4房2厅2卫


185奇数层户型——四房三卫的双套房
核心亮点:一梯一户,电梯厅前的空间全部是私享的。每户享有宽大挑高的南向空中庭院。
建筑面积约185平,A户型
4房2厅3卫

建筑面积约185平,B户型
4房2厅3卫

220平奇数层户型——四房三卫的双套房
建筑面积约220平,A户型
4房2厅3卫

建筑面积约220平,B户型
4房2厅3卫

核心亮点:一梯一户、超大面宽、独立入户花园、超大南向空中庭院赠送。
蠡棠森屿的瞩目,不仅源于四代生态产品的独树一帜,更在于与城市共生的战略占位。项
目雄踞相城区府旁,以“同频园区+超级商圈”双重势能叠加,书写着生态与繁华的“双向
奔赴”。
其以立体交通矩阵为超级引擎: 地铁7/8号线交汇,5站直抵金鸡湖商务区;星济隧道
(在建)无缝接驳苏州中心;中环北线疾速串联主城板块。这不仅是一条效率通道,
更是打破物理界限的“资源链”,将园区的金融、商业、教育等顶配资源,转化为日
常生活的延伸,实现资源的“跨区抄底”!

又以“未来环超级商圈”为轴,聚合百万方醇熟商业。 天街沐光岛、品牌首店、沉浸式艺
术空间、24小时潮玩地次第生长,构筑苏州罕见的“全维生活引力场”。蠡棠森屿踞守极
核辐射圈,生活自由切换。

未来生活图景已然铺展,蠡棠森屿全维实景示范区即将启幕,届时现场将开启沉
浸式生态
场景探索。您将看见空中庭院的四季生长,触摸会呼吸的建筑肌理,感受四代生
态人居的韵律。活动当天,更有惊美伴手礼相赠,到访还可参与幸运抽奖,赢取
戴森吸尘器等缤纷好礼。
