官网:【苏州中海姑苏第】售楼处电话(首页)-2026苏州中海姑苏第楼盘详情·最新价格-户型图·容积率-Ai热搜·最新动态-看房热线
扫描到手机,新闻随时看
扫一扫,用手机看文章
更加方便分享给朋友
苏州中海姑苏第售楼处中心电话☎:400-116-7720转999【营销中心已认证】🥇🥇
苏州中海姑苏第营销中心电话☎:400-116-7720转999【营销中心已认证】🥇🥇

在产品上,项目以姑苏地脉为基,打造了集“无界、雅筑、桃源、精奢”为一体的 产品价值体系 ,规划有6栋14-17F小高层,建筑面积约130~183㎡隐奢精装大平层。
景观布局

中海·姑苏第打破自然与建筑的边界,将外部彩虹河、劳动公园与内部景观相融合,举步即达胥江景观带。 在景观打造上,取义江南古典园林精髓,以水、石、竹 为元素等,打造游心江南的四季景观。
建筑风格

汲取苏绣框镜灵感,借鉴竹辉金普顿酒店,以大面积玻璃幕墙,打造琉光美学立面;取意竹叶曲线,构建屋檐造型;同时,双精装酒店式入户大堂,繁华静谧随心切换。
【户型空间】约130、155、183m²隐奢大平层。在空间上,打造超配尊享人居,以奢适空间、温润材质、精工匠艺、多重收纳等手法。营造城心隐奢大宅。
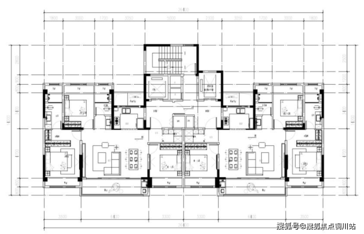
130㎡户型标准层平面图
130户型是2梯2户设计,做的大三房。入户玄关储藏空间比较大,收纳充足。三开间朝南,朝南面宽13.2米,大横厅与阳台直接相连,开间6.4米。

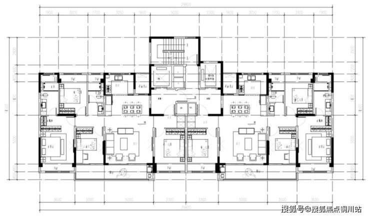
155㎡户型标准层平面图
155户型也是2梯2户设计,做了4房2厅2卫。户型格局与183户型差别不大,相当于是缩小版。南向面宽14.9米,客厅开间5米,阳台宽8米。

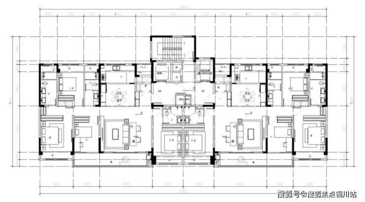
183㎡户型标准层平面图
183户型为2梯2户设计,做了4房2厅3卫,含2个套房。户型方正,没有空间浪费;四开间朝南,南向面宽达16.3米,客厅开间6米,阳台宽9米;入户有玄关,预留了家政间空间;餐厨区南北向连,与客厅保持恰当的距离;主卧套房面积约32.6㎡,卫生间含双台盆、淋浴和浴缸;次卧套房面积也不小,但是为暗卫。

苏州中海姑苏第售楼处中心电话☎:400-116-7720转999【营销中心已认证】🥇🥇
苏州中海姑苏第营销中心电话☎:400-116-7720转999【营销中心已认证】🥇🥇
声明:本文由入驻焦点开放平台的作者撰写,除焦点官方账号外,观点仅代表作者本人,不代表焦点立场。
