【营销中心】2025武汉中建壹品汉芯公馆售楼处电话/ 武汉中建壹品汉芯公馆在售户型图/ 武汉中建壹品汉芯公馆项目售楼处电话/地址
扫描到手机,新闻随时看
扫一扫,用手机看文章
更加方便分享给朋友
🌈武汉中建壹品汉芯公馆售楼处电话☎️400-116-7720转接999(专人接听)
🌈武汉中建壹品汉芯公馆营销中心电话:☎️400-116-7720转999【营销中心】
🌈温馨提示:拨打400电话,听到嘀声后,输入分机号999即可!
【项目位置】光谷中心城三星巷与群建里交汇处
【产权年限】70年
【交房标准】装修
【总占地面积】约3.2万方
【总建筑面积】约11.9万方
【绿化率】30%
【容积率】2.3
【总户数】480户
【车位数量】738
【车位比例】1:1.54
【户型】预计首推140-170㎡
【物业费】尚未公开
【物业公司】中建壹品物业运营有限公司
区位优势
项目区位图
项目位于东湖高新区区光谷中心城板块,属于三环外。
自驾:项目近享光谷三路和高新大道两条主干道,不仅能直达光谷核心,还能直上三环,畅达三镇。
地铁:项目距离地铁11号线光谷生物城园站和光谷四路站都约900米左右,附近还有空轨九峰山站。
武汉空轨实拍图
景观
项目附近有鸡公山公园、中心城西苑公园、豹子溪公园、光谷文化中心(在建中)、湖北省科技馆等多个人文景观资源。
湖北省科技馆实拍图
学校
项目附近的中建星光城2024年在学区划片中小学对口光谷二十一小,初中对口光谷一初(学区划片有可能调整,具体以官方通知为准)。
光谷一初实拍图
商圈
项目自带约303㎡社区商业,附近还有武汉大悦城这类大型的商业综合体。
武汉大悦城实拍图
医疗
项目距离湖北省妇幼保健院光谷院区约1公里左右,距离同济医院光谷院区约2公里左右,医疗资源非常优秀。
同济医院光谷院区实拍图
产品亮点
效果图
立面:选自楚汉建筑的线条制式、结合凤鸟纹、编钟云纹等符号,打造现代与古典相融合之美
效果图
下沉式庭院:设私人会所,内含恒温泳池、健身房、书吧、茶室、Spa、游戏厅等
效果图
园林:从古汉阳十景的“芳洲落日”、“官湖夜月”、“金沙落雁”和“凤山秋意”中提取场景元素,打造云梦古泽,行水苑,入林泽的意境
效果图
大堂:效仿编钟,墙面的装饰挂画,沿用楚人的生活画面,古色古香,散发着沉稳、厚重的韵味。
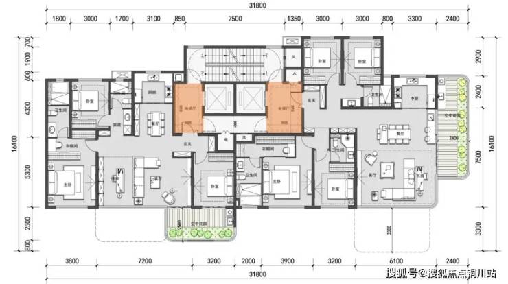
户型鉴赏
🌈武汉中建壹品汉芯公馆售楼处电话☎️400-116-7720转接999(专人接听)
🌈武汉中建壹品汉芯公馆营销中心电话:☎️400-116-7720转999【营销中心】
🌈温馨提示:拨打400电话,听到嘀声后,输入分机号999即可!
声明:本文由入驻焦点开放平台的作者撰写,除焦点官方账号外,观点仅代表作者本人,不代表焦点立场。
