天津创意之城锦园(售楼处)电话→天津创意之城锦园售楼中心电话→天津创意之城锦园楼盘百科→首页网站→楼盘百科→天津创意之城锦园24小时热线电话

铜川楼市发布 2025-10-18 20:24:35
用手机看
扫描到手机,新闻随时看

扫一扫,用手机看文章
更加方便分享给朋友

☯天津创意之城锦园售楼处电话:400-116-7720输入分机号666【营销中心】 ☯天津创意之城锦园售楼处位置:400-116-7720转接666【官方电话】

☯天津创意之城锦园售楼处电话:400-116-7720输入分机号666【营销中心】

☯天津创意之城锦园售楼处位置:400-116-7720转接666【官方电话】

☯天津创意之城锦园房价特价信息丨优惠政策丨详细解答丨在售房源丨在售户型图丨项目介绍丨周边配套丨VR看房丨楼盘图丨沙盘图丨位置图丨配套图丨售楼处地址丨足不出户丨销售1V1讲解 如有问题欢迎来电咨询,可预约销售人员,专业一对一热情服务,让您用专业眼光去买房。

创意之城·锦园就在蘭园的东南侧,同属河西区,东至柳瑞路(规划),西至长湖路,北至国盛道,南至文新道(规划)。

▲创意之城·锦园区位示意

从区位上,它既属于海河柳林“创意之都”核心区,又隶属于柳林街区城市更新一期。

方圆3公里内,有四所大学、三所医院、两座公园。

▲创意之城·锦园区位示意

锦园当然能享受到海河柳林“设计之都”核心区的板块红利,但这还不够。

因为,他们的产品力更加强悍:

高品质的城市客厅

大面积的地下+首层泛会所

美学灯塔般的标志性立面

大尺度、高浓度的共享花园

在地化的居住空间

首先,这是一块东西狭长、略有偏转的宅地,容积率2.68,总建筑面积约11.5万㎡。

其中,住宅约7.35万㎡,包括4栋17层小高、5栋26层高层,总计714户。

结合地块形状,采取了内向造景的方式,9栋楼均沿地块四边布置,以实现中心花园最大化。

同时,每个楼座又向西偏转约18度,这样就保证了每套户型的面宽最大化。

▲创意之城·锦园鸟瞰效果图

再看具体位置,北侧紧挨着明年入学的九年一贯制学校,东侧隔一个街区是地铁10号线柳林路站,南、西侧分别是待开发住宅和配套。

▲创意之城·锦园区位示意

于是,社区在四边均设计了人行出入口,这样无论将来你是送孩子去上学、幼儿园,还是步行去地铁站,都不会绕远。

百度地图测距显示,从社区东门走到地铁10号线柳林路站,大概也就300米左右。

车行出入口则设计在南北两侧,直冲向马路,远离人行出入口,动线互不干扰。

而且社区全地库开挖,地下车位约879个,配比能达到1:1.23,相当不错。

▲创意之城·锦园动线规划示意

主入口朝南,两侧住宅楼的首层均做了架空设计,作为非经营性配建使用。

这样,大门、配建和地库出入口,就实现了一体化设计,形成一段非常高级的沿街界面。

这些临街配建,在运营上可以有丰富的想象空间,比如社交空间、四点半课堂、社区书堂等——这就是所谓的“城市客厅”概念。

▲南侧临街效果图示意

创意之城·锦园的建筑立面,绝对堪称片区内的美学灯塔。

看看远眺效果图,你就会发现,每栋楼的外观都不是简单地复制粘贴,而有着细微差别。

结合社区整体规划,组合在一起,就产生一种强烈的秩序感。

▲建筑南立面效果图

整体采取现代曲面设计风格,利用大量的曲线柔化了建筑边框,更显建筑的温润雅致。

配色上,玻璃的灰蓝色,铝板的银灰色,再加上线条的香槟金色,高级感十足。

▲建筑南立面效果图

外突的铝板装饰框,在北侧楼王的立面上形成双T型折板,给人以稳定、对称、富有气势的印象。

再加上层间以金色斜面与银灰色铝板勾勒出横向线条,令整栋建筑更显纯净简约。

▲建筑南立面效果图

在其他几栋住宅立面上,则形成L型折板,极具标示性。

而且这些折板采取的是非对称布局,不同楼体立面上呈现出或左或右的分布。

立面框线、层间线条和金属构件,便形成更一种空间限定,令建筑更显轻薄、更具现代感。

▲建筑南立面效果图

这些L型折板和T型折板,组合在一起,又令整个社区形成中轴对称的形象。

这样的统一规划,折板成为独特标签,项目形成一个整体,堪称美学灯塔。

▲建筑南立面效果图示意

立面用材尤其值得强调一下,标准绝对吊打现在市场中80%的项目。

无论是纵向的框线,还是横向的层间线条,均采用的是银灰色铝板与香槟金色金属线条的组合。

而且,这些框线和线条绕了建筑一周,从南立面一直延展到北立面。

甚至,连局部侧山墙的位置也没落下,被铝板包裹,并和框线融为一体。

▲建筑北立面效果图

创意之城·锦园的南侧主入口,做成了一座宽约34.5米、高约5.8米的巨大门廊。

门前特意内凹出一片港湾式泊车区,接送客车辆驶入停靠,避免堵塞交通。

大门两侧的对称景墙铺满石材,中央是艺术雕塑,打造出超级城市界面,尽显门庭威仪。

▲主出入口效果图(过程稿,非最终方案)

从敞亮的大门走进门廊,光线由亮转暗,只有脚下的喷泉叠水发出潺潺之声。

门廊两端各有一处园林小品,红枫映衬在毛面石墙前,等着秋天染一抹热烈的火焰。

▲主出入口效果图

在门廊两端一转身,是长长的风雨连廊,唯有远处隐约的天光引领你继续深入。

廊架一侧是幽深的下沉庭院,另一侧是立体的景墙,墙角还有自然的生态景观。

这样的归家,从亮、转暗、再乍亮,如一首光影变奏曲。每一次转弯,总有吸引你的景色。

▲主出入口效果图

沿着连廊继续往里走,你会有两个选择:转身走入归家大堂,或是直接从大堂背后的安全闸机进社区。

归家大堂并未像大多数项目那样顶在大门口,而是藏在下沉庭院背后。

这样设计当然更私密,你坐在沙发上和朋友聊天,也不会有进出的邻居干扰到你。

于是,你的归家动线便成了“先进入大门,再经过下沉庭院,最后进入大堂”。

▲归家动线示意

约210㎡的下沉庭院,为社区实现了多维立体景观。

穿过首层风雨连廊时,你能从上向下俯瞰庭院;下到负一层的会所里,你又可以从内向外平视庭院。

游廊、叠水、绿岛、大树……共同组合成一片静谧又生动的场域。

▲下沉庭院效果图

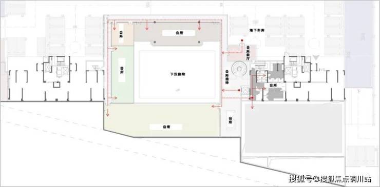
最牛的是,锦园竟然还围绕下沉庭院规划了一个约900㎡的业主会所。

虽然内部设计还未完成,但这个面积放在目前市场中也绝对数一数二,它能承载的功能也十分强大。

大门右侧的9号楼首层,有一个朝向社区外的独立会所门厅,你可乘电梯或顺着旋转楼梯下到会所。

地下,又设计了一个独立前厅,你可以在地库停好车直接走进会所。

▲地下会所动线示意

而且,在会所最南侧外面,还藏着另一个小小的下沉庭院。

流水山坡上栽着点景树,你可以坐在休闲平台上喝杯咖啡,面积虽然不大,却极具情趣。

☯天津创意之城锦园售楼处电话:400-116-7720输入分机号666【营销中心】

☯天津创意之城锦园售楼处位置:400-116-7720转接666【官方电话】

声明:本文由入驻焦点开放平台的作者撰写,除焦点官方账号外,观点仅代表作者本人,不代表焦点立场。