【济南保盛济南府】售楼处电话→户型→地址→济南保盛济南府最新价格→楼盘详情→最新销售动态
扫描到手机,新闻随时看
扫一扫,用手机看文章
更加方便分享给朋友
济南保盛济南府💠售楼处电话☎️400-116-7720分机号777【售楼中心】【已认证】
济南保盛济南府💠营销中心电话📞400-116-7720分机号777【置业顾问】【已认证】
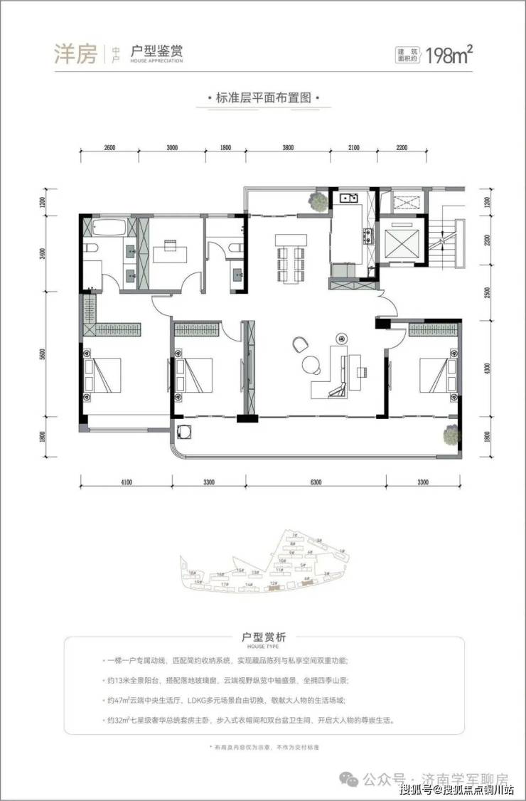
保盛·济南府,旅游路沿线绝版的低密时代豪宅。占地约5.6万㎡,容积率约1.2,规划12栋叠拼别墅和7栋4-10F纯洋房,共计298套。上叠享有全景露天,下叠最大赠送一亩庭院,济南首个唐宫御苑式皇家园林,首创“济南府新八景”园林规划。
💎千载贵脉💎
时代向东,济南“东强”战略纵深,旅游路绝版地段,济南东顶级豪宅圈,稀贵不言而喻。
🌲绝版生态🌲
五山两河一湖绝版生态,玉岭山以东、北靠虎山、南望8000余亩蟠龙山森林公园,依山而建,群山环抱,紧邻1200亩狼猫山水库。
🏔太师椅格局🏔
彩石自古就是风水宝位,周边山体呈四相之分,项目东侧蟠龙路,西侧虎山西路,背靠玉岭山,呈左青龙右白虎后玄武格局;与玉岭山、北寺山、虎山、蟠龙山呈群山合围之势。
⭐纯粹圈层⭐
约1.2超低容积率,建面约190㎡-380㎡,谨呈298传世藏品。
🛍优质配套🛍
周边一站式国际配套汇聚,超算中心、海归小镇、济南国际赛马场一路之隔,紧邻全球商品贸易港,近靠济南新航外国语私立优教资源
济南保盛济南府💠售楼处电话☎️400-116-7720分机号777【售楼中心】【已认证】
济南保盛济南府💠营销中心电话📞400-116-7720分机号777【置业顾问】【已认证】
声明:本文由入驻焦点开放平台的作者撰写,除焦点官方账号外,观点仅代表作者本人,不代表焦点立场。
