【营销中心】→长沙招商揽阅售楼处电话地址→长沙招商揽阅售楼中心首页网站→长沙招商揽阅楼盘百科详情→24小时电话
扫描到手机,新闻随时看
扫一扫,用手机看文章
更加方便分享给朋友
长沙招商揽阅营销中心电话:☎️400-116-7720转666【营销中心】
长沙招商揽阅售楼处电话:400-116-7720转分机号666
长沙招商揽阅售楼处电话:400-116-7720转分机号666【营销中心】

01 全景度假,把公园搬到家的楼下
4600㎡主入口景观前场,结合水景与树阵的穿插,熟悉与烟火交织,让回家变成慢慢松弛的归途,充满仪式感。双层景观体系,成就世界顶级酒店虹夕诺雅野奢感。
02 灰空间革命,献给家外的生活场景
3600㎡度假公园、3000㎡架空层、1200㎡会所共同组成长沙揽阅的7800㎡超级公区,重置空间,更增加海量生活体验和场景;长沙首创双层立体式公区,更大化场景容量。
03 会所新形态,在度假中度过生活
设想100种生活方式,注入12幕首创场景,以运营发散多样化场景,呼应人们对于社交多样化需求,赋予使用者场景变化的自由,让场景激活更多生活方式。
04 艺术新译,与青年匹配的摩登风
项目广泛应用文化创意,转译非遗工艺与手法,赋予成品更熟悉与先锋的审美。设计融入更贴近年轻群体的艺术化表达,无声雕琢场景空间,赋予建筑年轻美学的品质感、高级感、艺术感。

招商揽阅择址于长沙岳麓区,梅溪湖国际生活圈,地处麓谷大道与枫林三路交汇处,落座精粹资源集群,展映理想无限缤纷。
社区大门、展示区、会所位于地块西侧主要展示面,与大区标高错层,形成下沉式的绿谷景观区,作为社区的核心景观区,链接南北向的社区景观轴,与沿街的城市活力轴,整体形成一个充满生命力的“H”轴规划结构。
结合场地条件与规划条件,整个规划产品为15+1F~18F小高层住宅楼(12幢)及若干低层底商配套设施楼组成。规划布局中心景观资源佳位置设置大户型,最大化景观视野;架空层尽可能设置全架空,社区大堂结合下沉庭院及架空层泛会所化,提高社区品质。

项目整体风格为现代雅奢,白金色调,设计提取长沙非遗手工棕编符号,通过现代手法转译,形成横纵交织的立面构成关系,立面采用圆弧倒角与公建化大落地窗,筑就天幕流线立面。顶部弧形流线元素,流体灵动,奢境典雅,增强标识感;塔身层间线条展现轻盈精贵的气质,突出公建化立面的端庄
单元大堂立面延续主体现代雅奢风格,立面简约利落,以米白色月光米黄石材、香槟金铝板及潘多拉彩虹印象奢石呼应主体白金色调,以精工细节强化立面品质,石材采用波浪纹、圆弧倒角、拉槽、抛光等细节工艺,铝板采用倒角、凹槽结合密拼工艺,提升归家尊贵感。

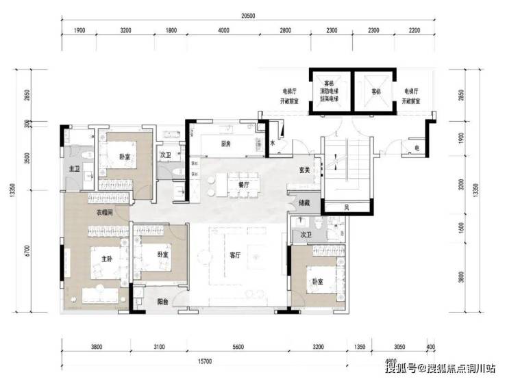
项目主力户型面积为建面约117-139㎡稀缺小高层,两梯两户入户。招商蛇口在长沙打造的首个新规"负公摊"产品,最高得房超110%。各面积段产品均涵盖了极致赠送、阳光入户、南向极致面宽、南北通透、超小公摊、超高使用率、主卧飘窗,极致视野享受、多元化可能性等特点。
声明:本文由入驻焦点开放平台的作者撰写,除焦点官方账号外,观点仅代表作者本人,不代表焦点立场。
