2026杭州绿城运河宸岸栖月轩首页-杭州绿城运河宸岸栖月轩售楼处电话→杭州绿城运河宸岸栖月轩售楼中心电话→楼盘详情→24小时营销电话
扫描到手机,新闻随时看
扫一扫,用手机看文章
更加方便分享给朋友
杭州绿城运河宸岸栖月轩
杭州绿城运河宸岸栖月轩售楼处电话:400-116-7720转888(中介勿扰)
杭州绿城运河宸岸栖月轩售楼处电话:400-116-7720接通后输入888楼盘详情介绍,位置、小区环境、房价、周边商业配套、户型等楼盘详情;
预约咨询—提前联系咨询售楼中心置业顾问—进行预约登记来访!
项目价值亮点
【运河新城芯】主城拱墅,城市地标集聚,尽享醇熟配套
【限价末班车】精装限价3.37万/㎡,建面约105-139㎡,限价红利产品
【双地铁畅达】直距约200m平安桥站,双地铁4号线&15号线(在建)
【书香伴成长】直距约300m育才大城北学校,全龄优教护航成长路(期房不承诺学区)
【改善产品力】近千平方中心水庭 | 户外泳池 | 全龄主题架空层
项目进度:1#/2#/4#/5#/6#/7#已售罄,3#即将加推(共48套)
【开 发 商】杭州运河集团投资发展有限公司
【管 理 商】绿城管理控股有限公司
【项目位置】拱墅区康桥街道丽水路与平炼路交叉口东北角
丽水北路辅路与平炼路交叉口
【总用地面积】约29692㎡
【总建筑面积】约110352.20㎡
【住宅建面】约44699 ㎡
【绿 化 率】35%
【物业类型】17F办公+13F、17F中高层
【户 型】约105㎡、118㎡、128㎡、139㎡
【总 户 数】376户
【地块限价】(住宅精装)限价33700元/㎡
【交房标准】精装交付(住宅)
【物业服务】 绿城物业
项目效果图 | 仅供参考 不构成合同要约
本案位居杭州大运河新城核芯区域,杭州政府明确批复的“城北之芯,“十四五规划”中杭州“北建”战略主阵地。规划打造城北文化旅游中心、商业商务中心与智慧科创中心为一体的杭州城市副中心。
【大师地标云集】
运河新城的总体规划,邀请了荷兰MVRDV建筑事务所、全球先锋的MVRDV和openfabrc等国际大师共同绘就。板块内汇聚了中国京杭大运河博物院(在建,直距约600米)、大运河生态艺术岛(在建,直距约800米)、大运河杭钢公园等十大地标。
【大运河未来艺术科技中心(在建)】荷兰MVRDV设计,距离项目一路之隔,由演艺中心、艺文商业街区、创意产业园和炼油厂公园四部分组成,未来将打造成集先锋艺术演艺、特色艺术商业、创新科技产业于一体的大运河文化艺术中心和科技孵化中心。
【高效交通】4号线15号线通达全城
直距约200m地铁4号线&15号线(在建)换乘站平安桥站。
项目紧邻丽水北路,一脉桥西商圈、武林市芯;连通上塘、留石高架,通达全城。
板块内远期规划23号线,连接西湖、大运河、良渚等板块。(远期规划,最终以有关部门发布为准)
【繁华商业】人气综合体尽享繁华地铁2站可达城北万象城,3公里范围内有运河湾综合体(52万方体量,在建)、拱墅万达广场、运河上街、乐堤港等,为精彩生活加码。
【人文书香】一站式全龄教育
直距约300m杭州育才大城北小区(公办九年一贯制),周边卖鱼桥小学(文润校区)、文渊小学(新城校区)、杭十四中附属学校、杭十四中康桥校区(重点高中)等名校环伺。(期房不承诺学区,具体教育信息以政府教育部门政策为准)。
【医疗护航】三甲医院保障健康直距约600m为浙江大学附属邵逸夫医院大运河院区(公立三甲),更有树兰医院(三甲)、杭州市第一人民医院(城北院区)等医疗配套保障家庭健康。
【限价红利】运河新城价值优选
5月29日,绿城以楼面价23707元/㎡、溢价率40.33%摘得平安桥站康桥单元GS120201-07地块,创板块地价新高。本案与该地块直线距离仅约200米,同享板块配套,更凸显本案性价比。2025年,运河新城进入推地大年,截至目前,运河新城已挂出5宗涉宅地,且都是不限价地。不限价时代下,宸岸栖月将成为板块内、地铁口、限价品质项目的珍罕之选。
【流金封面 映景运河的油画框立面】
建筑立面采用金色铝线条搭配大面积通透玻璃,宛如运河水波般韵律流畅且熠熠生辉。楼栋东西面采用大范围金属一体板设计,整体呈现出精致而和谐的外观特色。
项目过程效果图 | 仅供参考 不构成合同要约
【拱宸邀月 栖月八景归家仪式感】
园区营造灵感溯源运河文化,取意运河十景之首——拱宸邀月,以月为美好意向,营造“栖月八景”,勾勒烟火丰盛、悠然自在的生活场景。以礼仪门庭、中心水庭、户外泳池为核心打造可游可赏的归家仪式,更有自然探索、儿童趣玩、林下空间等逸趣社交。
项目过程效果图 | 仅供参考 不构成合同要约
礼仪门庭-金玉满堂
约50米宽酒店式落客门庭,庭前水系彰显仪式感,透光奢石点缀增添国际东方底蕴。
中心水庭-拱宸邀月
取意拱宸邀月,引水入园,栽种18棵赤松,2棵罗汉松,松、石、水呼应,描摹一幅“十八青松邀明月”的山水画卷。
归家大堂-云亭观月
仪式感入户前厅,落地玻璃赏景亭,直观澄澈水境,闲游休憩、友人雅聚两相宜。
户外泳池-临波对月
泳池综合区,水上吧台、躺椅、景观廊架打造无界社交。
项目过程效果图 | 仅供参考 不构成合同要约
【人文流淌 全龄架空空间】
回应流金生活向往,于约4.2米高架空层内构筑睦邻泛会所、儿童空间、健身空间等全龄主题架空空间,成就文化与风景交融的生活领地,社交运动、亲子乐趣在此随享。
睦邻泛会所-栖云雅叙
位于1#架空层,隐奢社交与艺术雅聚共生,落地窗映运河波光,浅金色调诠释流金美学。
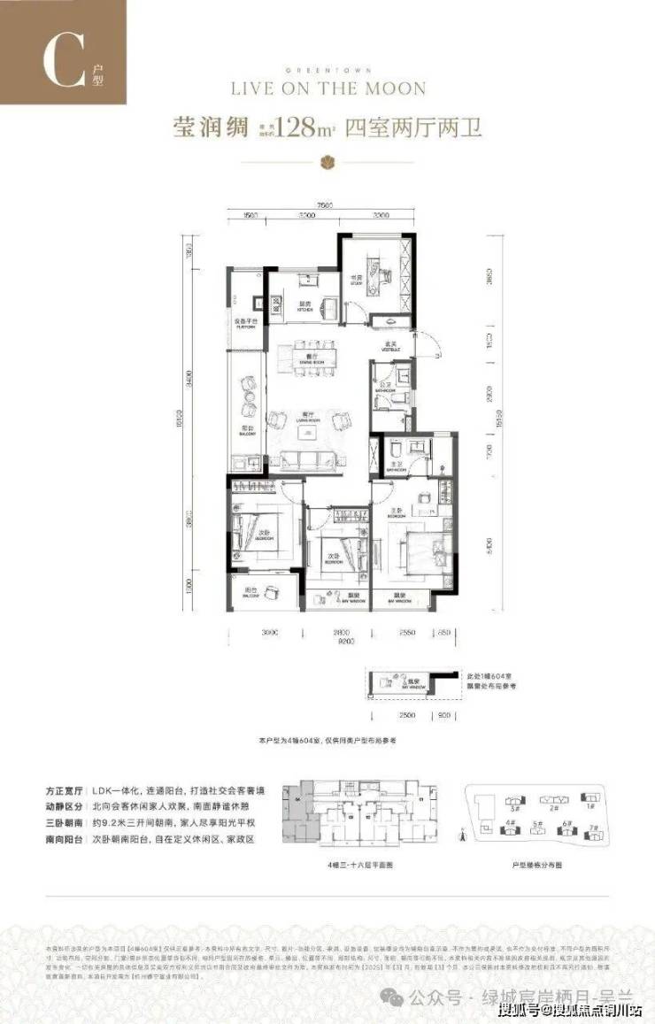
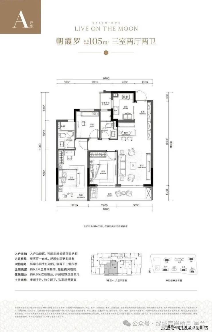
※匠心精琢 改善户型品鉴
以更从容的尺度享受,谨献建筑面积约105-139㎡改善高层。臻选汉斯格雅龙头&花洒、杜拉维特盥洗盆、松下智能马桶、迈迪龙新风等品牌,诠释流金生活方式。
杭州绿城运河宸岸栖月轩
杭州绿城运河宸岸栖月轩售楼处电话:400-116-7720转888(中介勿扰)
杭州绿城运河宸岸栖月轩售楼处电话:400-116-7720接通后输入888楼盘详情介绍,位置、小区环境、房价、周边商业配套、户型等楼盘详情;
预约咨询—提前联系咨询售楼中心置业顾问—进行预约登记来访!
以上为官方发布!
声明:本文由入驻焦点开放平台的作者撰写,除焦点官方账号外,观点仅代表作者本人,不代表焦点立场。
