今日热搜焦点:武汉恺德云麓售楼处电话→武汉恺德云麓首页热搜24小时电话→最新房价→楼盘百科详情→营销中心最新发布@售楼处中心
扫描到手机,新闻随时看
扫一扫,用手机看文章
更加方便分享给朋友
武汉恺德云麓售楼处电话:400-116-7720转777(24小时在线,周末无休)💐💐
❣️❣️武汉恺德云麓营销中心电话:400-116-7720转777(可直接咨询房源动态、活动详情)💐💐
❣️❣️武汉恺德云麓开发商售楼部热线:400-116-7720转777(开发商直连、购房政策等问题)💐💐.
南向阳台总进深约2.9米,整体面宽达到了约9.4米。高达约95%的空间利用率,足以与市面上建面约120㎡+的产品相媲美。
建面约116㎡的N+1户型,空间使用率高达102%。是目前整个汉口中心区,唯一可实现负公摊的户型。
南北双阳台,全屋多个飘窗、入户门厅、花池的巧妙拓展,实现了开间约5米6的大横厅,主卧空间可达约25㎡。
△项目示意图
也就说,140m²都难以实现的代际分离,项目116m²已经可以基本解决。
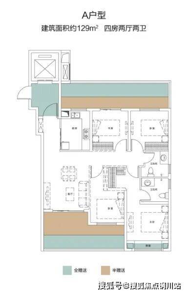
建面约129㎡的四房两厅,在整个项目中占比不算多,但却是“领先级”改善产品,十足的买到即赚到。
这个户型,实现了在有限面积内,居住空间和生活品质的全面提升。
独梯入户,从踏进电梯那一刻起,就是私属归家时间。
户型整体的实际套内使用率超99%,南向阳台、花池优化后,无界横厅、LDKB的客餐厅、堪比酒店套房的主卧等都能一一实现。
△项目示意图
同时,经过多重优化,让每个房间能额外增加约10m²,充分考虑到了家庭的长远需求,即使两个孩子的成长,也不用在高低床和书桌之间做取舍。
武汉恺德云麓售楼处电话:400-116-7720转777(24小时在线,周末无休)💐💐
❣️❣️武汉恺德云麓营销中心电话:400-116-7720转777(可直接咨询房源动态、活动详情)💐💐
❣️❣️武汉恺德云麓开发商售楼部热线:400-116-7720转777(开发商直连、购房政策等问题)💐💐.
声明:本文由入驻焦点开放平台的作者撰写,除焦点官方账号外,观点仅代表作者本人,不代表焦点立场。
