2025聚焦楼盘:【徐州】中海臻如府售楼处电话→首页热搜【徐州中海臻如府】24小时电话→最新房价→楼盘百科详情→营销中心最新发布@售楼处中心
扫描到手机,新闻随时看
扫一扫,用手机看文章
更加方便分享给朋友
【徐州】中海臻如府
🔱 售楼处电话【已认证】✔️:400-116-7720转接666 ✅
🔱营销中心电话【已认证】✔️:400-116-7720转接666 ✅
💌温馨提示:本项目采用预约制,前来营销中心请提前拨打400热线电话预约,感谢您的配合!
项目概况
(一)品牌实力
中海臻如府由中海宏洋地产(徐州)有限公司打造。中海地产作为房地产行业的领军者,拥有深厚的品牌底蕴与丰富的开发经验,足迹遍布全球多个城市,以高品质的建筑和优质的物业服务闻名遐迩。在徐州,中海地产此前已成功打造多个备受赞誉的项目,积累了良好的口碑。中海臻如府的诞生,是中海地产深耕徐州的又一力作,其秉持的匠心精神与卓越品质,为项目的成功奠定了坚实基础。
(二)地理位置
项目坐落于泉山区淮海西路南、韩山路西,位于云龙湖北岸的核心地段。这里不仅是城市的生态核心区域,更是繁华与宁静的完美交融之处。周边环绕着丰富的自然景观资源,与 5A 级景区云龙湖咫尺之遥,举步可达。同时,紧邻韩山公园,绿树成荫,山水相依,为业主营造出一个亲近自然、远离喧嚣的居住环境。清晨,可漫步在云龙湖畔,欣赏湖光山色,呼吸清新空气;傍晚,于韩山公园内悠然散步,感受微风拂面,尽享惬意时光。此外,项目所处地段交通极为便利,周边公共交通网络发达,为业主的日常出行提供了极大的便利。
(三)项目规划
中海臻如府总占地面积约 21500㎡,建筑面积约 58800㎡ 。项目规划为 7 栋小高层,总户数共 254 户,建筑类型为板楼,容积率仅 1.8 。低密的规划设计使得小区内拥有宽敞的楼间距,不仅保证了每一户都能享受充足的采光、良好的通风和开阔的视野,还为社区营造了宁静、私密的居住氛围。小区内采用人车分流设计,车辆直接进入地下车库,保障了地面行人的安全,减少了噪音和尾气污染,让业主能够在社区内安心休闲、漫步。部分楼栋首层设置架空层,为业主打造了更多的公共活动空间,丰富了社区生活。

产品亮点
(一)多样户型设计
中海臻如府首批推出建面约 155㎡和 182㎡两种户型,均为改善型大户型,满足不同家庭结构和购房需求。以建面约 155㎡的户型为例,采用四室两厅两卫设计,户型方正,南北通透,空间布局合理,利用率高。入户处设有双重玄关空间,营造出尊贵的入户仪式感。客厅采用 LDKB 一体化设计,与餐厅、厨房、阳台相连通,形成一个阔绰的公共活动区域,空间开阔大气,方便家人互动与朋友聚会。客厅开间达约 7.45 米,搭配大尺寸落地窗,让阳光肆意倾洒,尽显奢阔生活品质。U 形厨房操作台面超长,动线流畅,可满足多人同时烹饪,为家庭厨房生活增添乐趣。该户型亮点之一是剪力墙位置的优化,通过巧妙的结构设计,调整客厅与多功能厅之间的墙体,业主可根据自身需求灵活改造,将空间打造为三卧或四卧,实现个性化居住。整个户型面宽约 14.35 米,在同面积段产品中表现突出。南向客厅及主卧套房均配备落地窗,视野开阔;北向卧室、卫生间全为飘窗设计,且飘窗进深达 800 毫米,不仅增加了室内空间感,还带来了更多的使用面积和采光面。
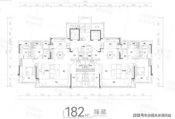
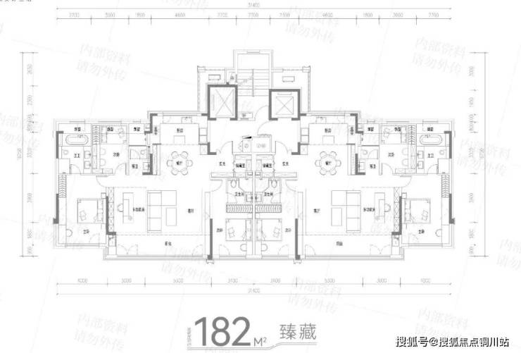
建面约 182㎡的户型同样出色,进门处设有暗藏的家庭储物间,方便收纳杂物。引入 LDK 理念,将客厅、餐厅、厨房无缝连为一体,形成 “超宽厅” 格局。若将其打造为三房,约 8.3 米大面宽客厅南侧与观景阳台无缝衔接,搭配阳台落地窗,带来更为明亮的采光和开阔的视野。主卧套房空间宽敞,配备独立卫生间、衣帽间等,为业主提供舒适、私密的居住体验。各个房间布局合理,尺度阔绰,无论是空间感还是功能性都能满足业主对高品质生活的追求。
(二)高品质建筑与装修
项目建筑风格现代简约,采用公建化立面设计,以大面积玻璃窗和简洁的线条为主,展现出时尚、大气的建筑外观。这种设计不仅提升了建筑的整体美感,还增强了室内的采光和通透性,让建筑与周边自然景观相互呼应,相得益彰。建筑外立面 1、2 层采用全干挂石材,上层使用真石漆搭配 EPS 线条,材质优良,质感十足,既保证了建筑的耐久性,又彰显了品质。
项目在装修方面也下足了功夫。虽然为毛坯交付,但在建筑品质把控上毫不松懈。从建筑材料的选择到施工工艺的标准,都严格遵循高品质要求。入户门采用高品质的三七开装甲门,搭配智能门锁,为业主的家提供安全保障。室内空间布局合理,层高约 3.15 米,高于普通住宅标准,让居住空间更显开阔舒适。在未来业主进行装修时,可根据自己的喜好和风格,打造个性化的居住空间。

配套设施
(一)交通出行便捷
中海臻如府周边交通网络发达,为业主提供了多样化的出行选择。公共交通方面,周边直线 1km 内有 28 个公交站,距离最近的市中级法院站仅有 74m,公交线路覆盖范围广,可直达城市各个区域 。轨道交通优势显著,周边直线 3km 范围内有 5 个地铁站,分别为韩山、工农路、人民广场、苏堤路、杏山子,其中距离最近的地铁站是韩山 。地铁 1 号线的开通,极大地提升了出行效率,业主可快速畅达城市各处,无论是前往市中心的商业中心、工作地点,还是其他休闲娱乐场所,都能轻松实现。自驾出行同样便利,项目紧邻淮海西路,多条城市主干道环绕,通过这些道路可快速连接城市其他区域,大大缩短出行时间。
(二)商业配套丰富
直线 3km 范围内有 6 个商场,如荣益广场、新都商业广场、华美商厦等,商业配套成熟,能够充分满足业主日常购物需求 。这些商场涵盖购物、餐饮、娱乐、休闲等多种业态,汇聚众多知名品牌,为业主提供丰富多样的消费选择。无论是时尚购物、品尝美食,还是观看电影、亲子娱乐,业主都能在附近商场一站式满足。此外,项目周边还有多个社区商业街,便利店、生鲜超市、水果店等一应俱全,为业主提供便捷的日常生活服务,让业主在家门口就能解决基本生活需求。
(三)教育资源优质
对于有孩子的家庭,教育资源至关重要。中海臻如府周边教育资源丰富,直线 3km 范围内有 59 个幼儿园,为孩子的学前教育提供充足选择 。直线 3km 范围内有 20 个小学,包括求是小学西校区、徐州市求是小学 (东校区)、徐州市少华街小学等优质小学 。直线 3km 范围内还有 8 个中学,如徐州市第三十一中学、徐州市第三十七中学、徐州市第十三中学等 。这些学校教学质量高,师资力量雄厚,为孩子提供了良好的教育环境,让孩子在家门口就能享受到优质教育,为未来成长奠定坚实基础。
(四)医疗配套完善
健康保障是生活品质的重要支撑,中海臻如府周边医疗资源充足,为业主和家人的健康保驾护航。楼盘周边直线 3km 范围内有 21 个一级及以上医院 。其中,中煤第五建设公司职工医院距离楼盘 513m,徐州矿务集团总医院距离楼盘 1.9km,徐州市儿童医院西院距离楼盘 2.4km,徐州市口腔医院距离楼盘 2.7km,徐州市矿山医院距离楼盘 838m 。这些医院设备先进、科室齐全、医疗技术精湛,能够为业主提供全面、专业的医疗服务。无论是日常身体检查,还是突发疾病救治,业主都能在短时间内得到及时有效的医疗帮助,让业主安心生活,无后顾之忧。
(五)生态环境优美
项目最大优势之一便是其得天独厚的生态环境。紧邻 5A 级景区云龙湖,周边 3km 范围内有 75 个公园,距离最近的公园仅 279m 。云龙湖湖水清澈,景色秀丽,周边云龙山等自然景观环绕,形成独特的生态景观带。业主闲暇时可与家人漫步云龙湖畔,欣赏湖光山色,感受大自然的美好;也可前往周边公园休闲散步、运动健身,放松身心,享受健康生活。社区内部注重园林景观打造,通过合理规划绿化空间、种植多种绿植花卉,营造出舒适宜人的社区环境,让业主在社区内也能感受到自然的气息,实现 “出则繁华,入则宁静” 的理想生活。
【徐州】中海臻如府
🔱 售楼处电话【已认证】✔️:400-116-7720转接666 ✅
🔱营销中心电话【已认证】✔️:400-116-7720转接666 ✅
声明:本文由入驻焦点开放平台的作者撰写,除焦点官方账号外,观点仅代表作者本人,不代表焦点立场。
